← Brentwood

Status

Pending Consideration Change of use
Received
Not recorded
New homes
0

Full proposal

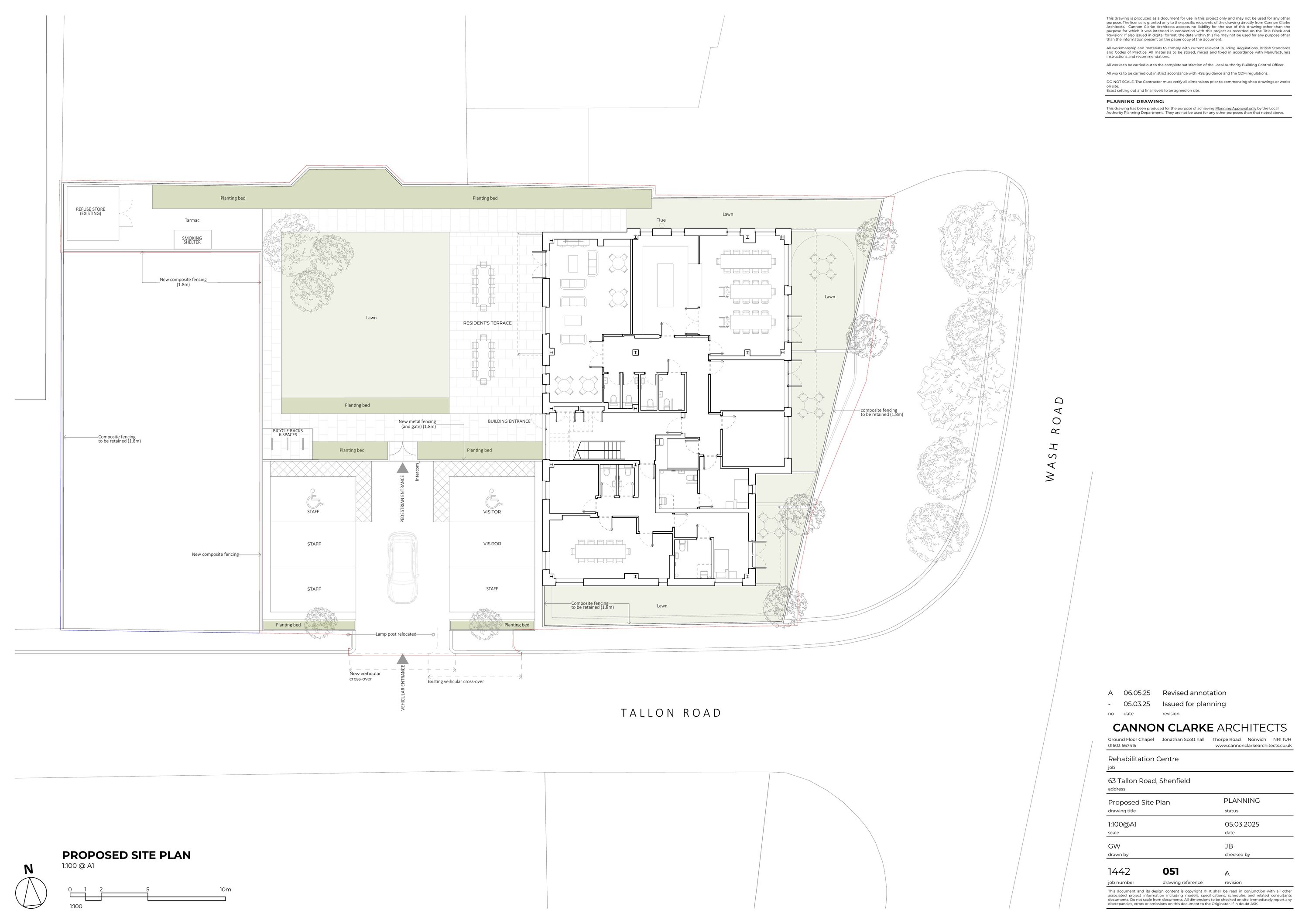
Proposed change of use from C3 residential to C2 Residential Institution with aspects of (E)e Provision of medical or health services to form a Rehabilitation Centre with wellbeing treatments open for public use. Existing building to be converted with internal alterations and an addition of an external commercial kitchen flue. Existing carpark to be landscaped with retention of 6 number parking bays.

Documents

*REVISED* PLANNING STATEMENT
Supporting Documents
Not yet archived · Original link
*SUPERSEDED* PLANNING STATEMENT
Superseded Document
Not yet archived · Original link
002 - LOCATION PLAN
Site Plan
Not yet archived · Original link
Superseded Drawing
Archived · Original link
056 - PROPOSED ELEVATIONS
Drawing
Not yet archived · Original link
057 - EXISTING AND PROPOSED GROUND FLOOR PLANS
Drawing
Not yet archived · Original link
058 - EXISTING AND PROPOSED FIRST FLOOR PLANS
Drawing
Not yet archived · Original link
059 - EXISITNG AND PROPOSED SECOND FLOOR PLANS
Drawing
Not yet archived · Original link
116 - EXISTING AND PROPOSED STREET ELEVATIONS
Drawing
Not yet archived · Original link
APPLICATION FORM
Application Form
Not yet archived · Original link
BIODIVERSITY STATEMENT
BNG Documents
Not yet archived · Original link
DESIGN AND ACCESS STATEMENT
Design and Access Statement
Not yet archived · Original link
Superseded Drawing
Archived · Original link
ODOUR ASSESSMENT
Supporting Documents
Not yet archived · Original link
Superseded Drawing
Archived · Original link
REV A - 056 - PROPOSED ELEVATIONS
Drawing
Not yet archived · Original link
REV A - 060 - EXISTING AND PROPOSED ROOF PLAN.
Drawing
Not yet archived · Original link

Have your say

Your comment matters. Councils must consider every representation that raises material planning considerations.

Write a comment