← Brentwood

Status

Pending Consideration New housing
Received
Not recorded
New homes
0

Full proposal

Demolition of existing dwelling and construction of a new detached dwelling and landscaping

Documents

*REVISED* 2025.877.04A - PROPOSED RENEWABLES PLAN
Drawing
Not yet archived · Original link
*REVISED* 2025.877.07A - PROPOSED ELEVATIONS
Drawing
Not yet archived · Original link
*REVISED* 2025.877.08A - STREET SCENES
Drawing
Not yet archived · Original link
*SUPERSEDED* 2025.877.04 PROPOSED RENEWABLES PLAN
Superseded Drawing
Not yet archived · Original link
*SUPERSEDED* 2025.877.06 PROPOSED FLOOR
Superseded Drawing
Not yet archived · Original link
*SUPERSEDED* 2025.877.07 PROPOSED ELEVATIONS
Superseded Drawing
Not yet archived · Original link
*SUPERSEDED* 2025.877.08 EXISTING AND PROPOSED STREET SCENE
Superseded Drawing
Not yet archived · Original link
*SUPERSEDED* DESIGN AND ACCESS STATEMENT
Superseded Document
Not yet archived · Original link
*SUPERSEDED* DETAILS OF EXTERNAL MATERIALS
Superseded Document
Not yet archived · Original link
*SUPERSEDED* HERITAGE STATEMENT
Superseded Document
Not yet archived · Original link
*SUPERSEDED* STRUCTURAL SUVERY REPORT
Superseded Document
Not yet archived · Original link
2025.877.01
Site Plan
Not yet archived · Original link
2025.877.02 EXISTING
Block Plan
Not yet archived · Original link
2025.877.02 EXISTING
Block Plan
Not yet archived · Original link
2025.877.03 PROPOSED
Block Plan
Not yet archived · Original link
2025.877.04 PROPOSED RENEWABLES PLAN
Drawing
Not yet archived · Original link
2025.877.05 EXISTING
Drawing
Not yet archived · Original link
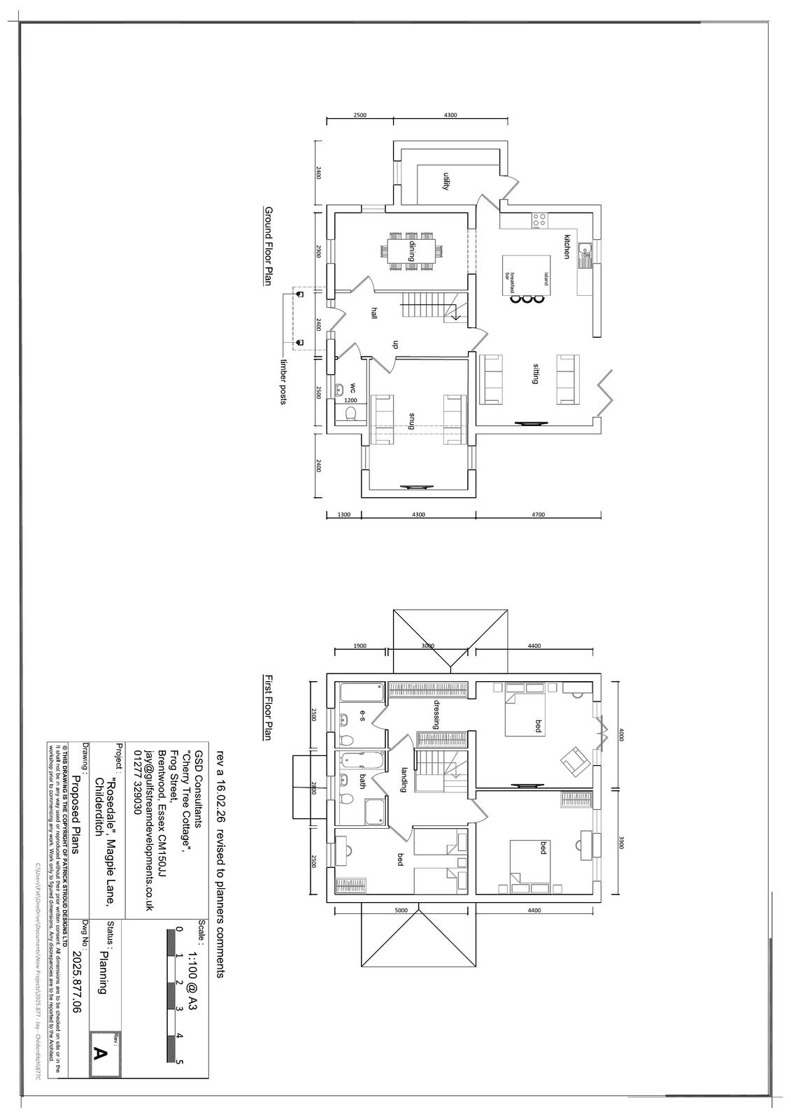
2025.877.06 PROPOSED FLOOR
Drawing
Not yet archived · Original link
2025.877.07 PROPOSED ELEVATIONS
Drawing
Not yet archived · Original link
2025.877.08 EXISTING AND PROPOSED STREET SCENE
Drawing
Not yet archived · Original link
Application Form
Application Form
Not yet archived · Original link
ARCHAEOLOGICAL ADVICE
Consultee Comment Public
Not yet archived · Original link
ASBESTOS REPORT & SURVEY
Supporting Documents
Not yet archived · Original link
ASBESTOS REPORT & SURVEY
Supporting Documents
Not yet archived · Original link
BIODIVERSITY SURVEY AND REPORT
Supporting Documents
Not yet archived · Original link
BNG MATRIX
Supporting Documents
Not yet archived · Original link
COVERING LETTER - PRE APP RESPONSE
Supporting Documents
Not yet archived · Original link
DESIGN & ACCESS STATEMENT - REVISION A.
Design and Access Statement
Not yet archived · Original link
Design and Access Statement
Design and Access Statement
Not yet archived · Original link
DETAILS OF EXTERNAL MATERIALS
Supporting Documents
Not yet archived · Original link
DETAILS OF EXTERNAL MATERIALS - REVISED
Supporting Documents
Not yet archived · Original link
ESSEX HIGHWAYS
Consultee Comment Public
Not yet archived · Original link
HERITAGE STATEMENT
Supporting Documents
Not yet archived · Original link
HERITAGE STATEMENT - REVISION A
Supporting Documents
Not yet archived · Original link
HISTORIC BUILDINGS CONSULTEE RESPONSE
Consultee Comment Public
Not yet archived · Original link
PERMITTED DEVELOPMENT INFORMATION
Supporting Documents
Not yet archived · Original link
PLANNING & SUPPLIMENTARY INFORMATION SHEET
Drawing
Not yet archived · Original link
RENEWABLE ENERGY PROPOSALS & WATER CONSUMPTION
Supporting Documents
Not yet archived · Original link
ROSEDALE COTTAGE - HERITAGE STRUCTURAL REPORT - REVISED FEBRUARY 2026
Supporting Documents
Not yet archived · Original link
STRUCTURAL SURVEY
Supporting Documents
Not yet archived · Original link
STRUCTURAL SUVERY REPORT
Supporting Documents
Not yet archived · Original link

Have your say

Your comment matters. Councils must consider every representation that raises material planning considerations.

Write a comment