← Brentwood

Status

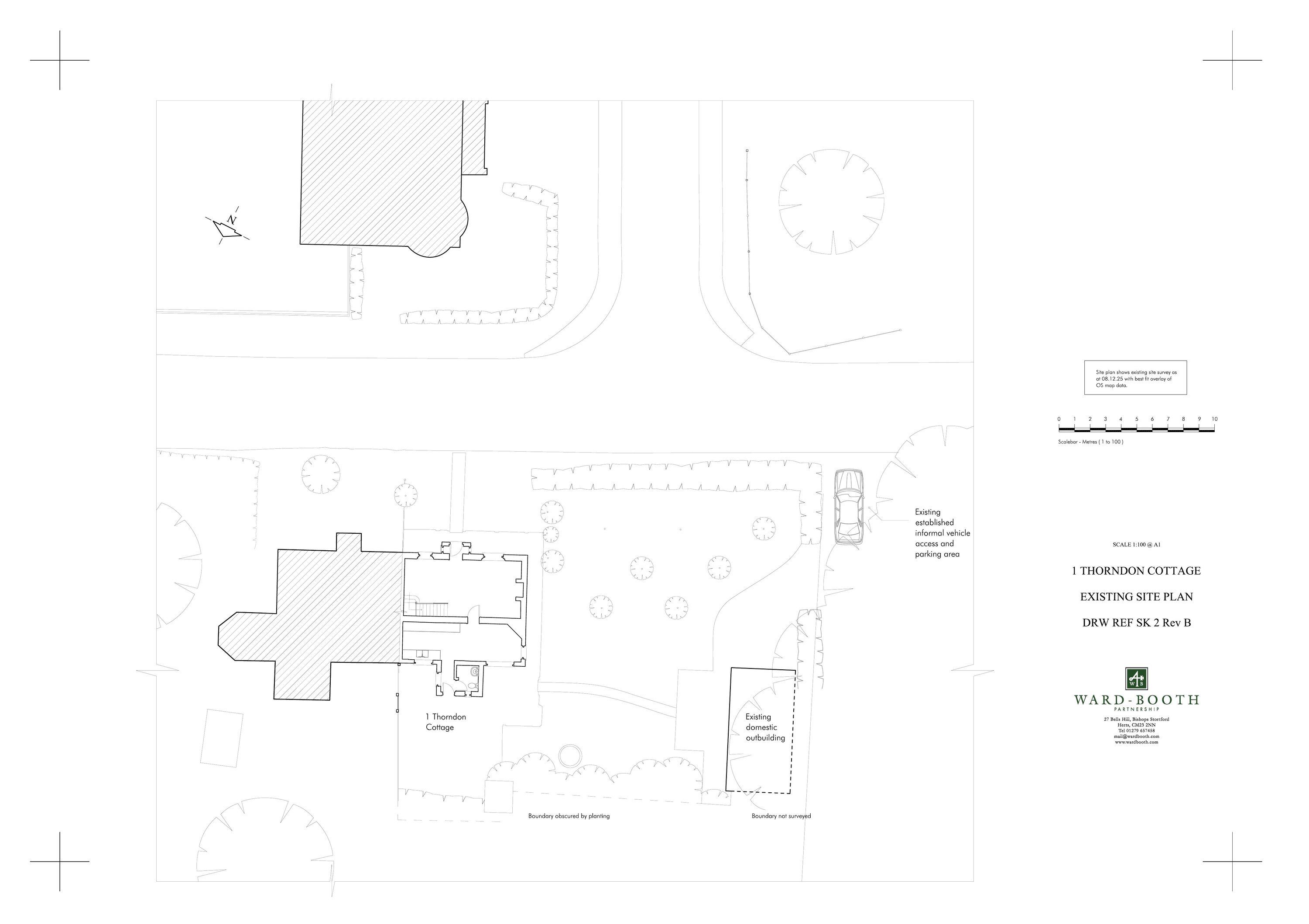
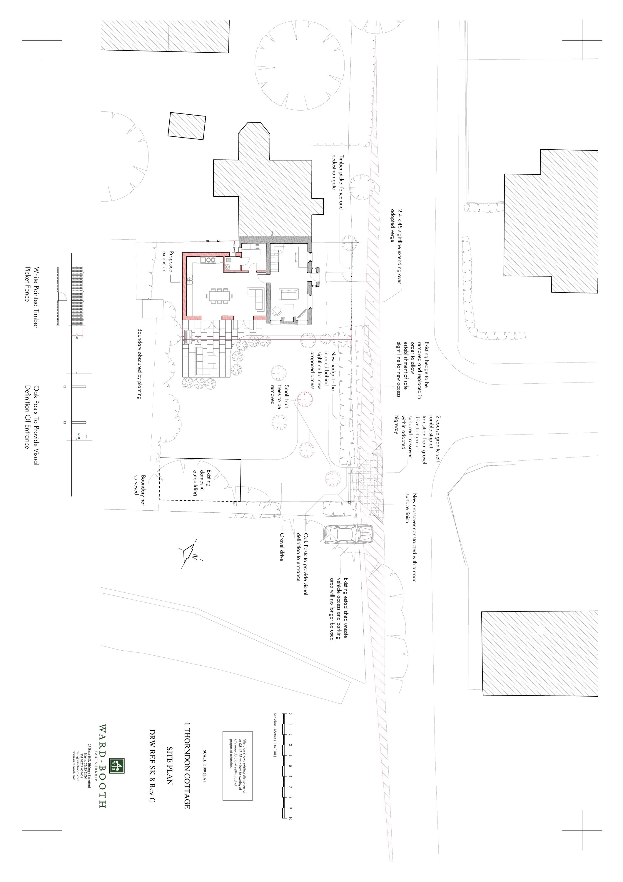
Pending Consideration House extension
Received
Not recorded
New homes
0

Full proposal

Alterations, construction of new entrance driveway and two storey rear extension.

Have your say

Your comment matters. Councils must consider every representation that raises material planning considerations.

Write a comment