← Brentwood

Status

Pending Consideration House extension
Received
Not recorded
New homes
0

Full proposal

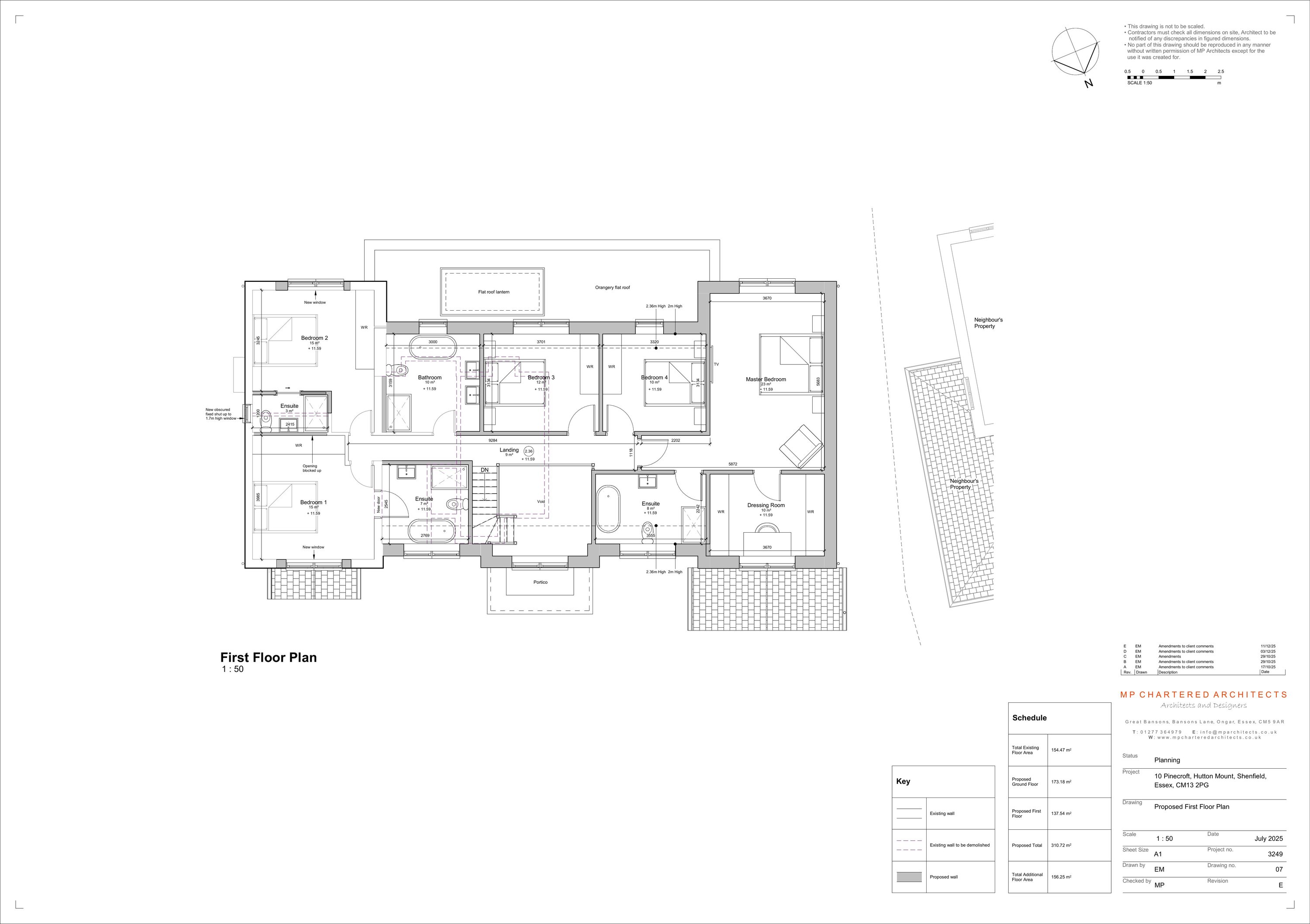
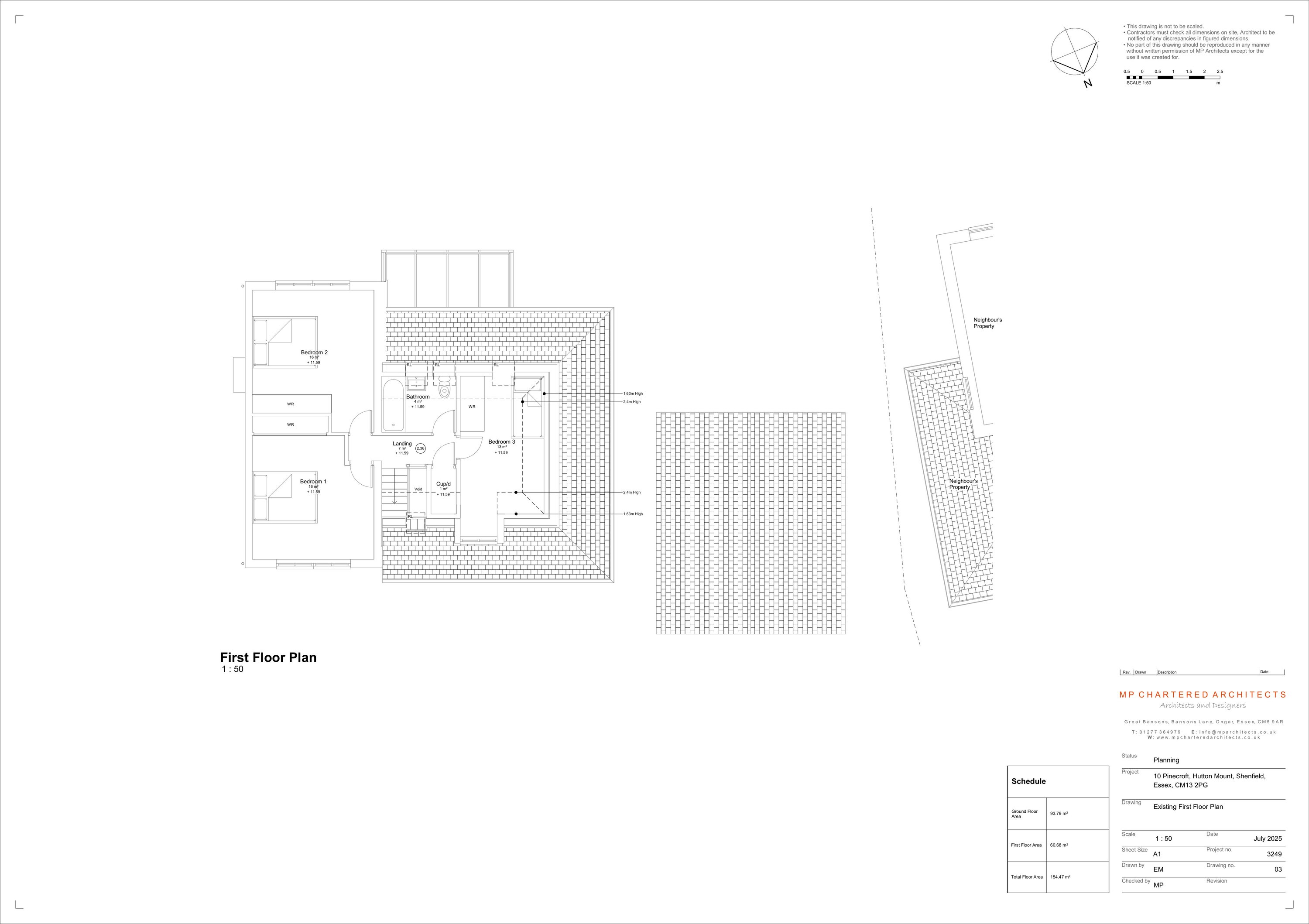
Construction of two storey side extension, single storey rear extension, new patio, entrance steps and portico

Have your say

Your comment matters. Councils must consider every representation that raises material planning considerations.

Write a comment