← Brentwood

Status

Pending Consideration House extension
Received
Not recorded
New homes
0

Full proposal

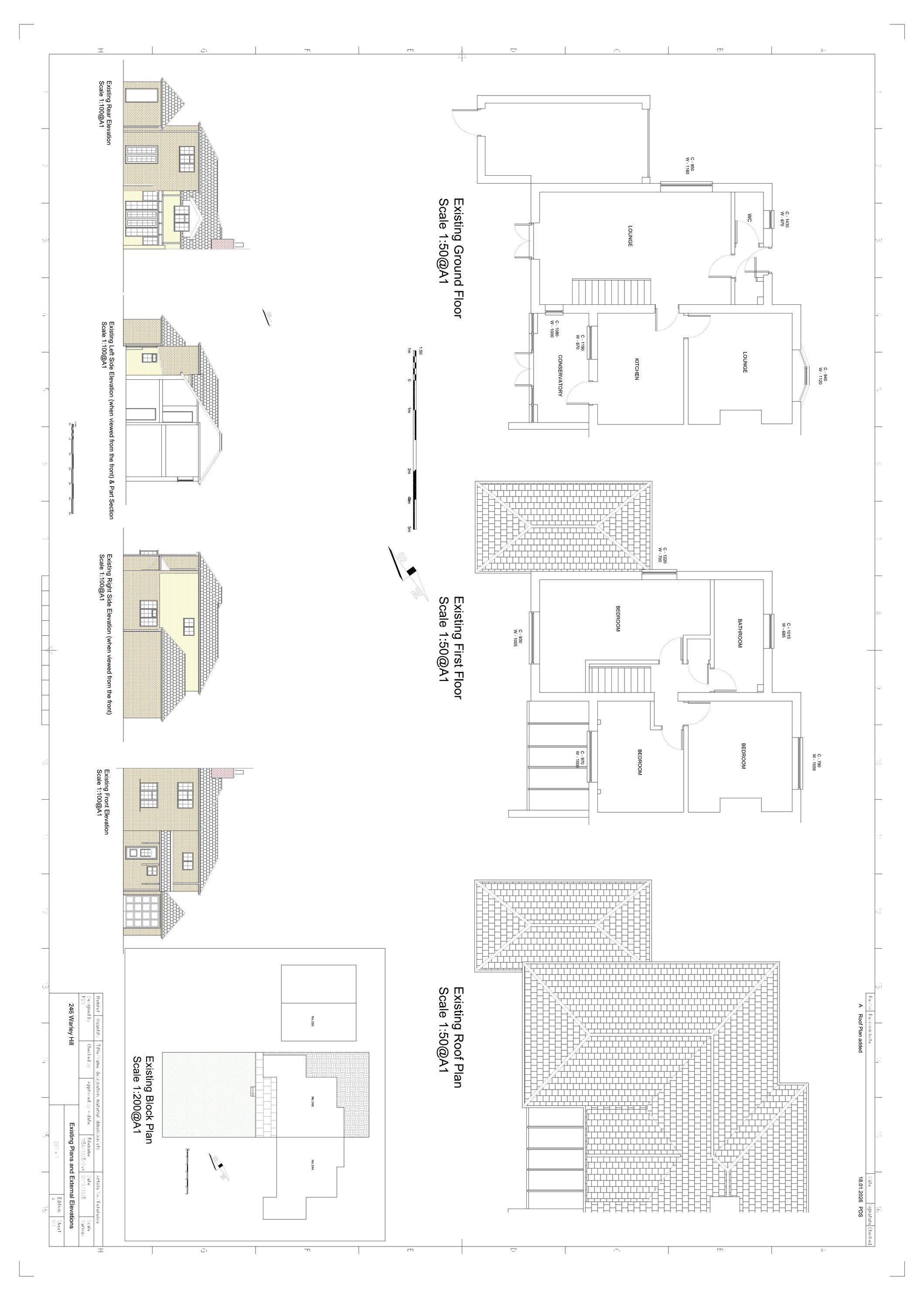
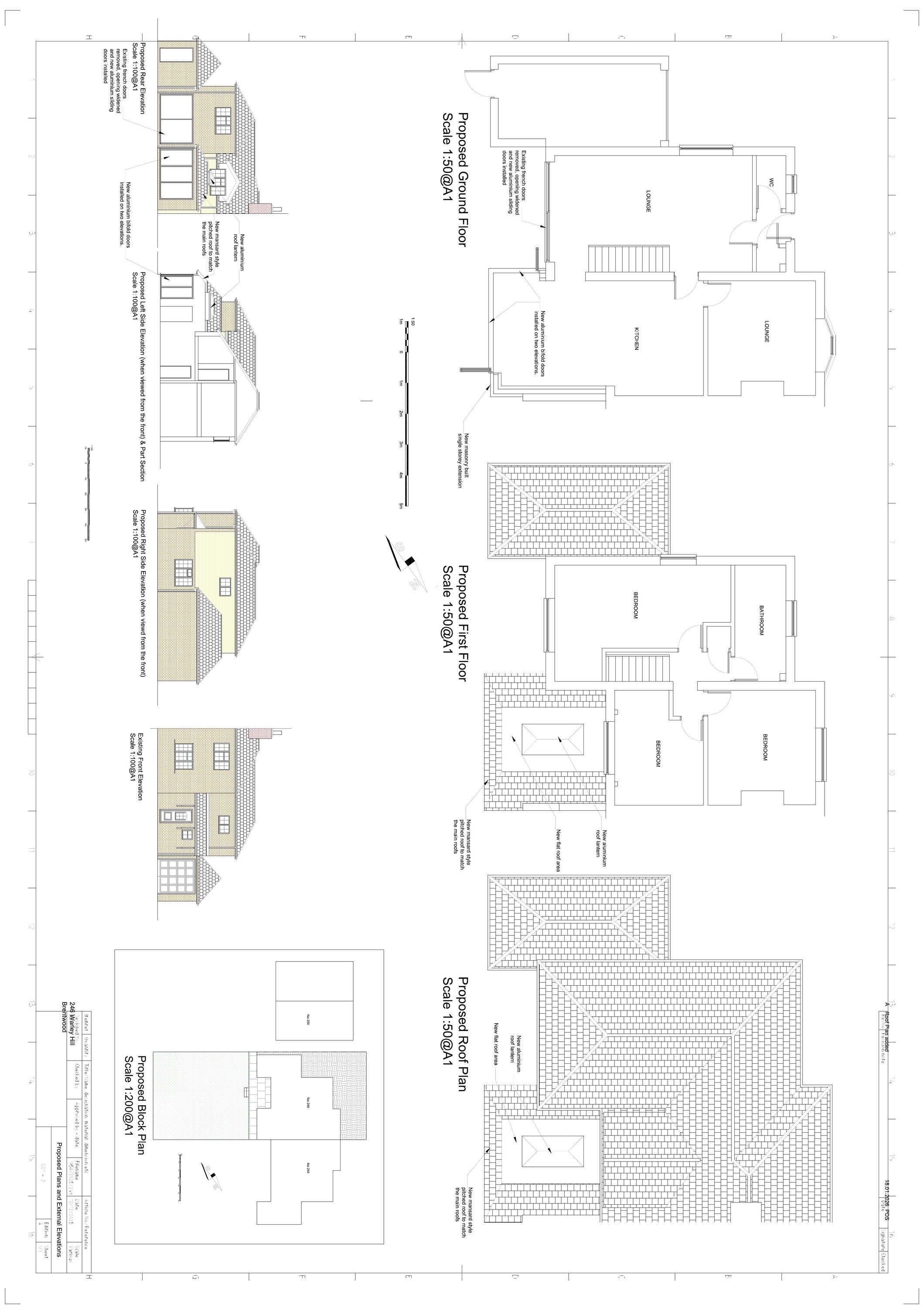
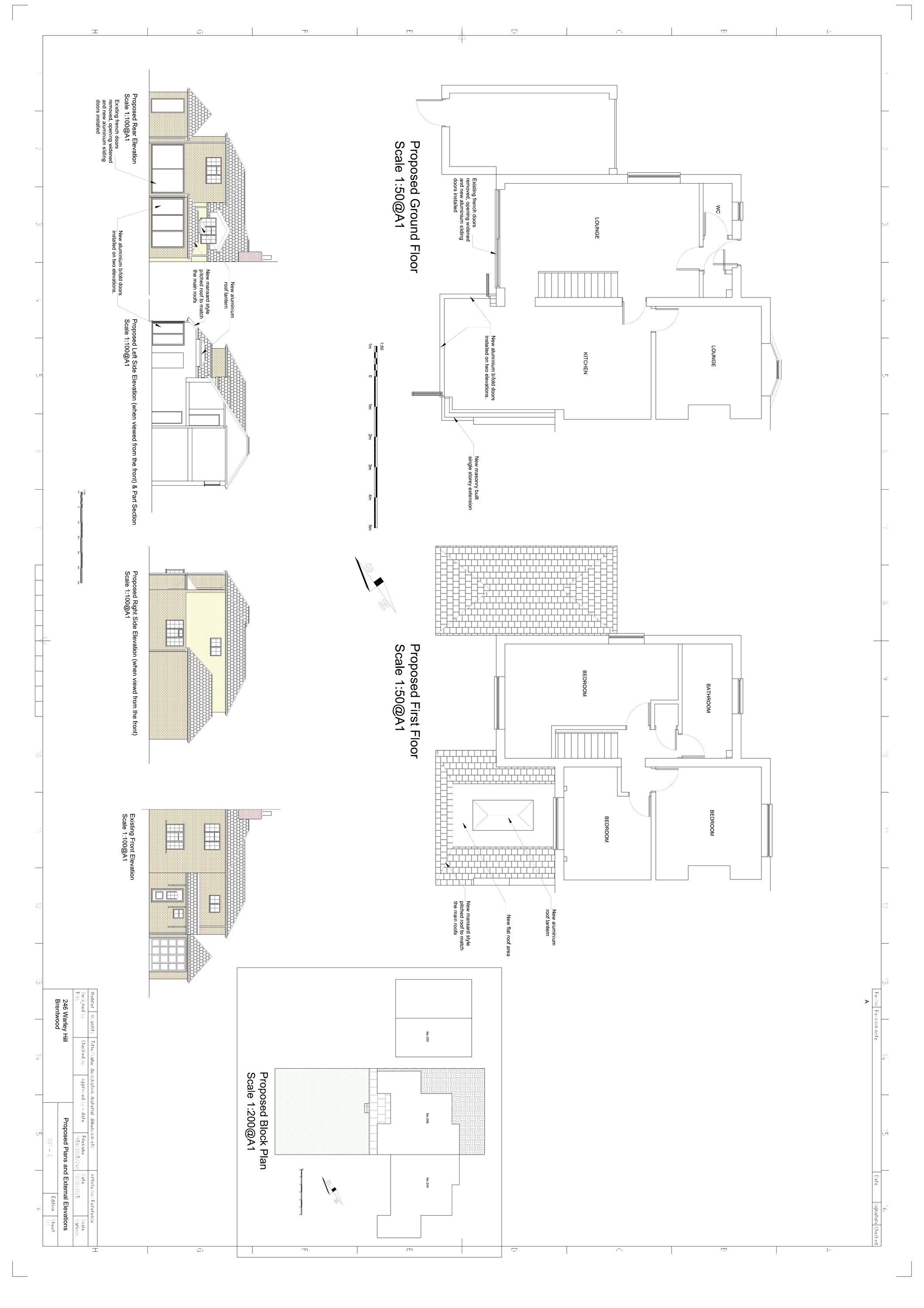
Demolition of existing lean-to, construction of single storey rear extension and alterations to fenestration.

Have your say

Your comment matters. Councils must consider every representation that raises material planning considerations.

Write a comment