← Brentwood

Status

Pending Consideration House extension
Received
Not recorded
New homes
0

Full proposal

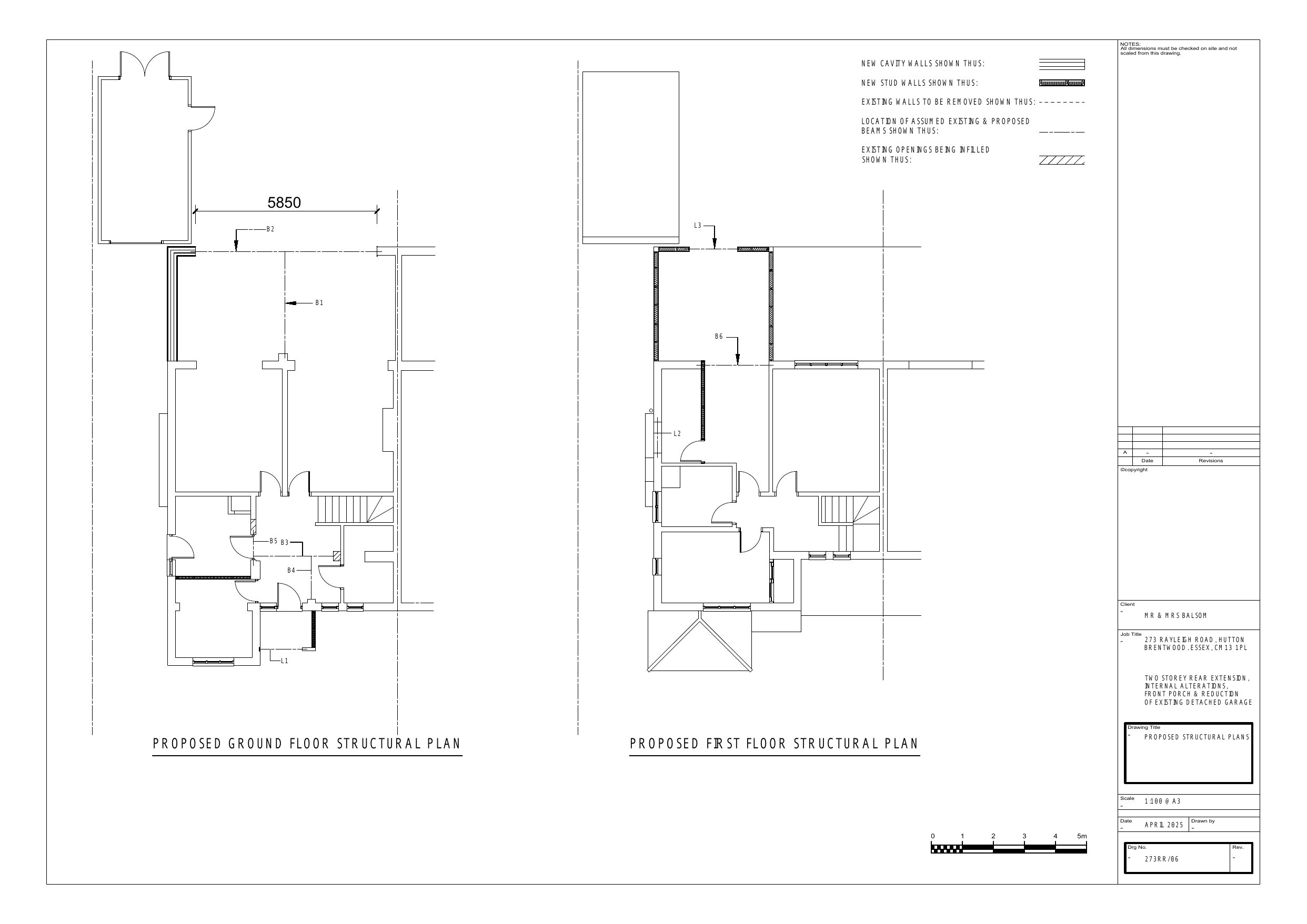
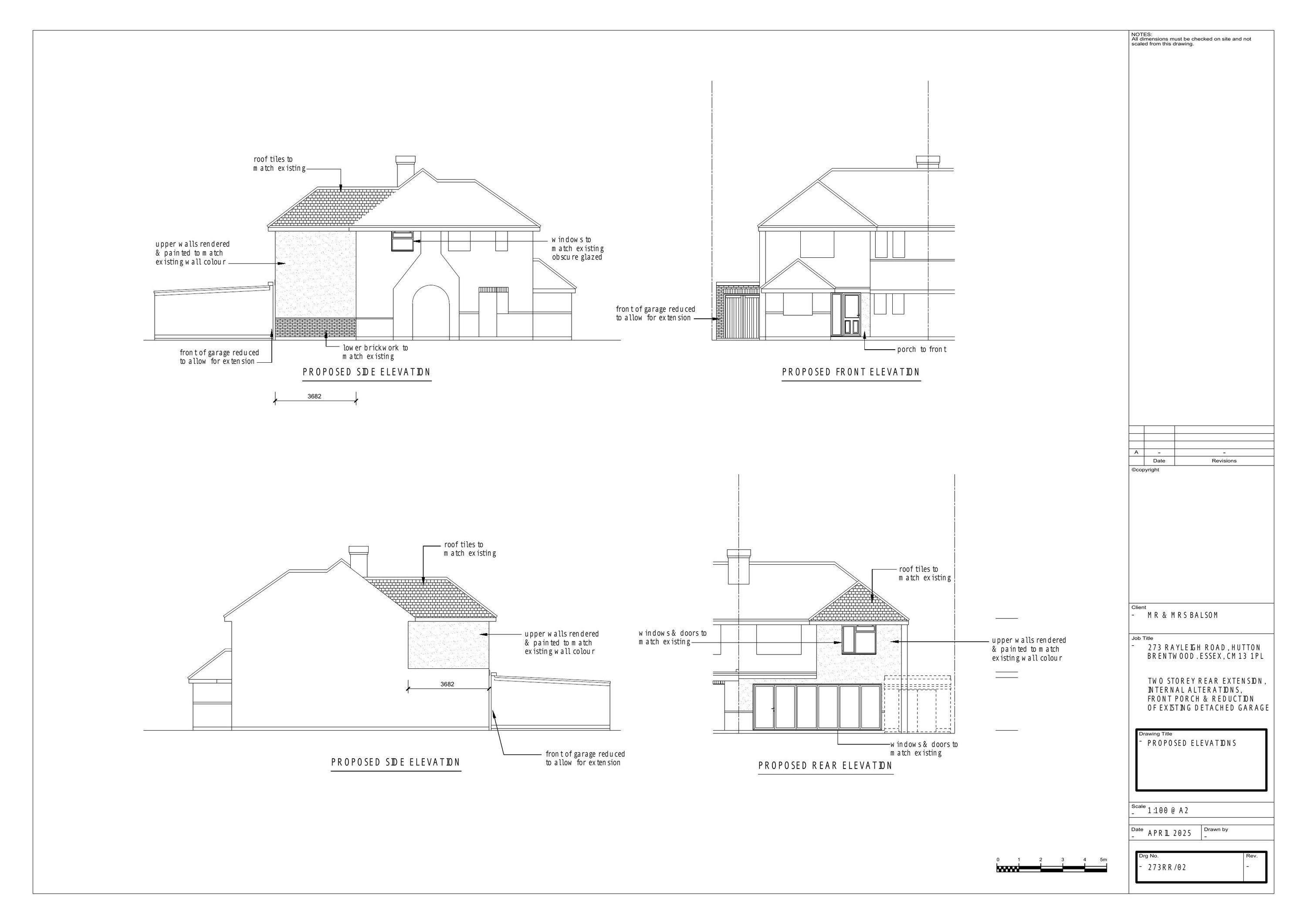
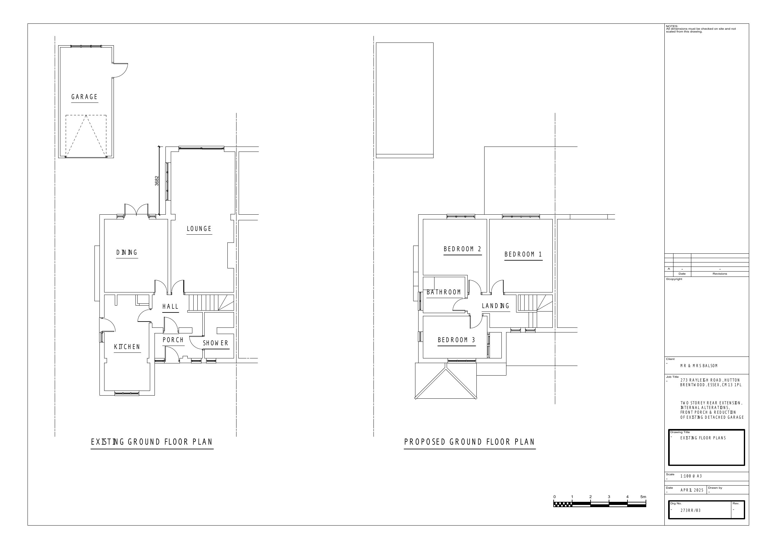
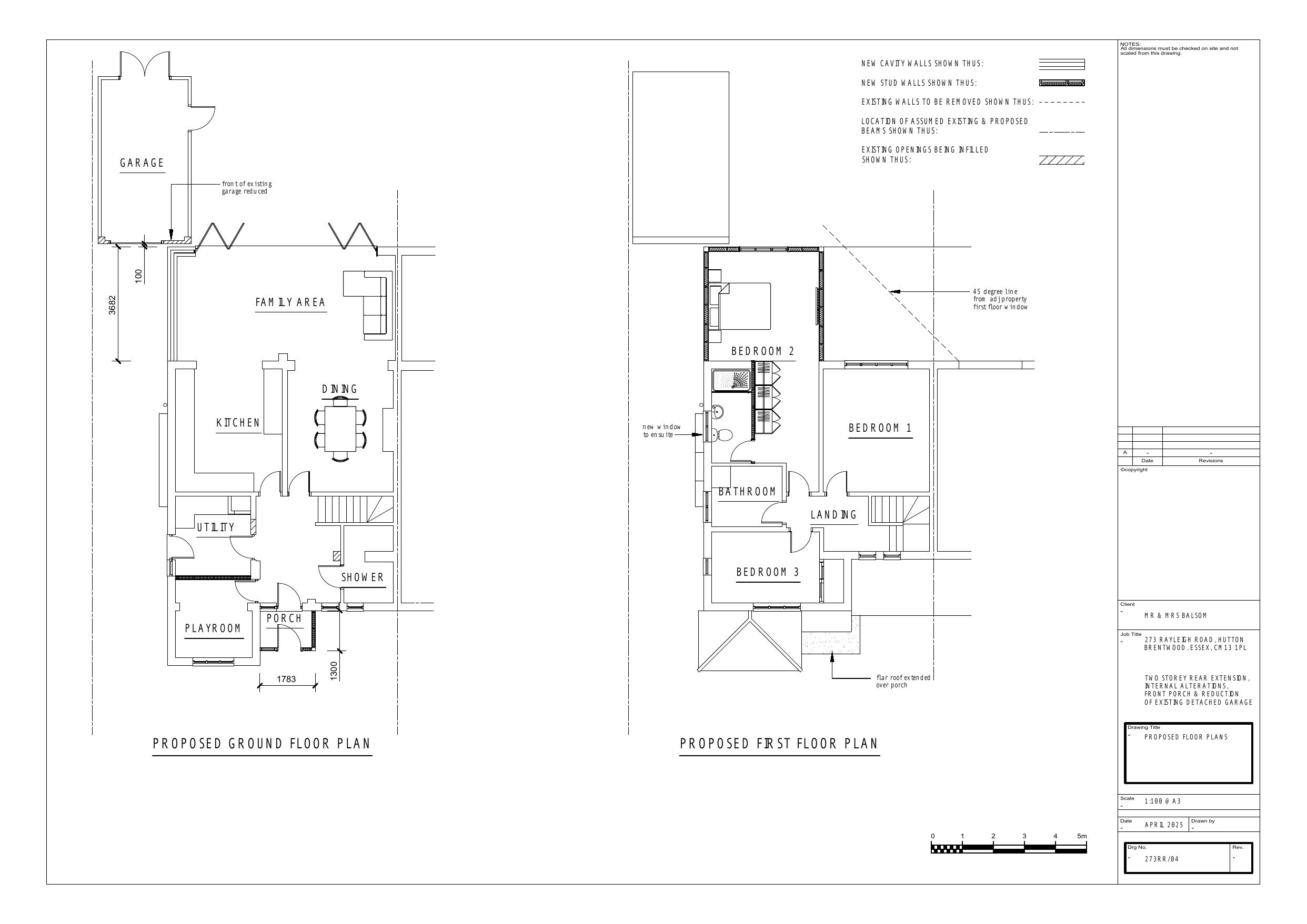
Two storey rear extension, construction of front porch, internal alterations and reduction of existing detached garage.

Have your say

Your comment matters. Councils must consider every representation that raises material planning considerations.

Write a comment