← Brentwood

Status

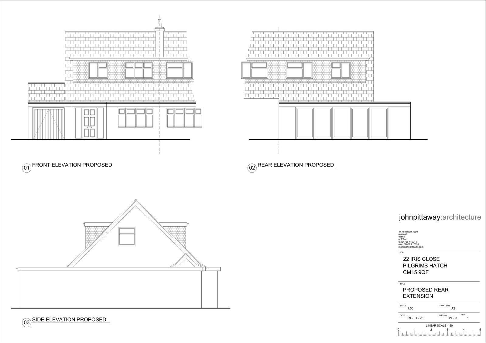
Pending Consideration House extension
Received
Not recorded
New homes
0

Full proposal

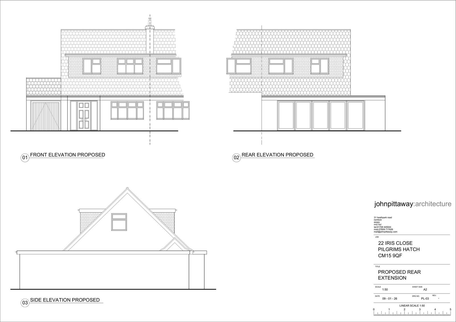
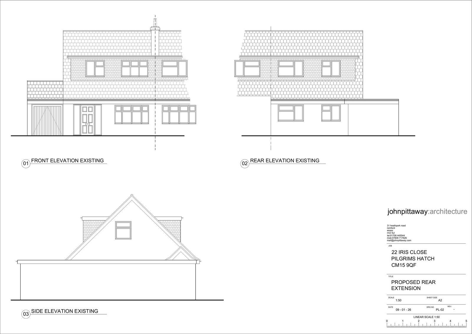
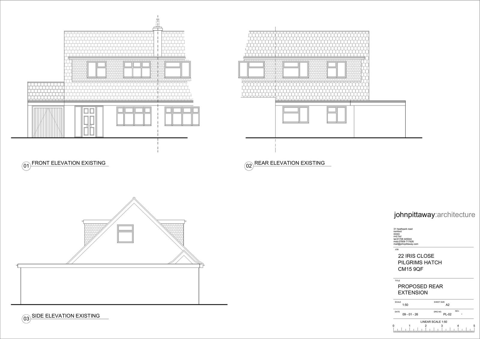
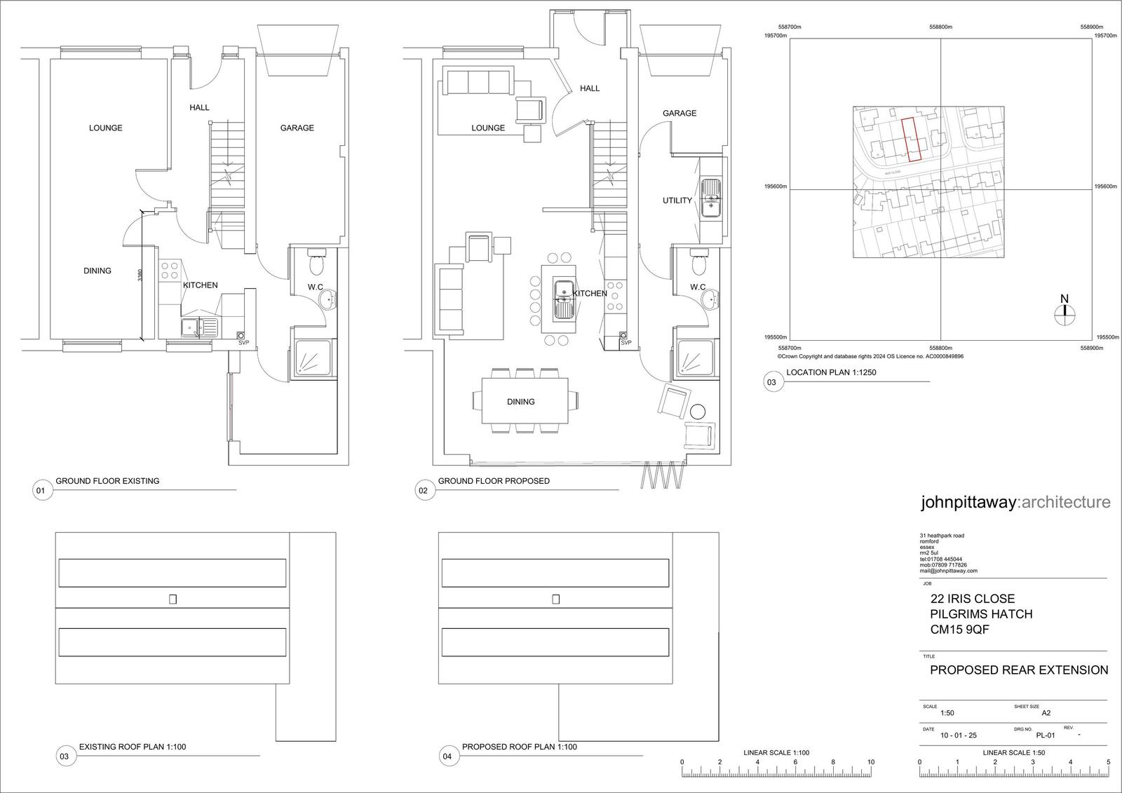
Part conversion of garage to habitable accommodation, construct front porch and single storey rear extension

Have your say

Your comment matters. Councils must consider every representation that raises material planning considerations.

Write a comment