← Brentwood

Status

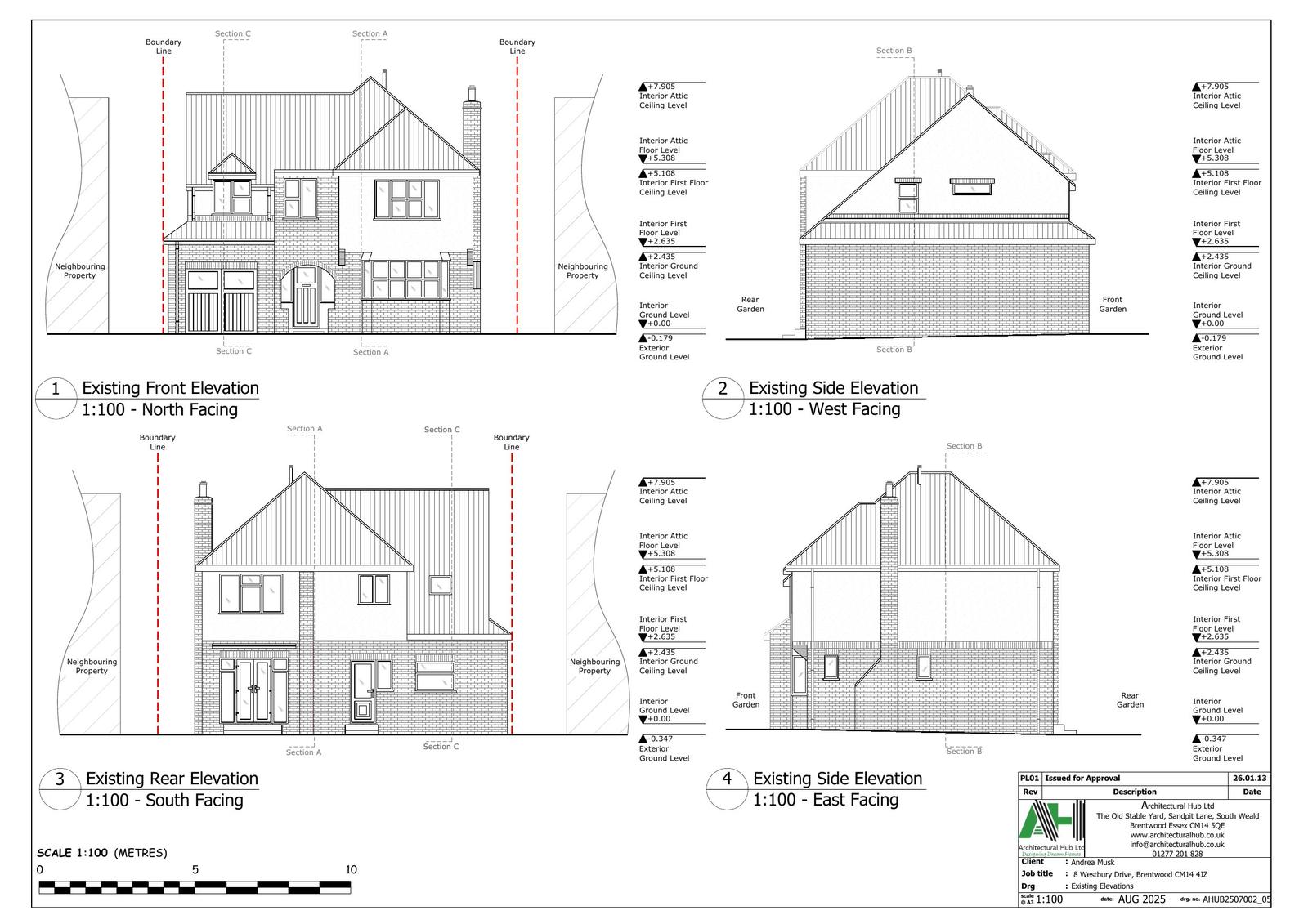
Pending Consideration House extension
Received
Not recorded
New homes
0

Full proposal

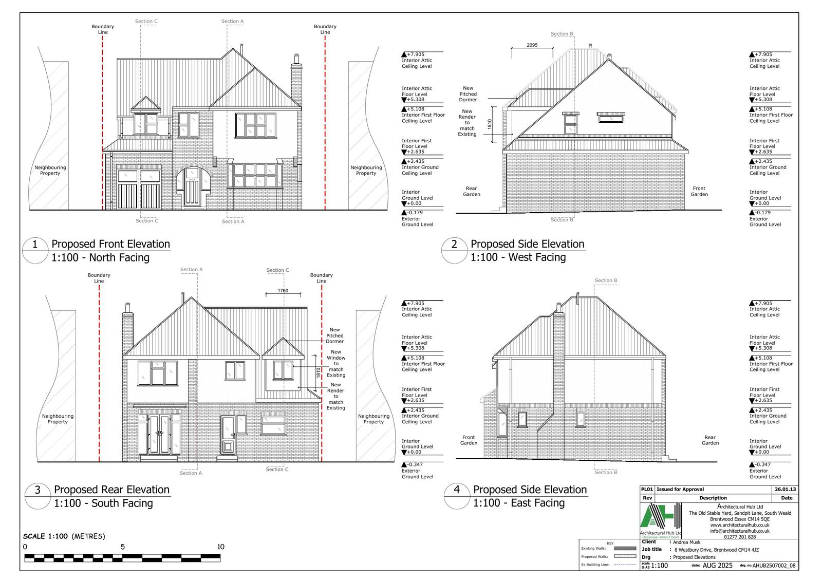
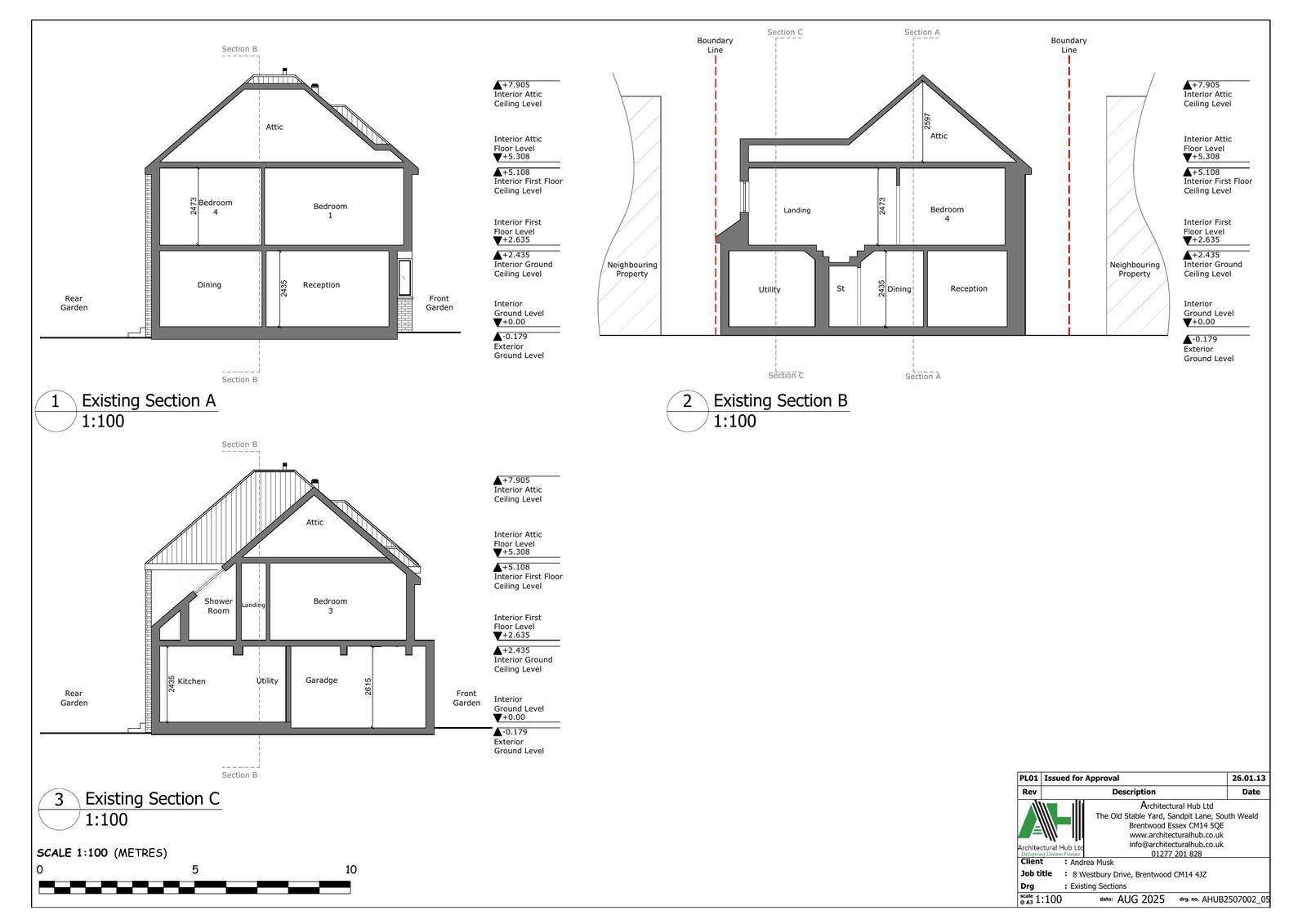
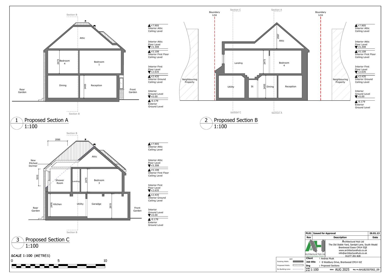
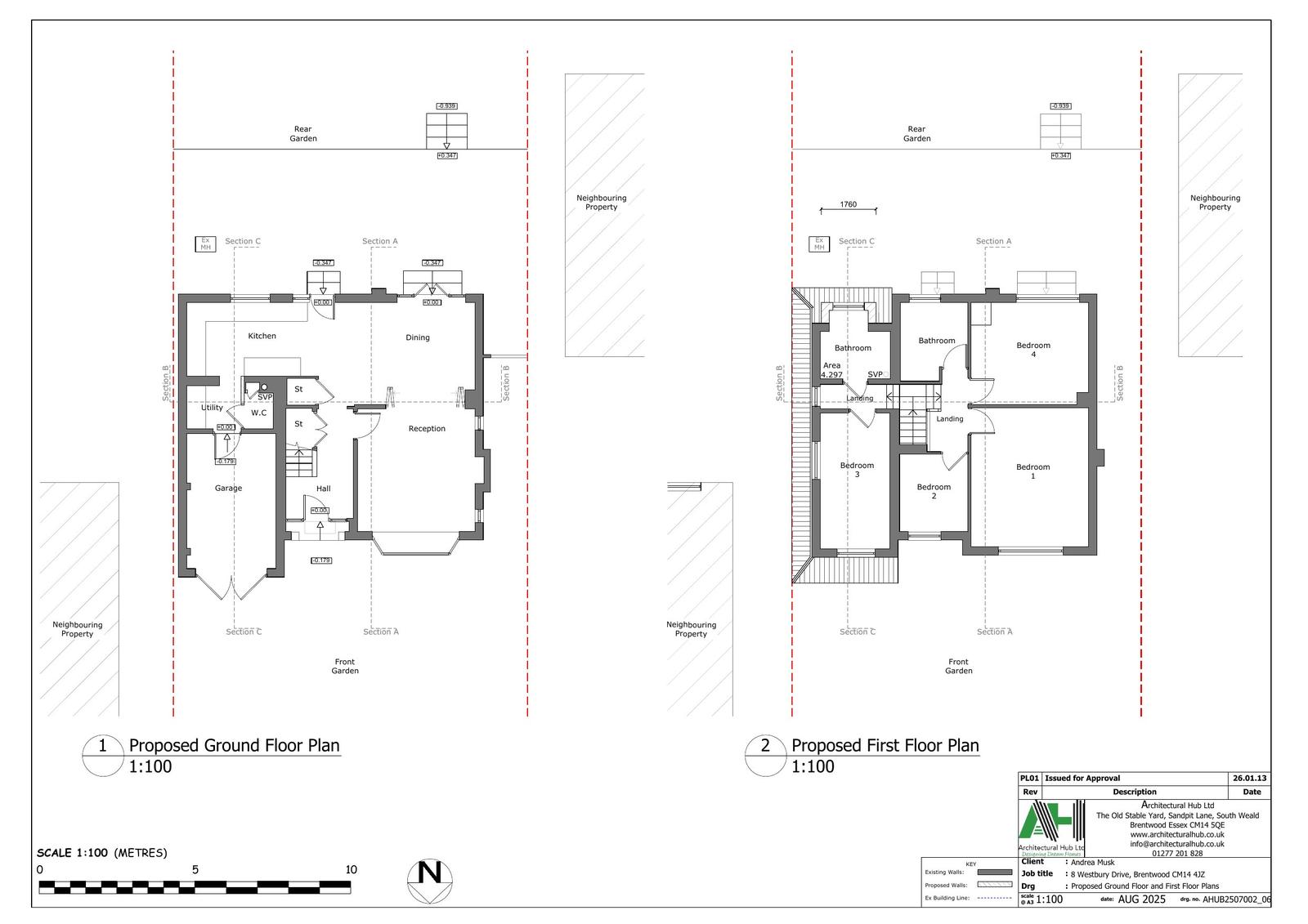
Construction of a rear facing dormer within the cat slide roof to provide adequate light and ventilation to a small bathroom

Have your say

Your comment matters. Councils must consider every representation that raises material planning considerations.

Write a comment