← Brentwood

Status

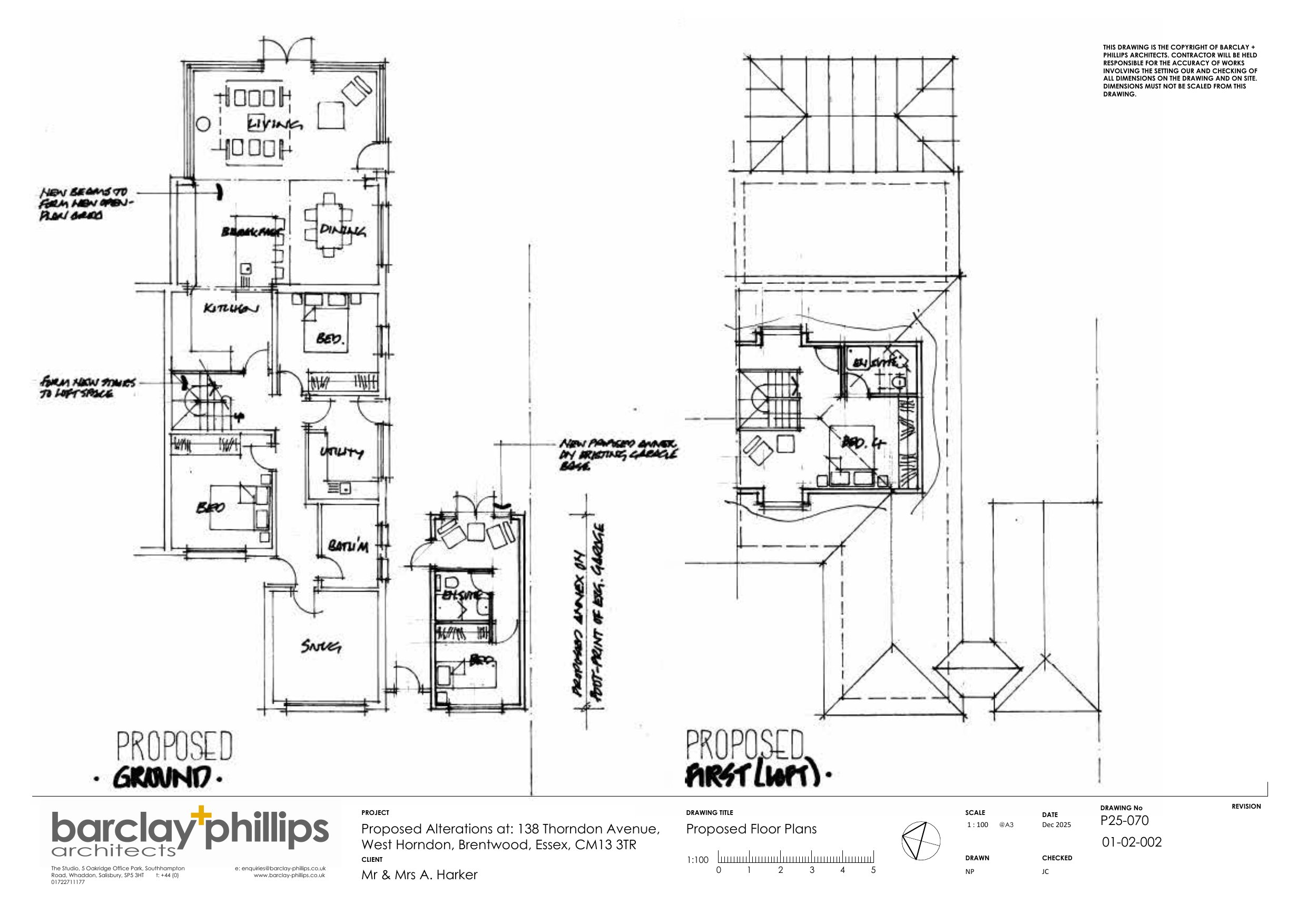
Pending Consideration House extension
Received
Not recorded
New homes
0

Full proposal

Remove garage and construct single storey annex on the existing footprint. Loft conversion with front and rear dormers

Have your say

Your comment matters. Councils must consider every representation that raises material planning considerations.

Write a comment