← Brentwood

Status

Pending Consideration House extension
Received
Not recorded
New homes
0

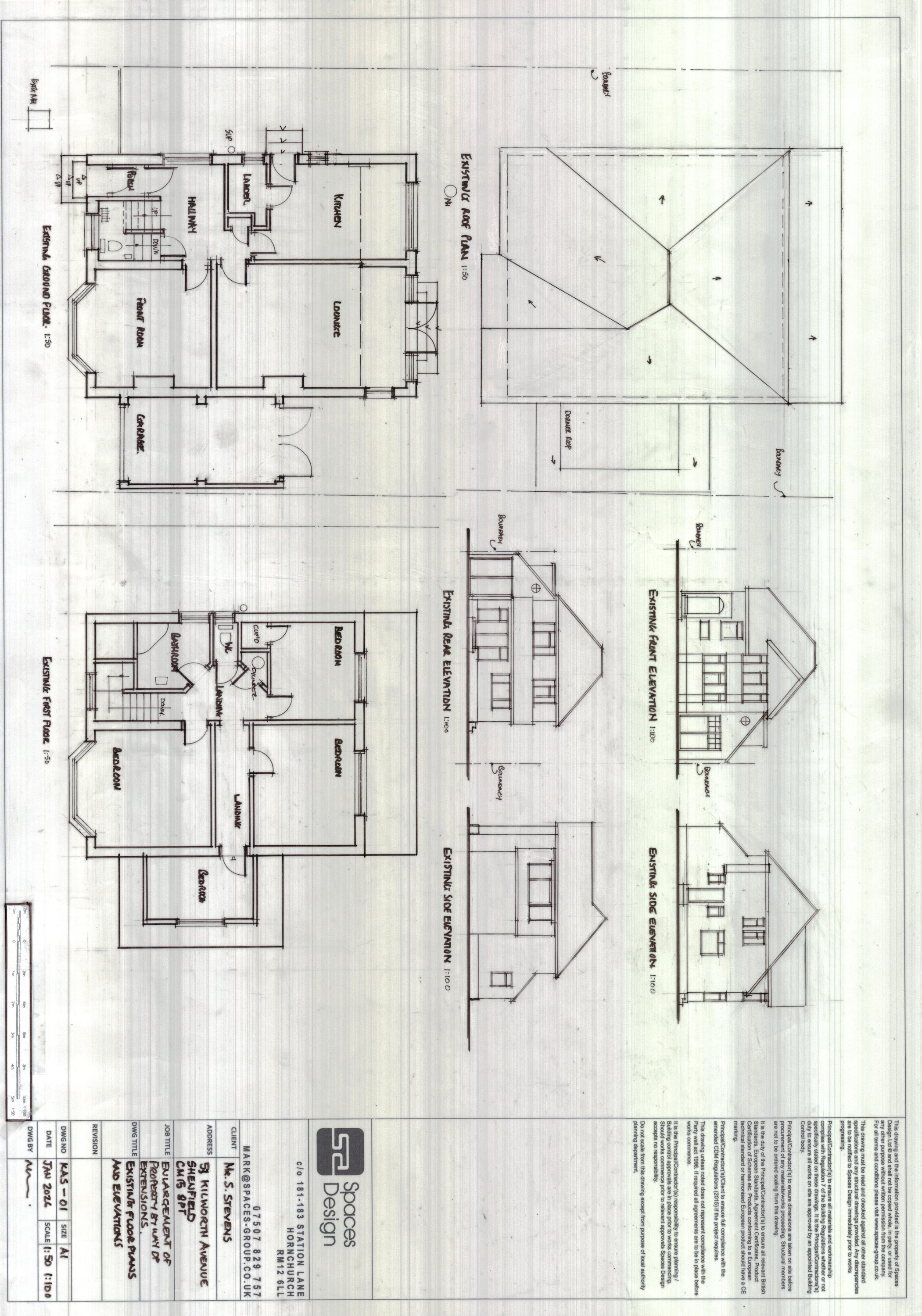
Full proposal

Enlargement of existing dwelling involving two storey side and rear extensions, re-profiling of existing hipped roof to accommodate ensuite bedroom in newly formed roof space, formation of front and rear dormers, new front porch, changes to existing fenestration and new external materials treatment.

Have your say

Your comment matters. Councils must consider every representation that raises material planning considerations.

Write a comment