← Brentwood

Status

Pending Consideration House extension
Received
Not recorded
New homes
0

Full proposal

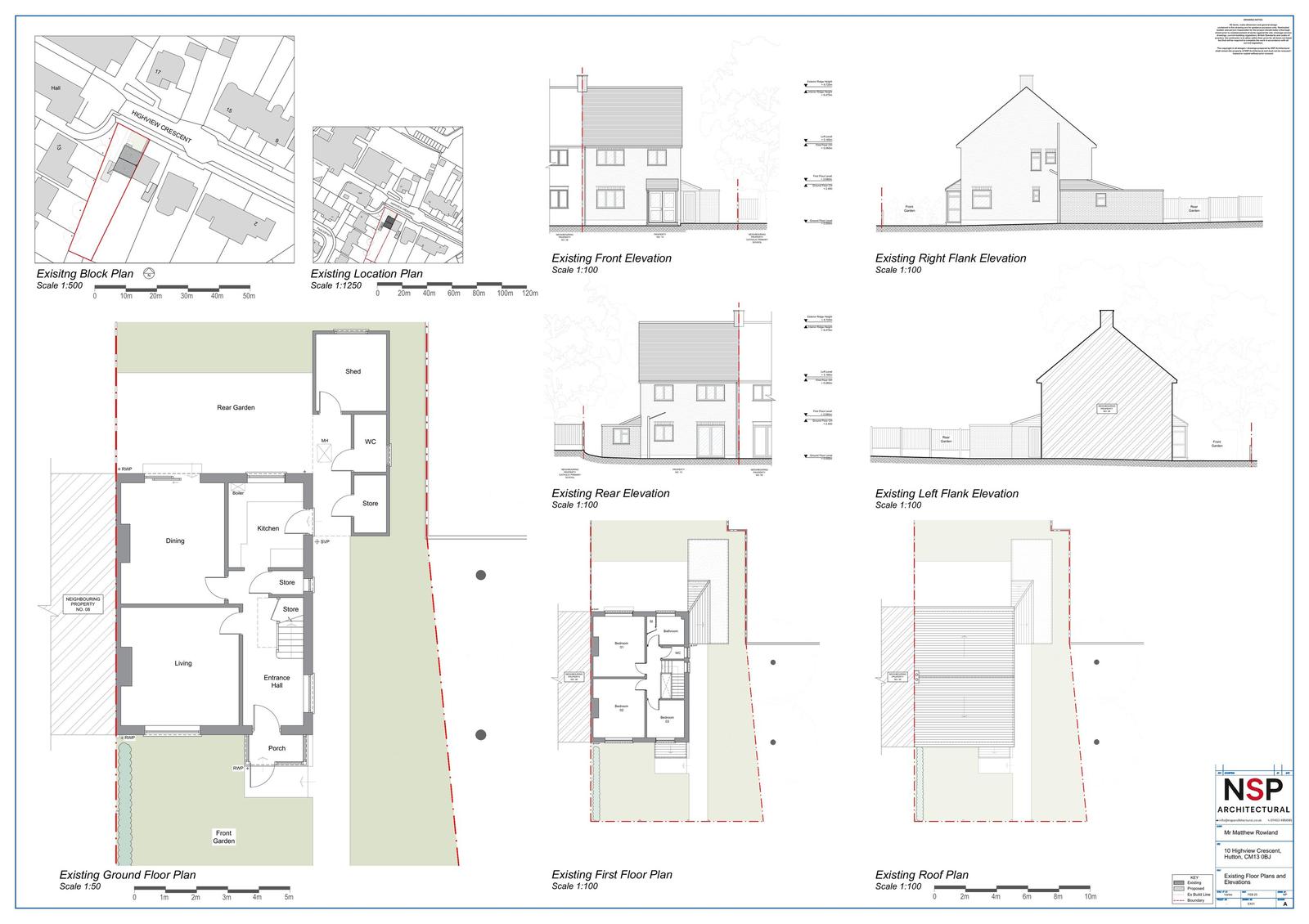
Proposed single storey rear extension to include 2x roof lanterns. The proposed extension would extend 6m beyond the rear wall of the original dwelling, the maximun height of the proposed extension would be 3.3m and the proposed eaves height would be 3m

Have your say

Your comment matters. Councils must consider every representation that raises material planning considerations.

Write a comment