← Brentwood

Status

Pending Consideration House extension
Received
Not recorded
New homes
0

Full proposal

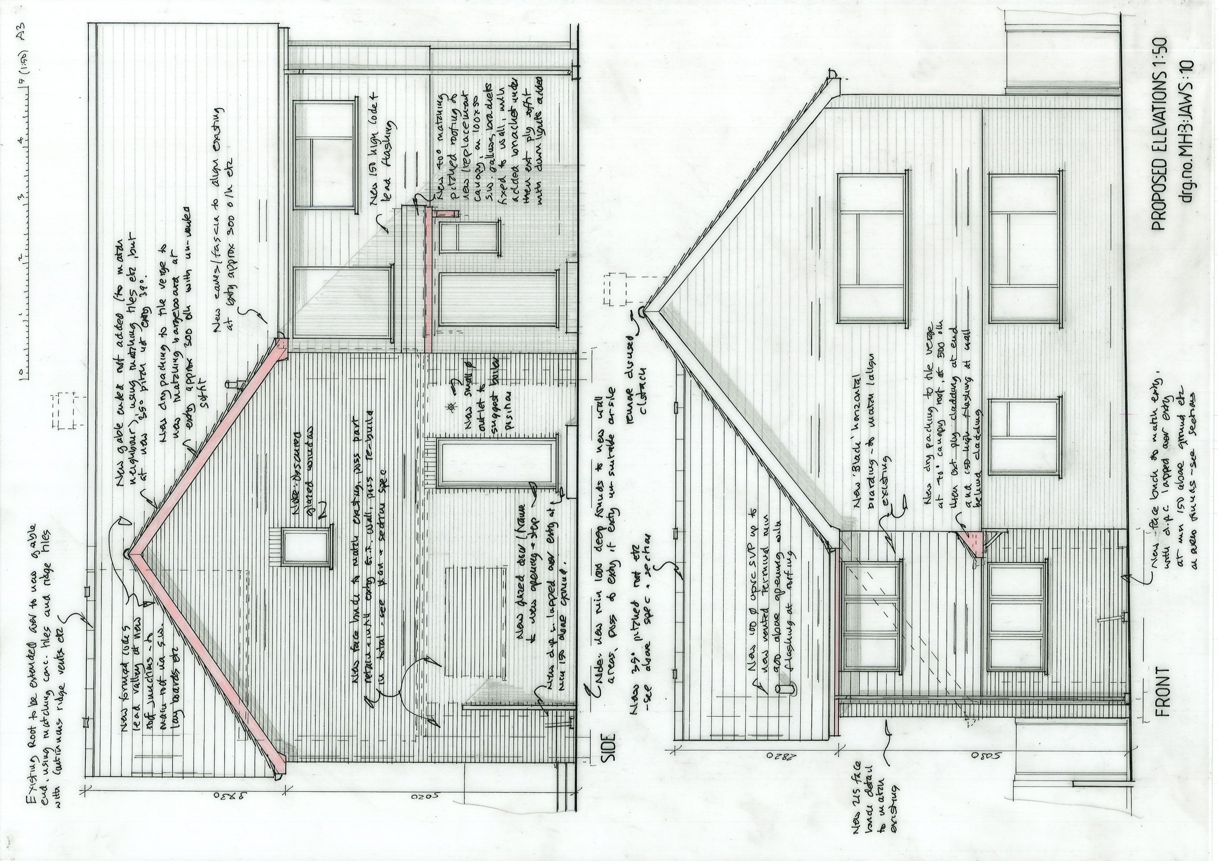
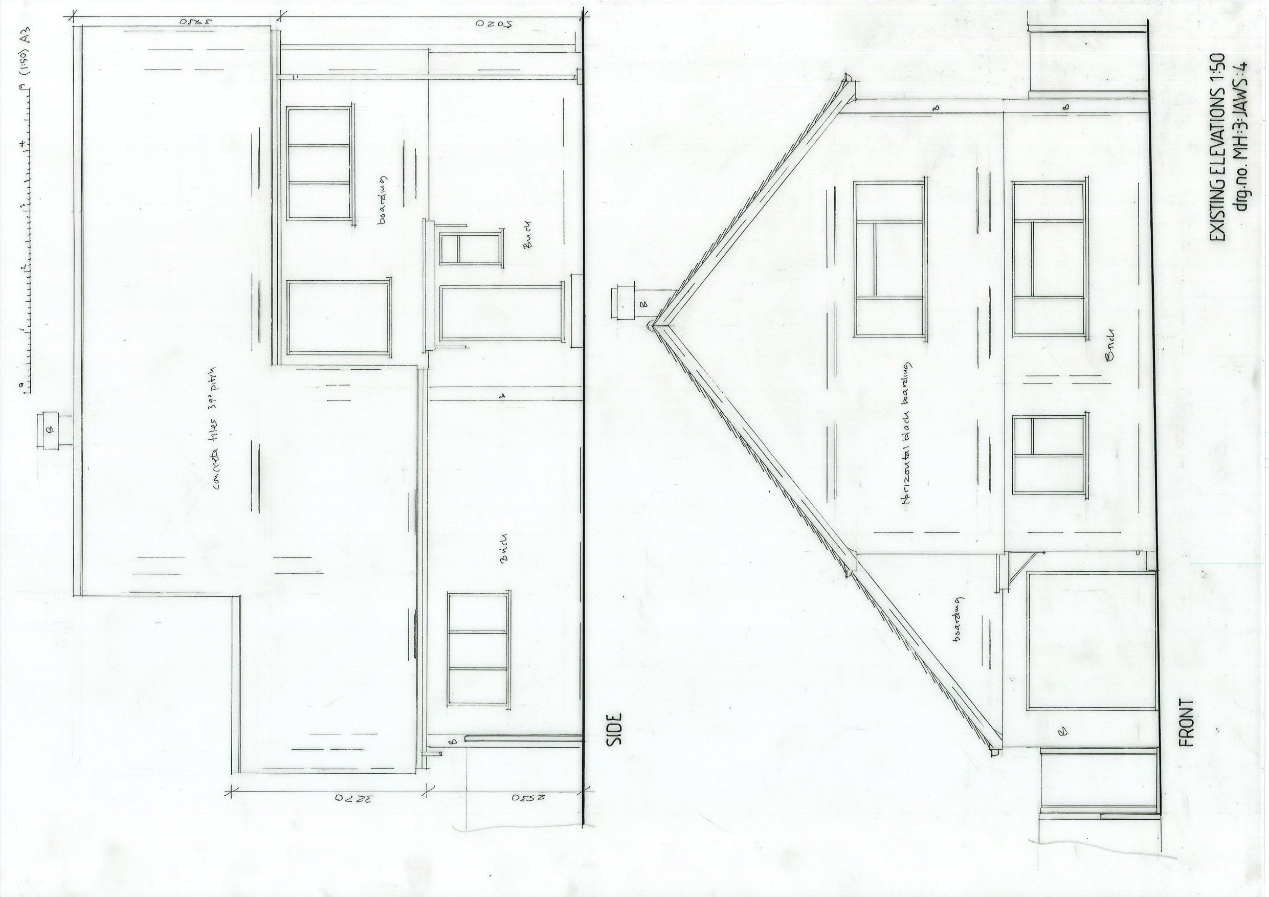
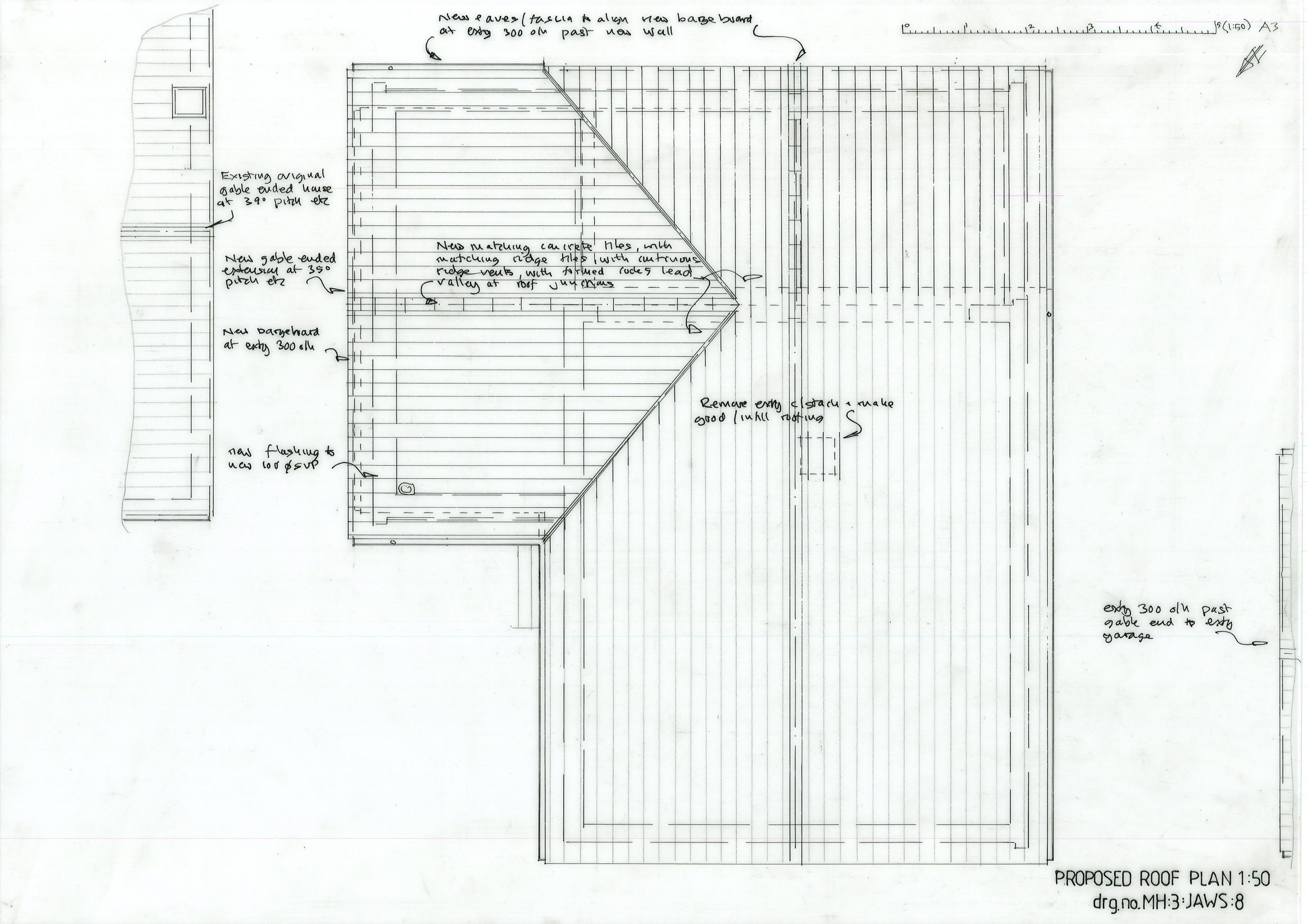
Demolition of garage, part side part rear extension. Construction of two storey side and rear extension with alteration to fenestration.

Have your say

Your comment matters. Councils must consider every representation that raises material planning considerations.

Write a comment