← Brentwood

Status

Pending Consideration New housing
Received
Not recorded
New homes
1

Full proposal

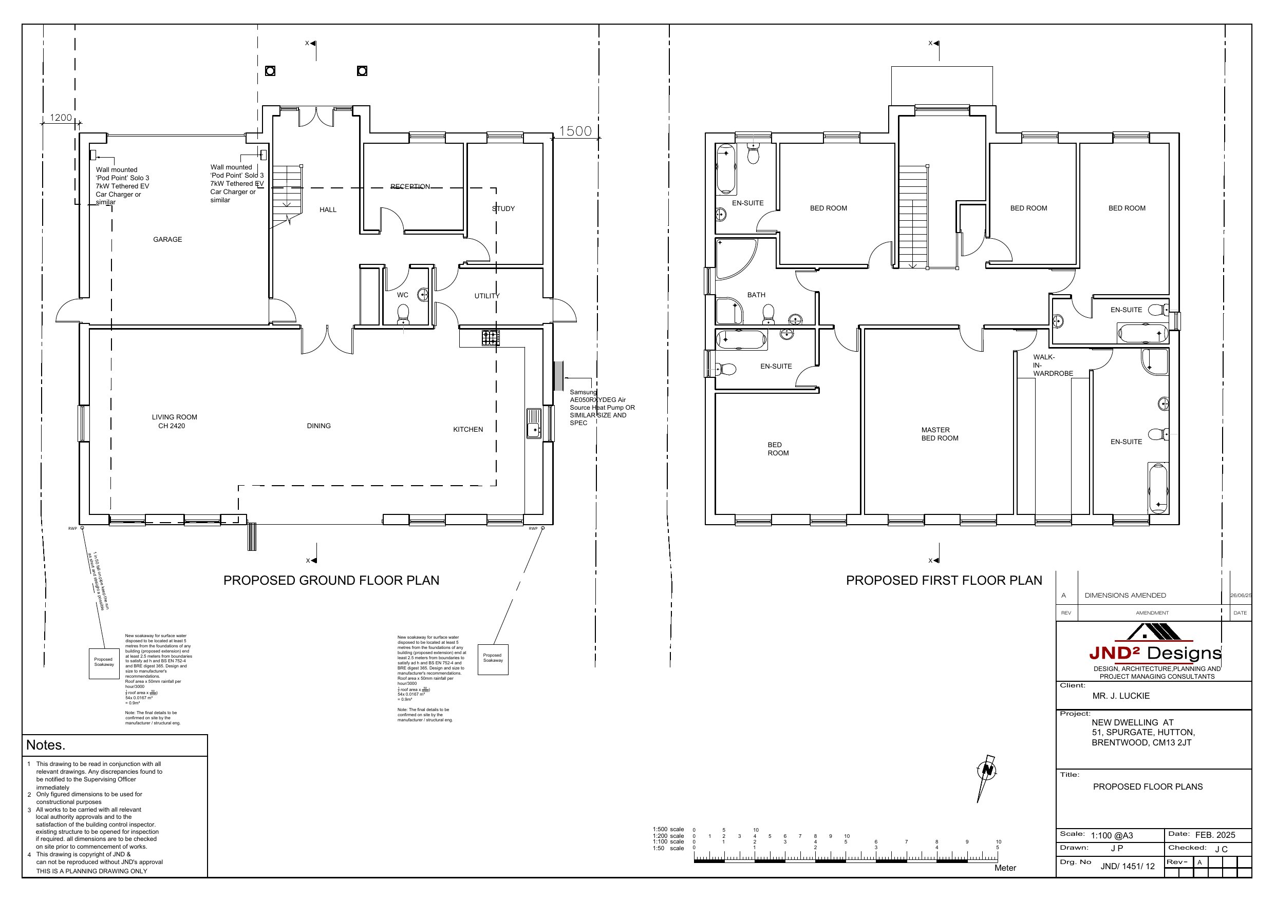
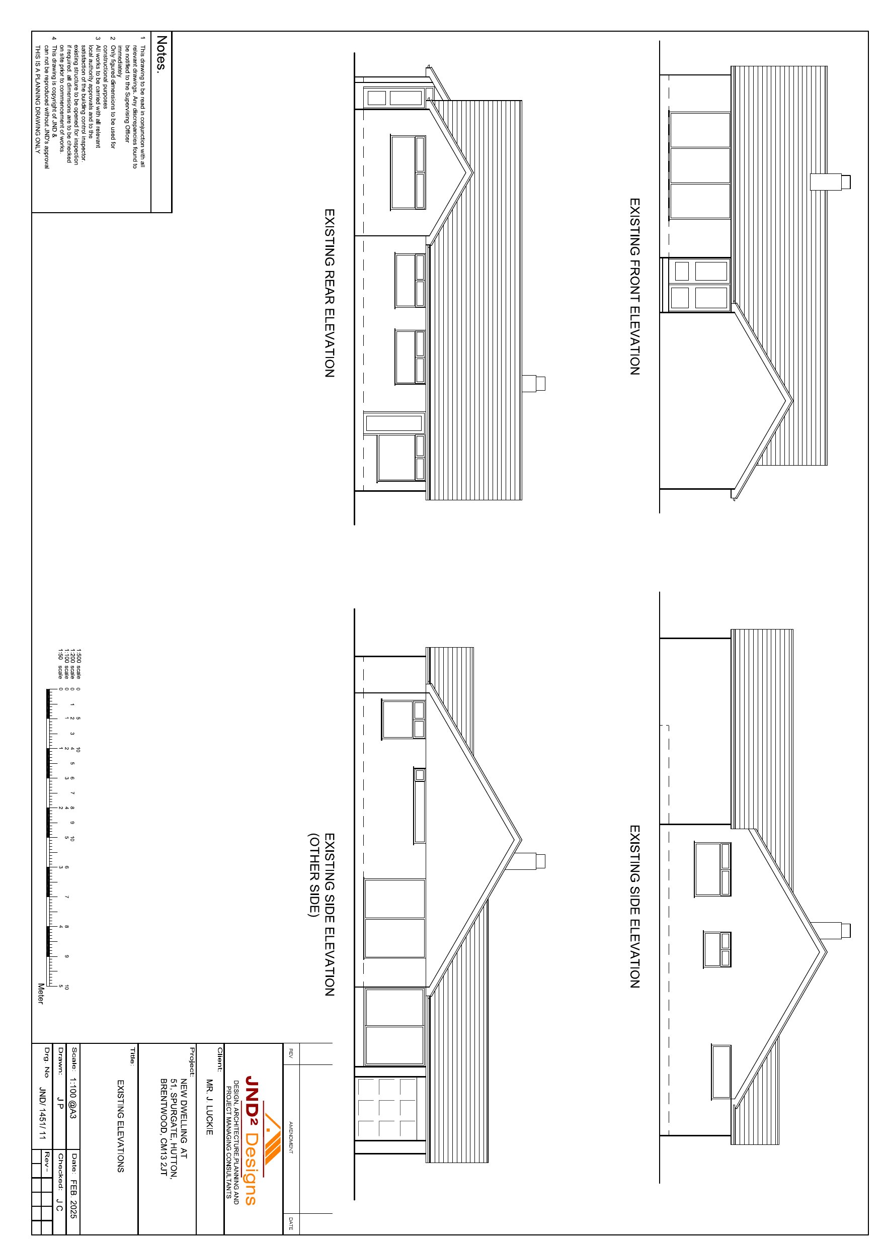
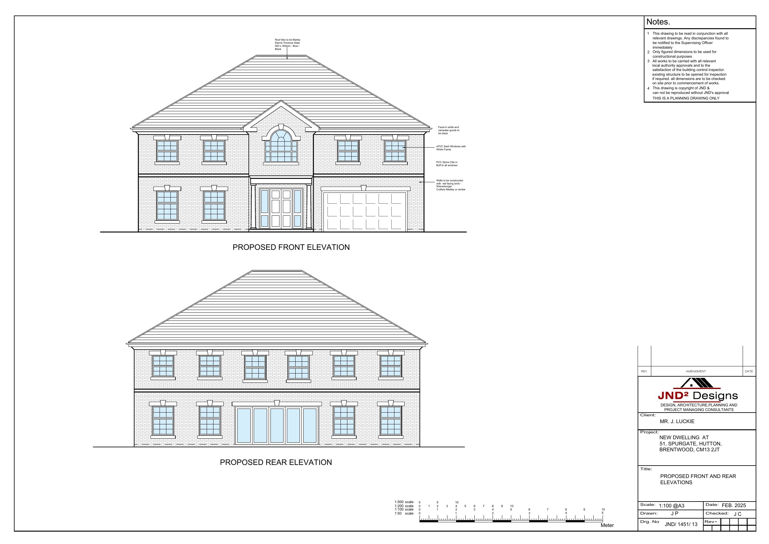
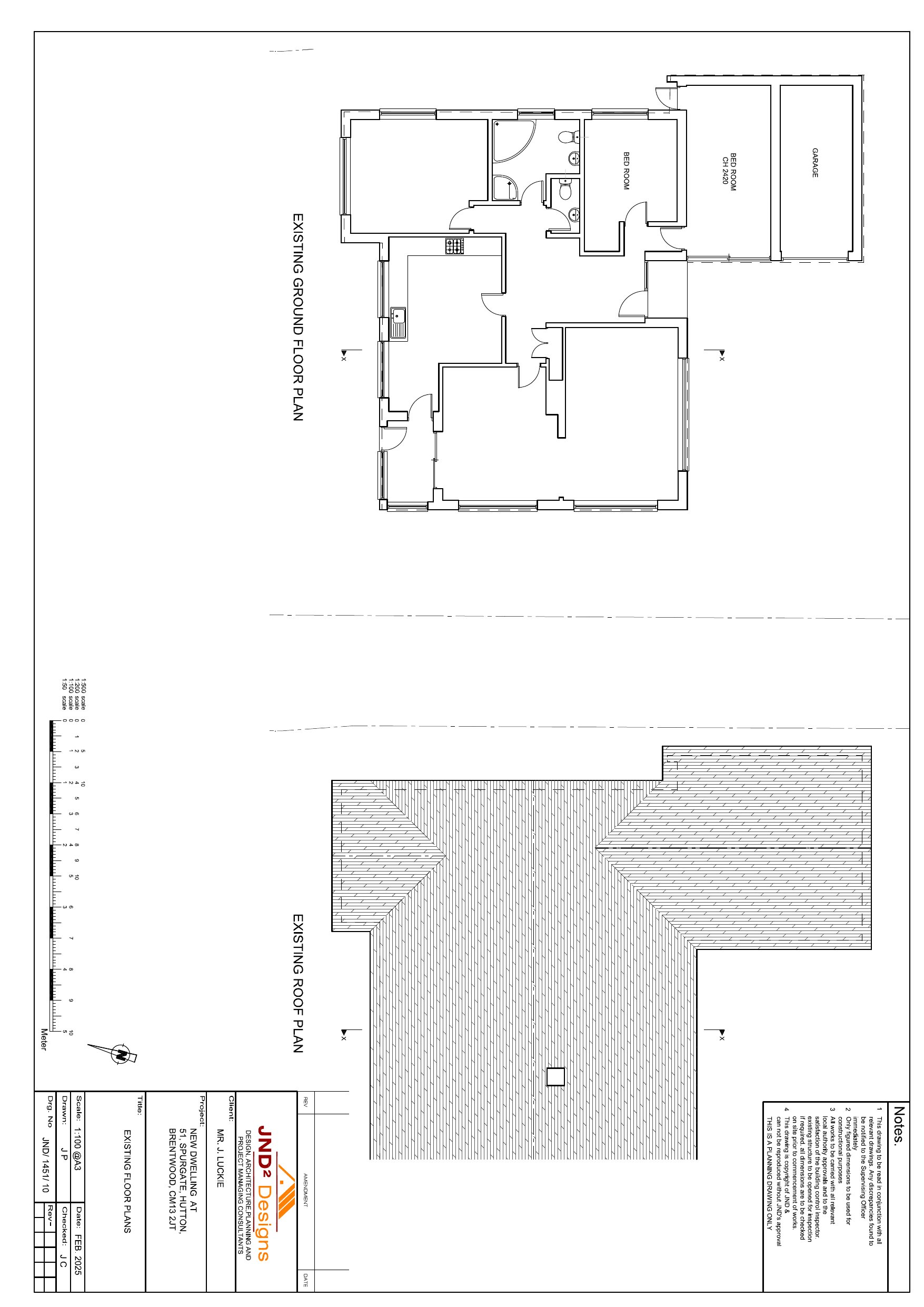
Proposed construction of a two storey detached dwelling. Construction of new site access to include gates.

Have your say

Your comment matters. Councils must consider every representation that raises material planning considerations.

Write a comment