← Brentwood

Status

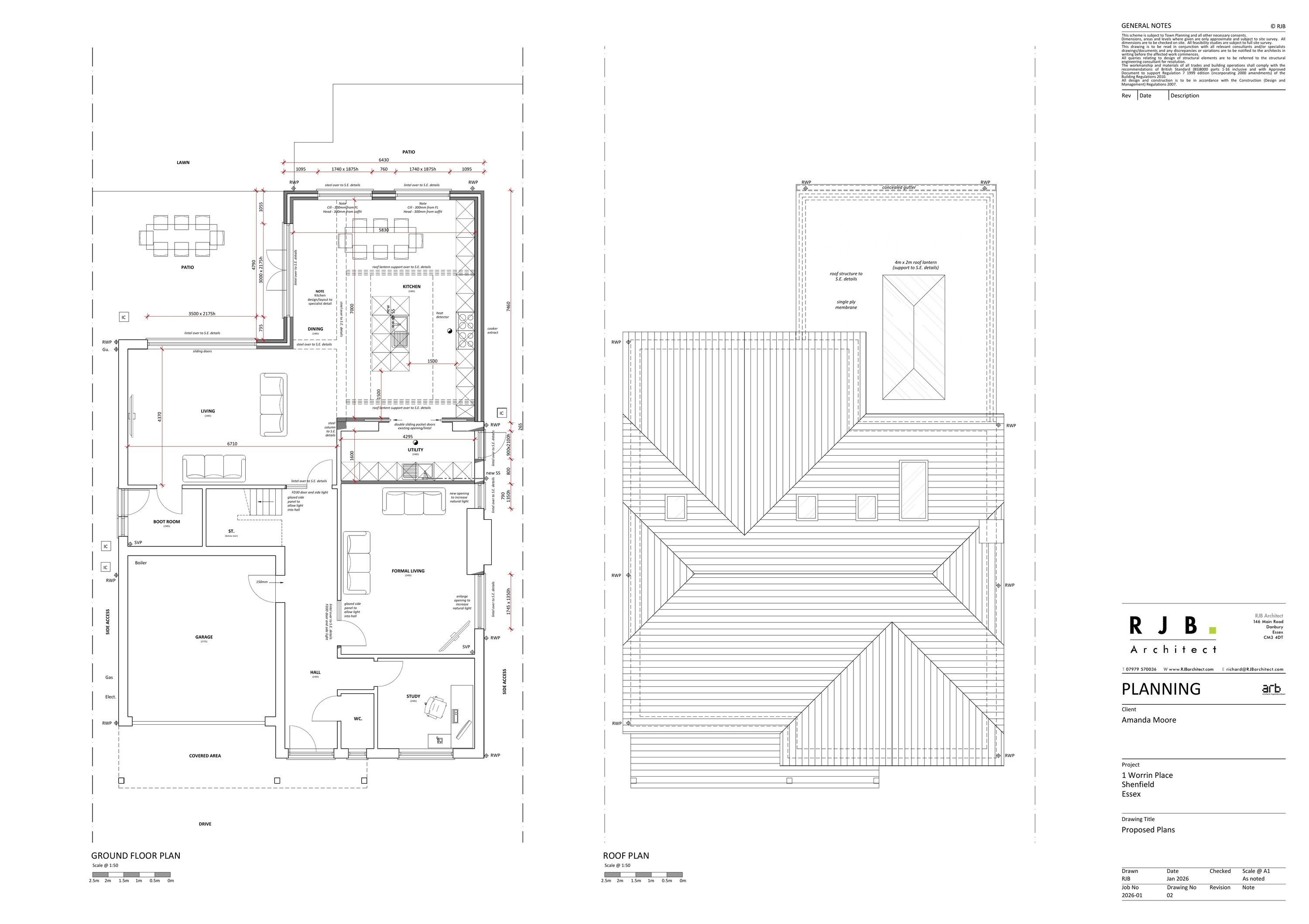
Pending Consideration House extension
Received
Not recorded
New homes
0

Full proposal

Construction of single storey rear extension with roof lantern and alteration to fenestration.

Have your say

Your comment matters. Councils must consider every representation that raises material planning considerations.

Write a comment