26/00225/HHA
Brentwood
Status
Pending Consideration
House extension
Received
Not recorded
New homes
0
Full proposal
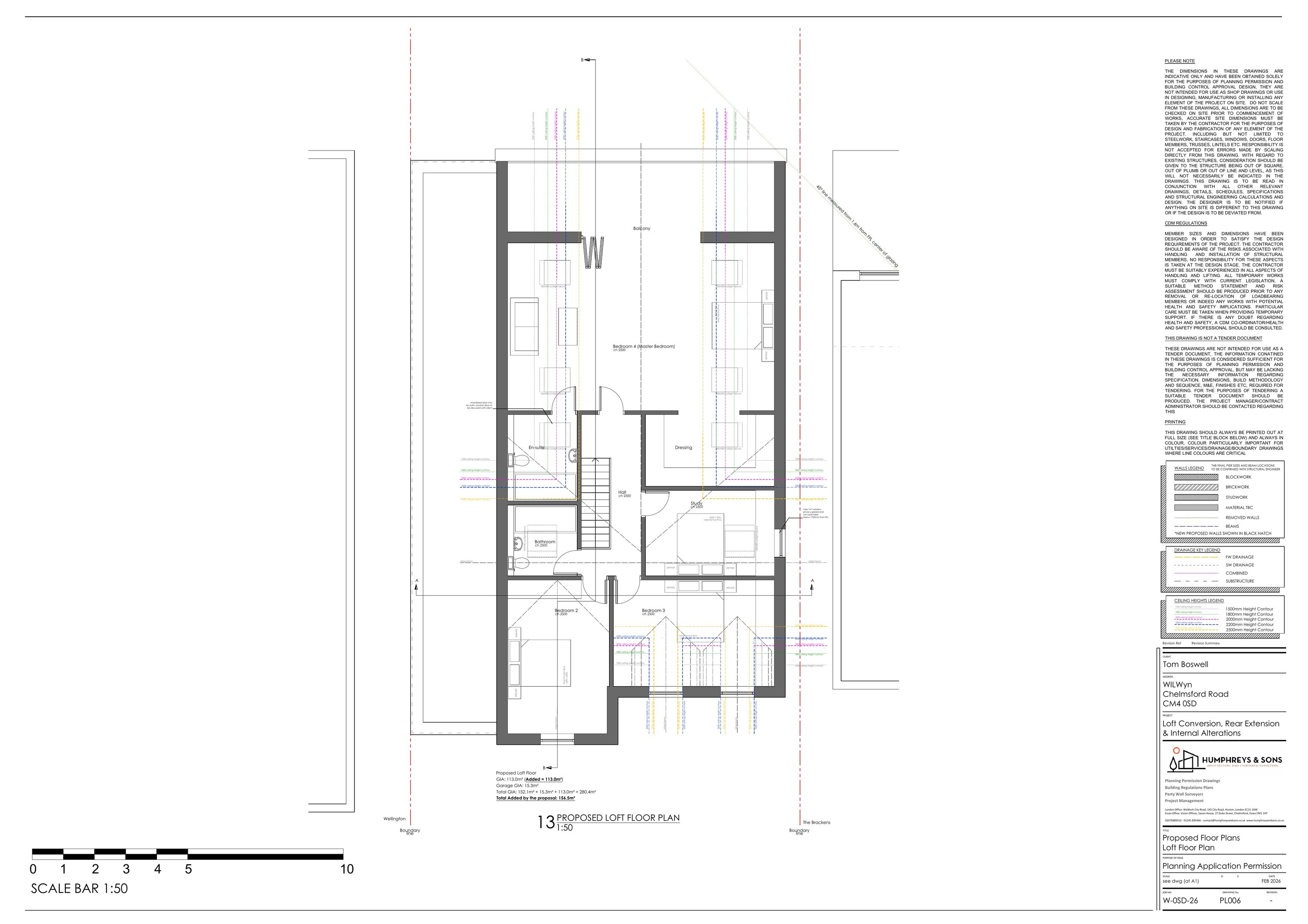
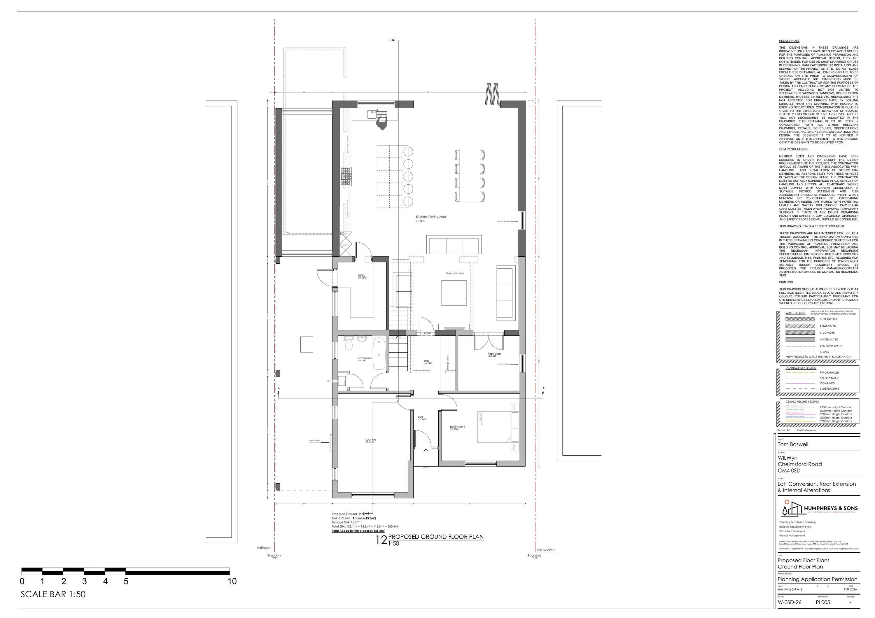
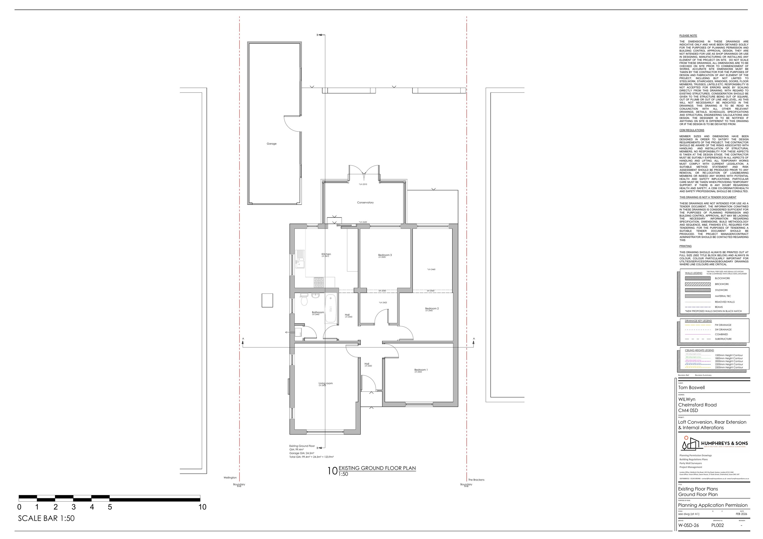
Demolition of existing detached garage and build of new garage structure to the side of the property. Construction of a rear Extension, increase in height of ridge to create first floor and internal alterations.
Documents
Have your say
Your comment matters. Councils must consider every representation that raises material planning considerations.