← Back to Brighton & Hove City Council
Application
BH2026/00074
Brighton & Hove City Council · IDOX
Status
Registered
Received
23 days ago
New dwellings
n/a
What you can do
Take Action
Make your voice heard. Authorities need to hear from people who support new homes.
Full Proposal
Erection of 29no dwellings (C3) with associated access road, parking courts and landscaping.
Detail pages
- View live detail on council site
- No archived detail page available.
Documents
ACOUSTIC DESIGN STATEMENT
Supporting Document(s)
Not downloaded
· Council link
AIR QUALITY ASSESSMENT
Supporting Document(s)
Not downloaded
· Council link
APPLICATION FORM - WITHOUT PERSONAL DATA
Application Form
Not downloaded
· Council link
ARCHAEOLOGICAL DESK-BASED ASSESSMENT
Supporting Document(s)
Not downloaded
· Council link
BIODIVERSITY CHECKLIST
Supporting Document(s)
Not downloaded
· Council link
BIODIVERSITY METRIC
Supporting Document(s)
Not downloaded
· Council link
BIODIVERSITY NET GAIN ASSESSMENT
Supporting Document(s)
Not downloaded
· Council link
COMBINED GEOTECHNICAL ASSESSMENT AND INDICATIVE WASTE CLASSIFICATION REPORT
Supporting Document(s)
Not downloaded
· Council link
COMMUNITY INFRASTRUCTURE LEVY - FORM 1
Supporting Document(s)
Not downloaded
· Council link
DAYLIGHT OR SUNLIGHT ASSESSMENT
Supporting Document(s)
Not downloaded
· Council link
DESIGN AND ACCESS STATEMENT PART 1
Supporting Document(s)
Not downloaded
· Council link
DESIGN AND ACCESS STATEMENT PART 2
Supporting Document(s)
Not downloaded
· Council link
DESIGN AND ACCESS STATEMENT PART 3
Supporting Document(s)
Not downloaded
· Council link
DOCUMENT REGISTER
Supporting Document(s)
Not downloaded
· Council link
ECOLOGICAL IMPACT ASSESSMENT
Supporting Document(s)
Not downloaded
· Council link
ENERGY ASSESSMENT SUMMARY FOR INPUT DATA
Supporting Document(s)
Not downloaded
· Council link
ENERGY ASSESSMENT SUMMARY FOR INPUT DATA
Supporting Document(s)
Not downloaded
· Council link
ENERGY ASSESSMENT SUMMARY FOR INPUT DATA
Supporting Document(s)
Not downloaded
· Council link
ENERGY ASSESSMENT SUMMARY FOR INPUT DATA
Supporting Document(s)
Not downloaded
· Council link
ENERGY ASSESSMENT SUMMARY FOR INPUT DATA
Supporting Document(s)
Not downloaded
· Council link
ENERGY ASSESSMENT SUMMARY FOR INPUT DATA
Supporting Document(s)
Not downloaded
· Council link
ENERGY ASSESSMENT SUMMARY FOR INPUT DATA
Supporting Document(s)
Not downloaded
· Council link
ENERGY ASSESSMENT SUMMARY FOR INPUT DATA
Supporting Document(s)
Not downloaded
· Council link
ENERGY ASSESSMENT SUMMARY FOR INPUT DATA
Supporting Document(s)
Not downloaded
· Council link
ENERGY ASSESSMENT SUMMARY FOR INPUT DATA
Supporting Document(s)
Not downloaded
· Council link
ENERGY ASSESSMENT SUMMARY FOR INPUT DATA
Supporting Document(s)
Not downloaded
· Council link
ENERGY STRATEGY
Supporting Document(s)
Not downloaded
· Council link
EXISTING SITE SECTIONS SHEET 1
Drawing(s)
Not downloaded
· Council link
EXISTING SITE SECTIONS SHEET 2
Drawing(s)
Not downloaded
· Council link
EXISTING SITE SECTIONS SHEET 3
Drawing(s)
Not downloaded
· Council link
EXISTING SITE/BLOCK PLAN
Drawing(s)
Not downloaded
· Council link
EXTERNAL LIGHTING CALCULATION RESULTS
Drawing(s)
Not downloaded
· Council link
FLOOD RISK ASSESSMENT & DRAINAGE STRATEGY
Supporting Document(s)
Not downloaded
· Council link
LAND CONTAMINATION ASSESSMENT
Supporting Document(s)
Not downloaded
· Council link
LANDSCAPE AND VISUAL IMPACT ASSESSMENT
Supporting Document(s)
Not downloaded
· Council link
LOCATION PLAN
OS Extract
Not downloaded
· Council link
ONLINE COMMENT
Public Comment
Not downloaded
· Council link
OVERHEATING ASSESSMENT
Supporting Document(s)
Not downloaded
· Council link
PLANNING STATEMENT INCLUDING AFFORDABLE HOUSING STATEMENT
Supporting Document(s)
Not downloaded
· Council link
PROPOSED BLOCK PLAN
Drawing(s)
Not downloaded
· Council link
PROPOSED BLOCK PLAN - FIRST FLOOR LAYOUTS
Drawing(s)
Not downloaded
· Council link
PROPOSED BLOCK PLAN - GROUND FLOOR LAYOUTS
Drawing(s)
Not downloaded
· Council link
PROPOSED DETAILED GA PLAN 1 OF 2
Drawing(s)
Not downloaded
· Council link
PROPOSED DETAILED GA PLAN 1 OF 2
Drawing(s)
Not downloaded
· Council link
PROPOSED ELEVATIONS - UNITS 01-03
Drawing(s)
Not downloaded
· Council link
PROPOSED ELEVATIONS - UNITS 04-06
Drawing(s)
Not downloaded
· Council link
PROPOSED ELEVATIONS - UNITS 07-12 - SHEET 1
Drawing(s)
Not downloaded
· Council link
PROPOSED ELEVATIONS - UNITS 07-12 - SHEET 2
Drawing(s)
Not downloaded
· Council link
PROPOSED ELEVATIONS - UNITS 07-12 - SHEET 3
Drawing(s)
Not downloaded
· Council link
PROPOSED ELEVATIONS - UNITS 13-16
Drawing(s)
Not downloaded
· Council link
PROPOSED ELEVATIONS - UNITS 17-21 - SHEET 1
Drawing(s)
Not downloaded
· Council link
PROPOSED ELEVATIONS - UNITS 17-21 - SHEET 2
Drawing(s)
Not downloaded
· Council link
PROPOSED ELEVATIONS - UNITS 22-29 - SHEET 1
Drawing(s)
Not downloaded
· Council link
PROPOSED ELEVATIONS - UNITS 22-29 - SHEET 2
Drawing(s)
Not downloaded
· Council link
PROPOSED ELEVATIONS - UNITS 22-29 - SHEET 3
Drawing(s)
Not downloaded
· Council link
PROPOSED FLOOR PLANS - UNITS 01 - 03
Drawing(s)
Archived copy
· Council link
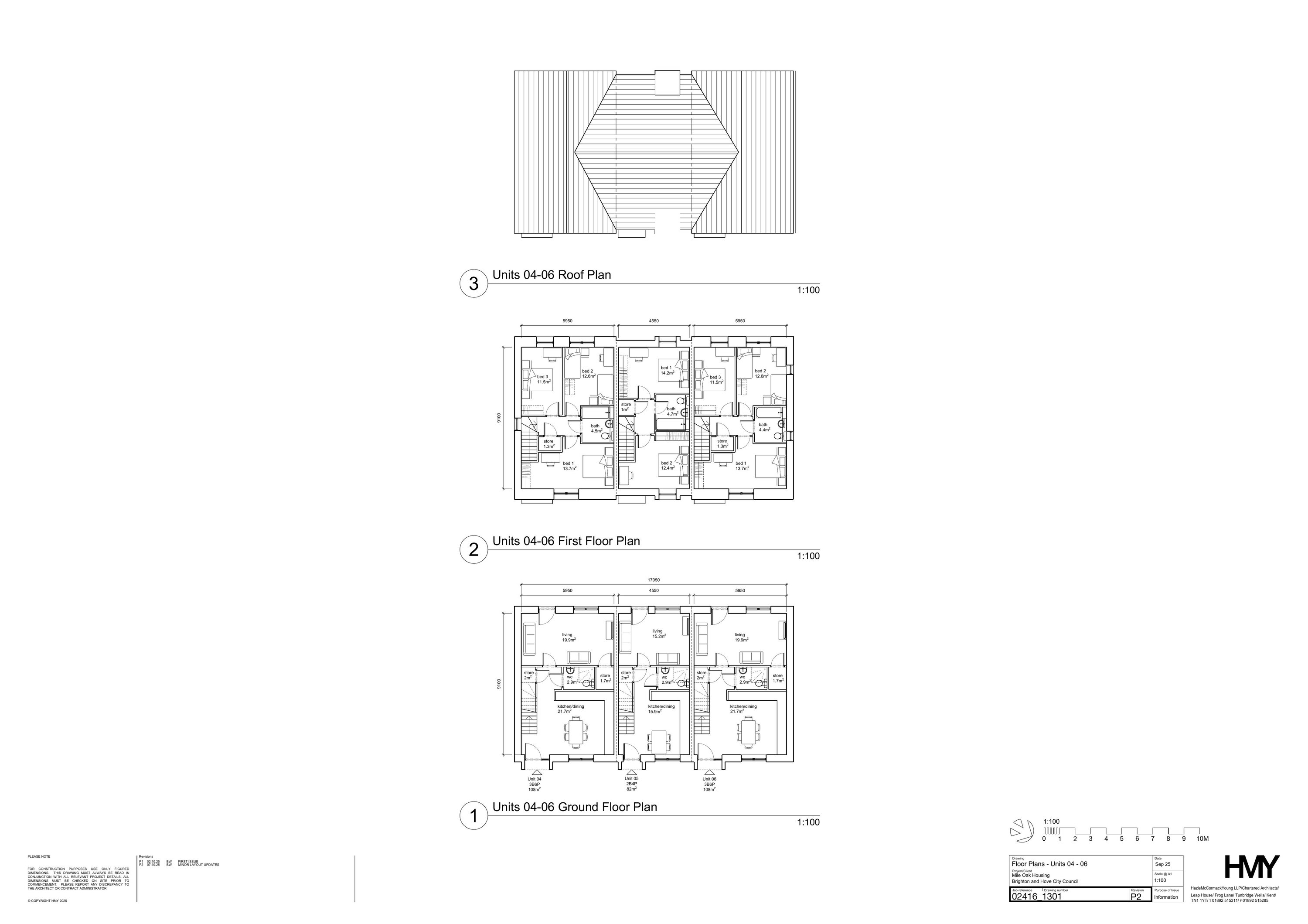
PROPOSED FLOOR PLANS - UNITS 04 - 06
Drawing(s)
Archived copy
· Council link
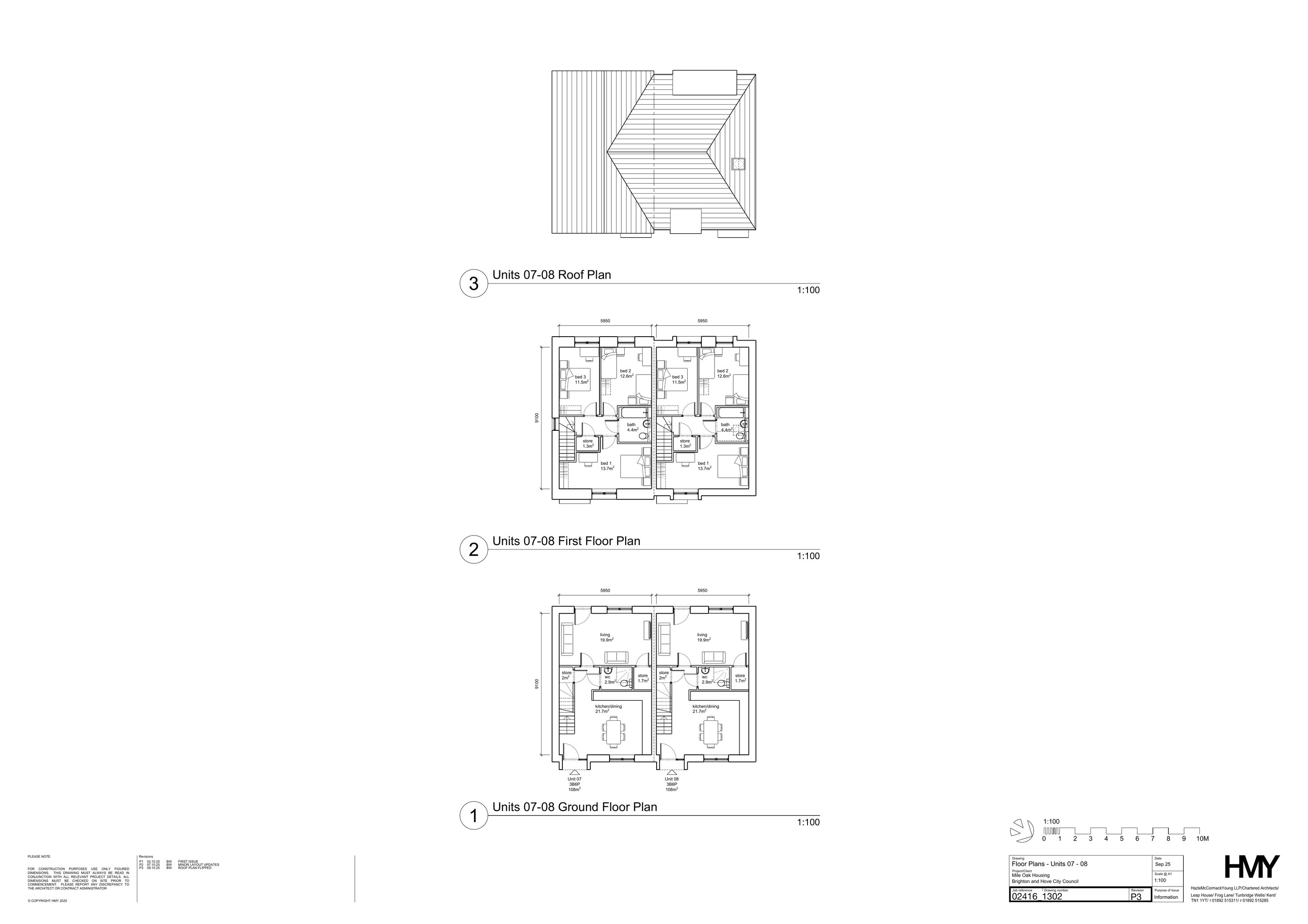
PROPOSED FLOOR PLANS - UNITS 07 - 08
Drawing(s)
Archived copy
· Council link
PROPOSED FLOOR PLANS - UNITS 09 - 10
Drawing(s)
Archived copy
· Council link
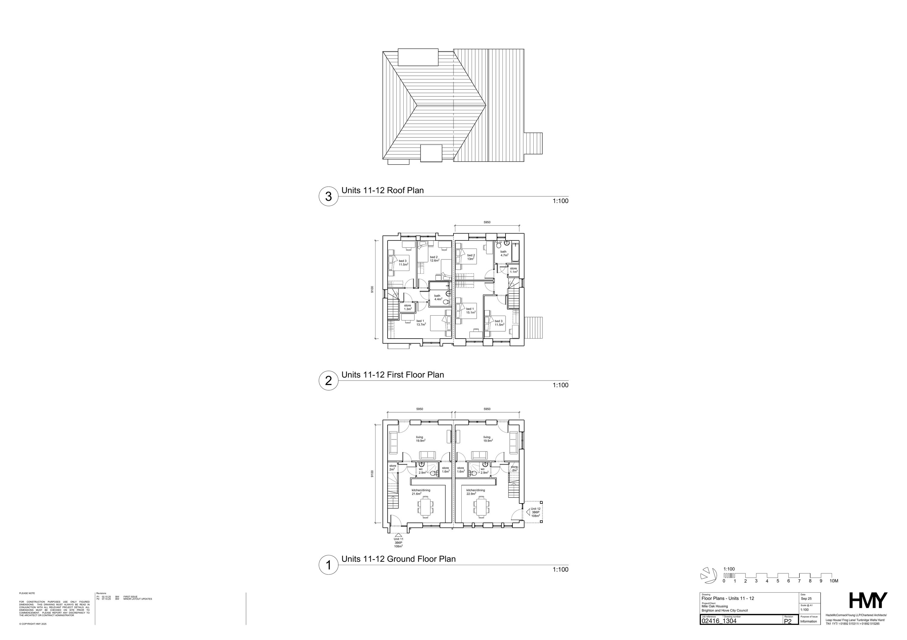
PROPOSED FLOOR PLANS - UNITS 11 - 12
Drawing(s)
Archived copy
· Council link
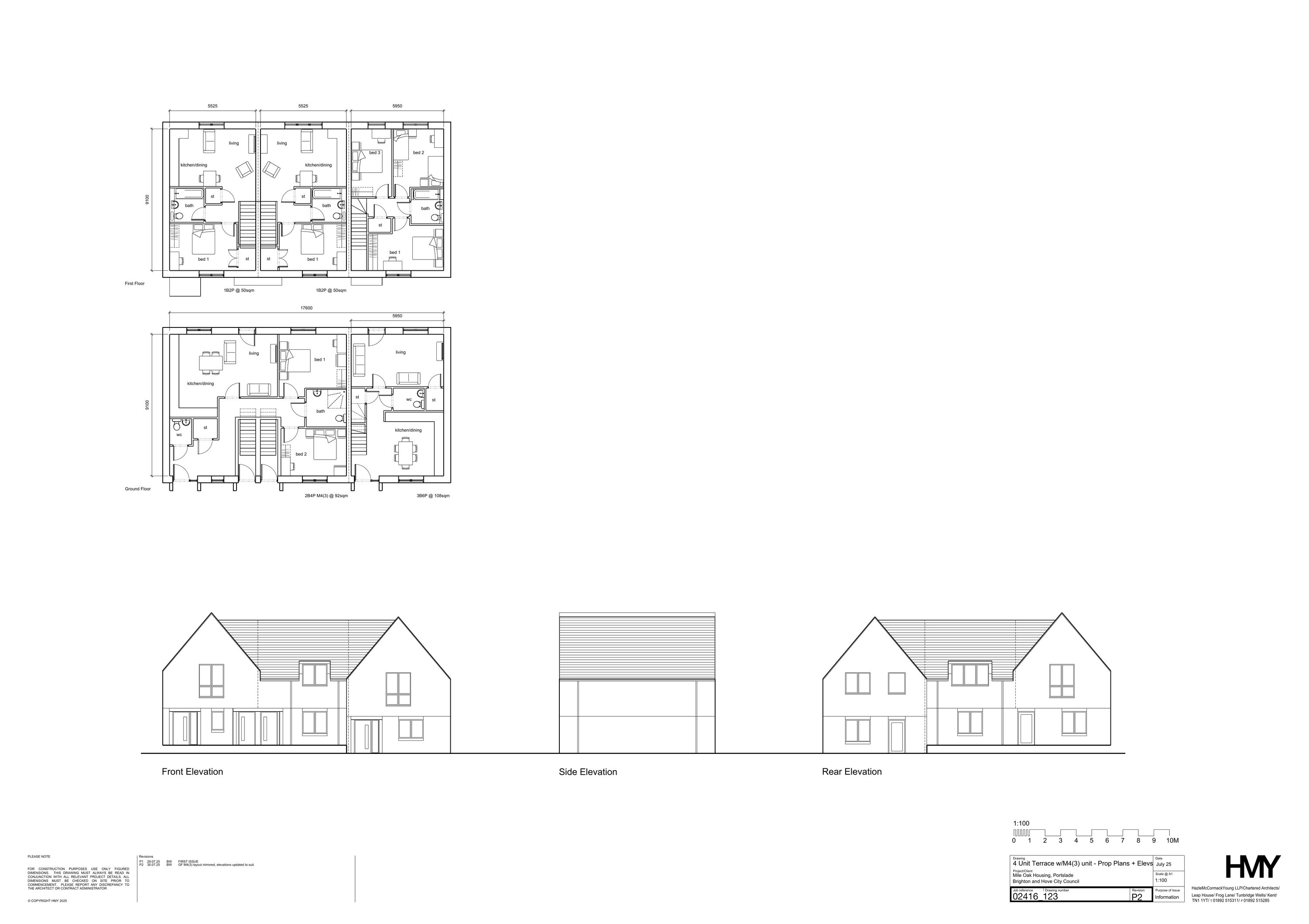
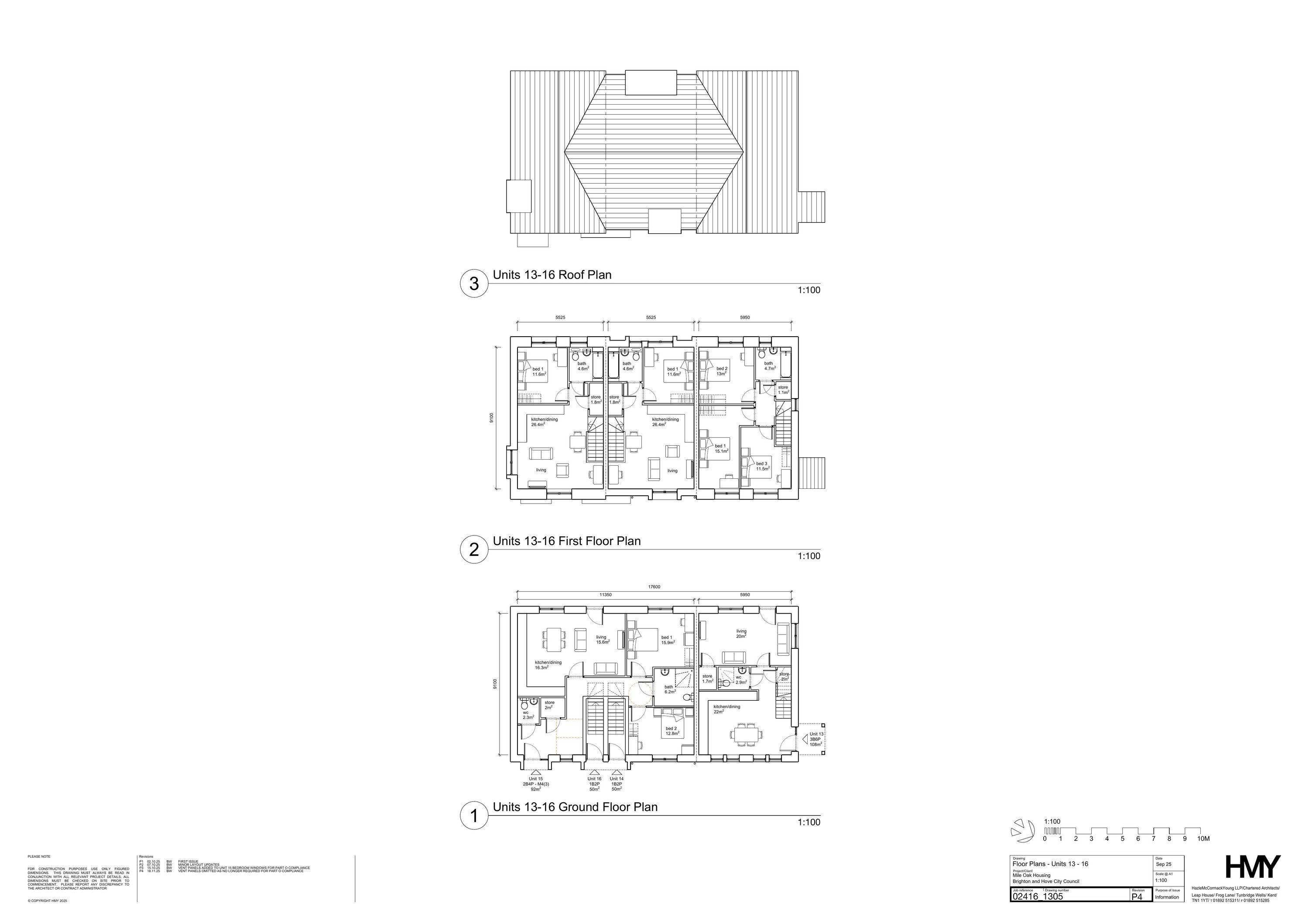
PROPOSED FLOOR PLANS - UNITS 13 - 16
Drawing(s)
Archived copy
· Council link
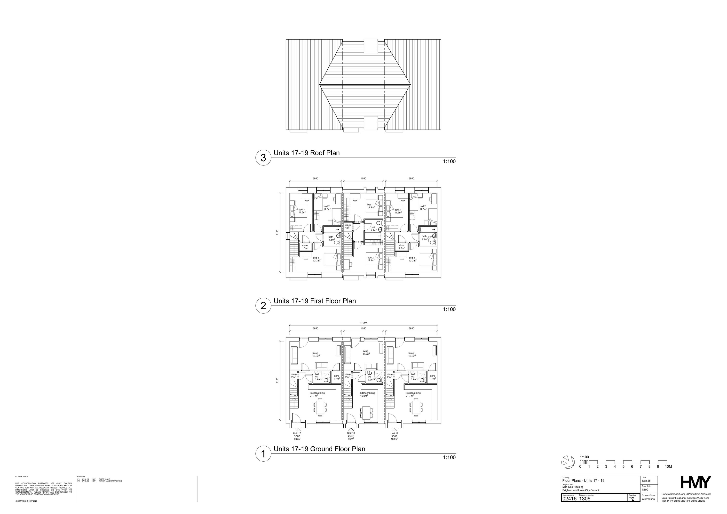
PROPOSED FLOOR PLANS - UNITS 17 - 19
Drawing(s)
Archived copy
· Council link
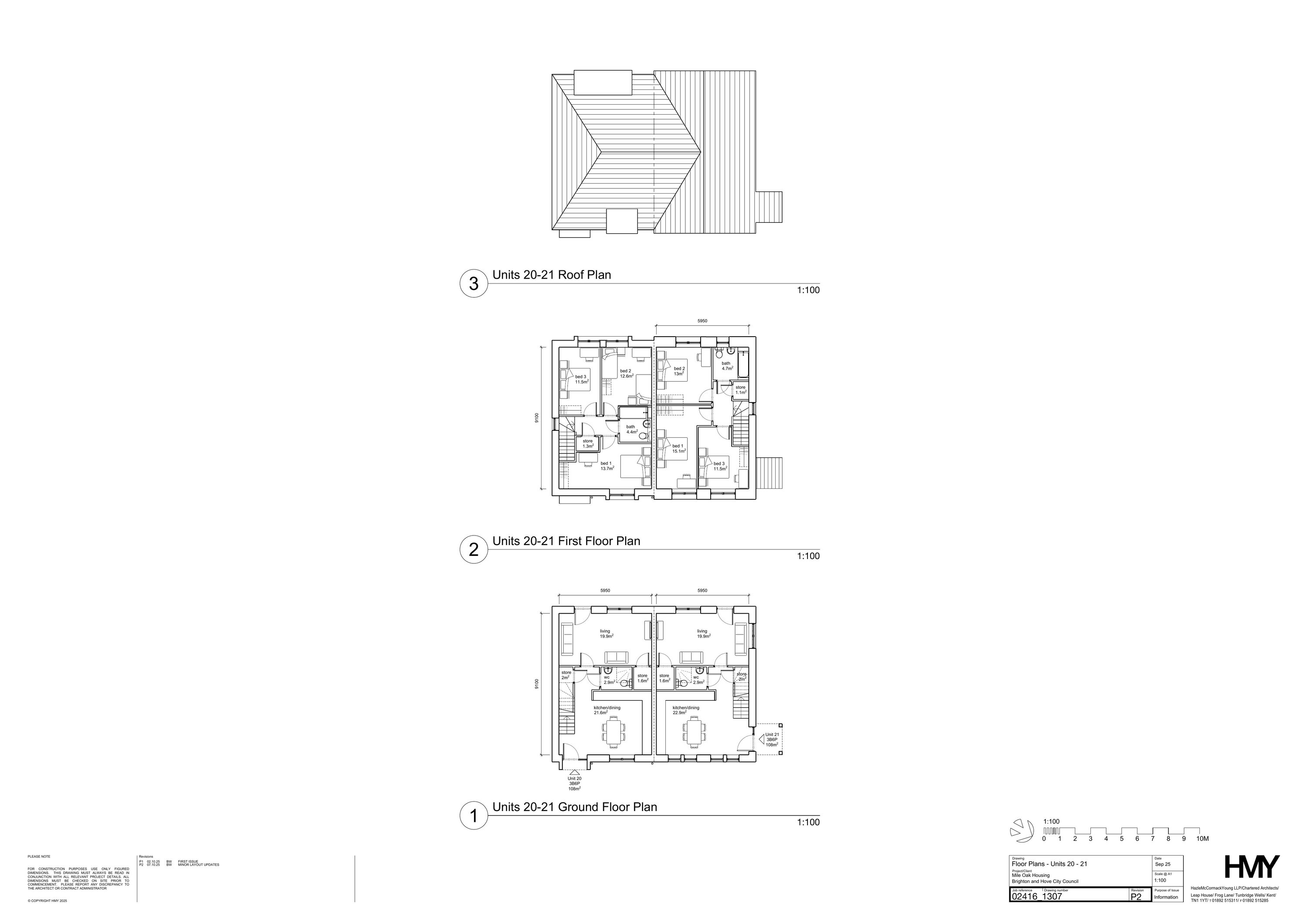
PROPOSED FLOOR PLANS - UNITS 20 - 21
Drawing(s)
Archived copy
· Council link
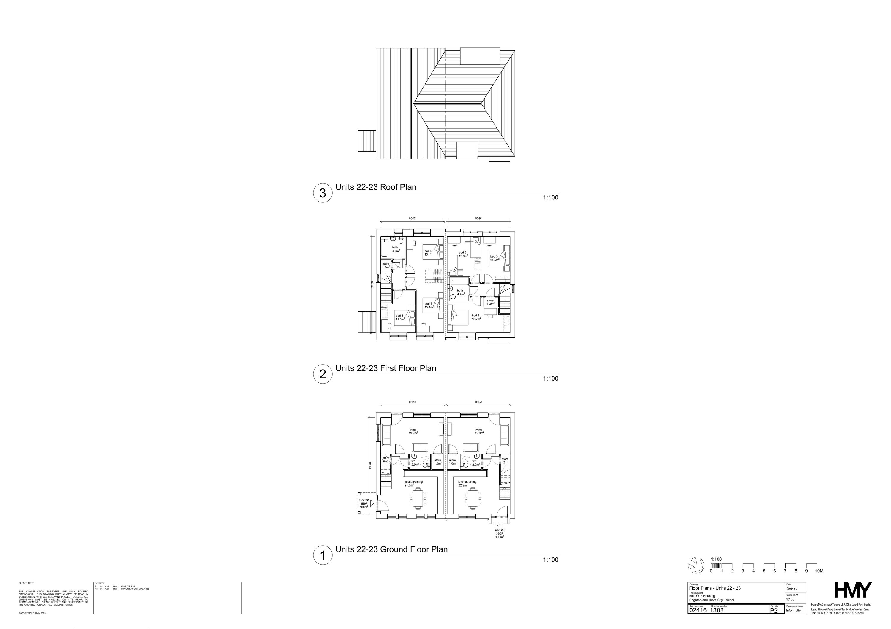
PROPOSED FLOOR PLANS - UNITS 22 - 23
Drawing(s)
Archived copy
· Council link
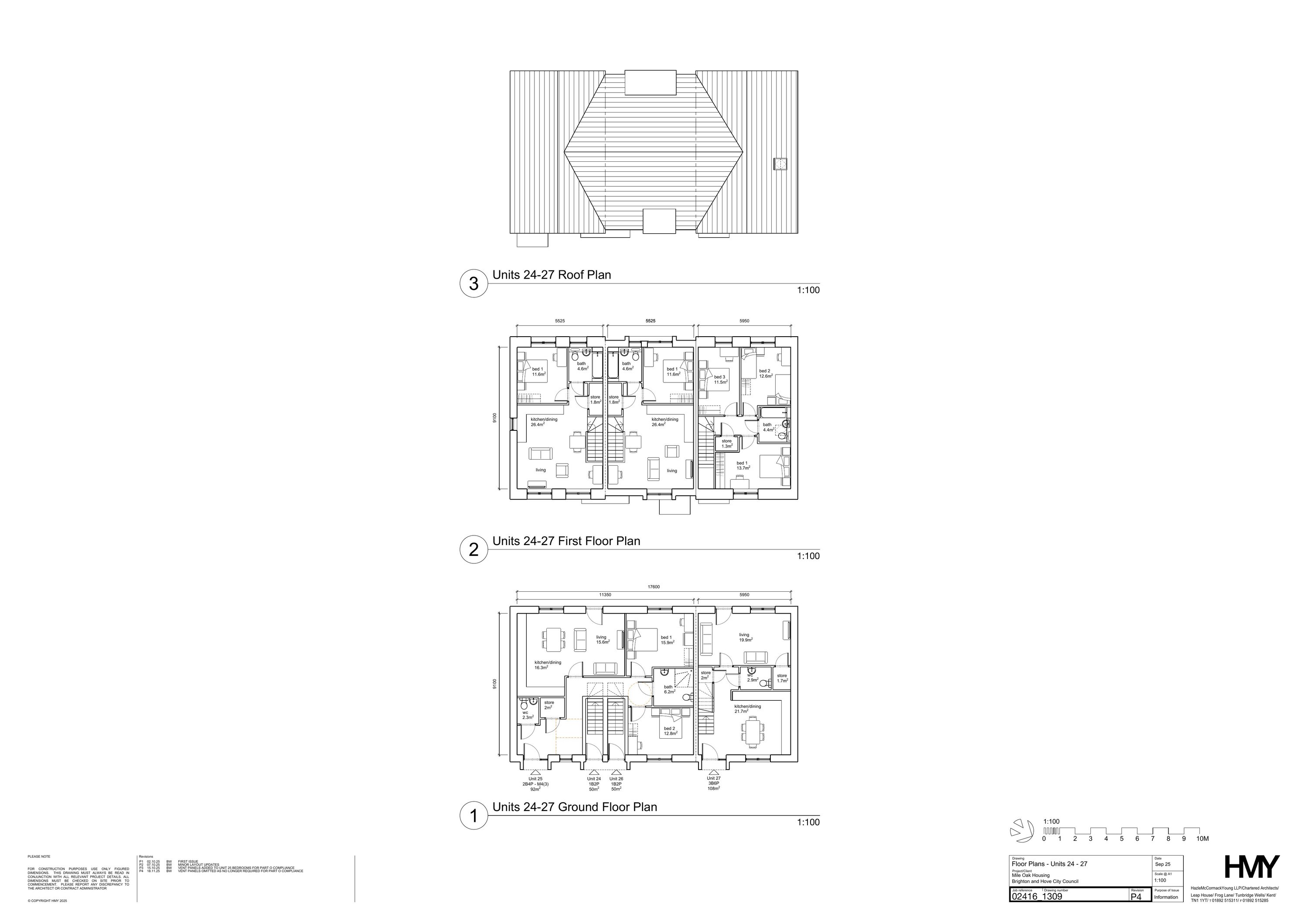
PROPOSED FLOOR PLANS - UNITS 24 - 27
Drawing(s)
Archived copy
· Council link
PROPOSED FLOOR PLANS - UNITS 28 - 29
Drawing(s)
Archived copy
· Council link
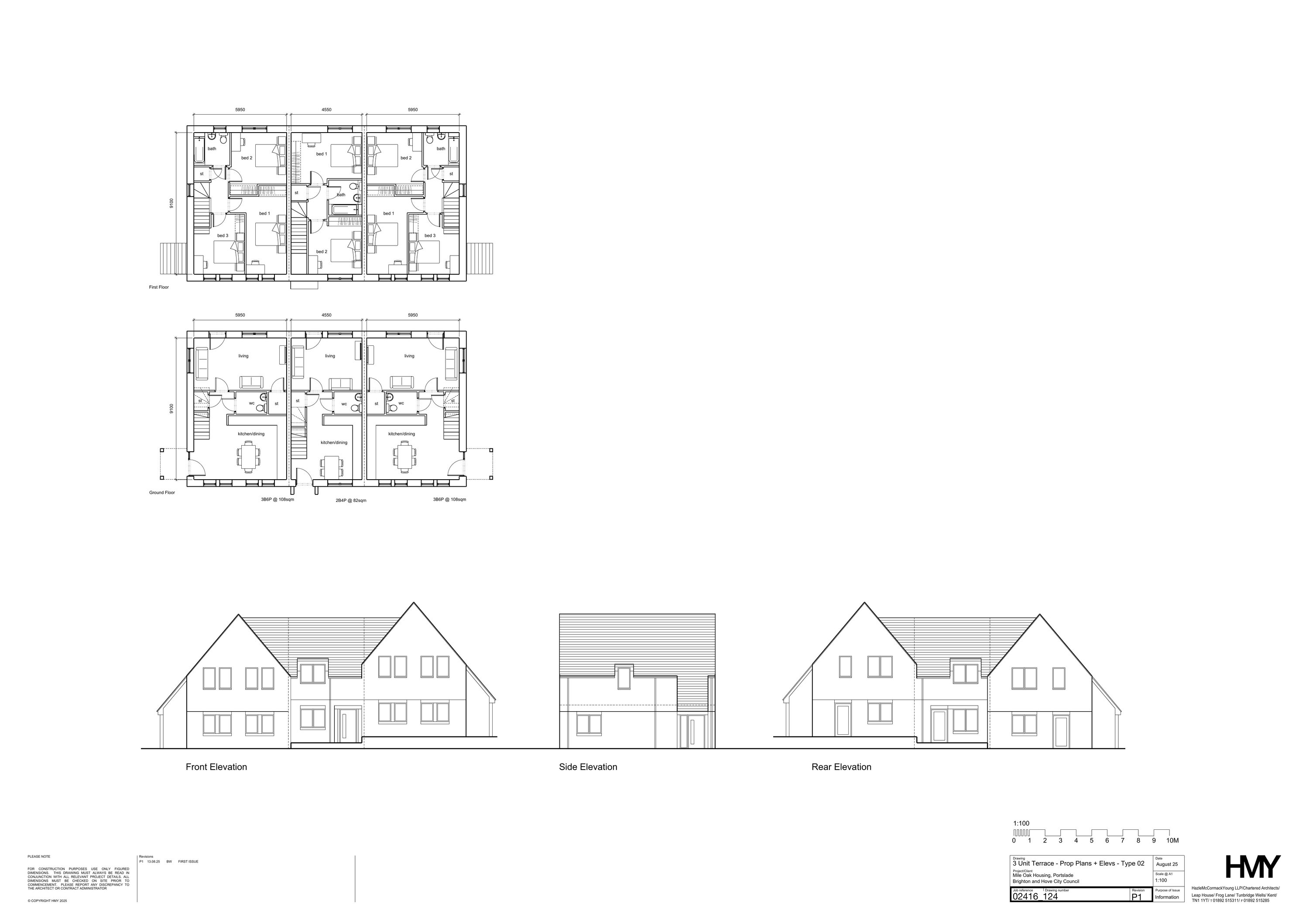
PROPOSED PLANS & ELEVATIONS-3 UNIT TERRACE
Drawing(s)
Not downloaded
· Council link
PROPOSED SITE PLAN - GROUND FLOOR LAYOUTS
Drawing(s)
Archived copy
· Council link
PROPOSED SITE SECTION - UNIT 09 VISUAL IMPACT
Drawing(s)
Not downloaded
· Council link
PROPOSED SITE SECTION SHEET 1
Drawing(s)
Not downloaded
· Council link
PROPOSED SITE SECTION SHEET 2
Drawing(s)
Not downloaded
· Council link
PROPOSED SITE SECTION SHEET 3
Drawing(s)
Not downloaded
· Council link
PROPOSED SITE/BLOCK PLAN
Drawing(s)
Not downloaded
· Council link
PROPOSED STREET SCENE ELEVATIONS - SHEET 1
Drawing(s)
Not downloaded
· Council link
PROPOSED STREET SCENE ELEVATIONS - SHEET 2
Drawing(s)
Not downloaded
· Council link
SCHEDULE OF ACCOMMODATION
Supporting Document(s)
Not downloaded
· Council link
SUSTAINABILITY CHECKLIST FOR PLANNING
Supporting Document(s)
Not downloaded
· Council link
TRANSPORT STATEMENT
Supporting Document(s)
Not downloaded
· Council link