← Bristol City Council

Status

Pending consideration New housing
Received
04 Oct 2023
New homes
1

Full proposal

New 2-storey 3 bedroom dwelling to replace existing garages on site.

Documents

APPLICATION FORM
Application Form
Not yet archived · Original link
CIL - FORM 1 QUESTION FORM/ADDITIONAL INFORMATION
CIL Documents
Not yet archived · Original link
CILL, PROPRIETARY INSULATED CLOSER
Supporting document
Not yet archived · Original link
CORNER (NORMAL)
Supporting document
Not yet archived · Original link
DESIGN STAGE REPORT
Supporting document
Not yet archived · Original link
DESIGN, ACCESS AND HERITAGE STATEMENT
Design & Access Statement
Not yet archived · Original link
EAVES (INSULATION AT RAFTER LEVEL)
Supporting document
Not yet archived · Original link
ENERGY & SUSTAINABILITY STATEMENT
Superseded document
Not yet archived · Original link
ENERGY & SUSTAINABILITY STATEMENT
Supporting document
Not yet archived · Original link
EXISTING PLANS
Plan
Not yet archived · Original link
EXPOSED FLOOR (NORMAL)
Supporting document
Not yet archived · Original link
GABLE (INSULATION AT RAFTER LEVEL)
Supporting document
Not yet archived · Original link
INDEPENDENT CONCRETE LINTELS
Supporting document
Not yet archived · Original link
LOCATION PLAN
Plan
Not yet archived · Original link
MR JOHN STEVENS
Consultee Comment
Not yet archived · Original link
NATURE CONSERVATION
Consultee Comment
Not yet archived · Original link
NEIGHBOURS ISSUED 11TH SEPTEMBER 2024
Neighbour Notification List
Not yet archived · Original link
NEUTRAL
Public Comment
Not yet archived · Original link
OBJECTS
Public Comment
Not yet archived · Original link
OBJECTS
Public Comment
Not yet archived · Original link
OBJECTS
Public Comment
Not yet archived · Original link
OBJECTS
Public Comment
Not yet archived · Original link
OBJECTS
Public Comment
Not yet archived · Original link
OBJECTS
Public Comment
Not yet archived · Original link
OBJECTS
Public Comment
Not yet archived · Original link
OVERHEATING REPORT
Supporting document
Not yet archived · Original link
PHOTOGRAPHIC EVIDENCE
Supporting document
Not yet archived · Original link
PROPOSED DETAILS & OUTLINE SPECIFICATION
Plan
Not yet archived · Original link
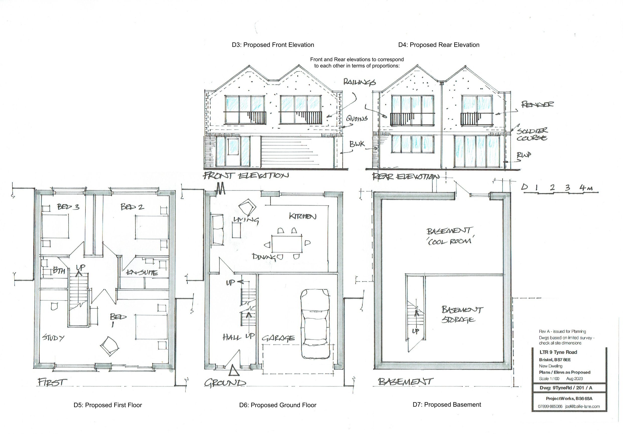
PROPOSED ROOF PLAN
Plan
Not yet archived · Original link
PROPOSED SECTIONS
Plan
Not yet archived · Original link
PROPOSED SIDE ELEVATIONS
Plan
Not yet archived · Original link
PROPOSED STREET SCENE
Plan
Not yet archived · Original link
Public Comment
Public Comment
Not yet archived · Original link
SAP CALCULATION DESIGN STAGE SUMMARY
Superseded document
Not yet archived · Original link
SAP CALCULATIONS
Supporting document
Not yet archived · Original link
SITE SECTIONS AND EXISTING ELEVATIONS
Plan
Not yet archived · Original link
THE PUBLIC PROTECTION TEAM (LAND CONTAMINATION)
Consultee Comment
Not yet archived · Original link
WATER EFFICIENCY REPORT
Supporting document
Not yet archived · Original link
WINDOW JAMB
Supporting document
Not yet archived · Original link

Have your say

Your comment matters. Councils must consider every representation that raises material planning considerations.

Write a comment