← Back to Bristol City Council
Application
25/10289/P
Bristol City Council · IDOX
Status
Pending consideration
New housing
Received
21 Jan 2025
New dwellings
30
What you can do
Take Action
Make your voice heard. Authorities need to hear from people who support new homes.
Summary
Demolish structures to erect part three/four-storey building with 30 flats and 116sqm retail unit.
Full Proposal
Application for Outline Planning Permission with some matters reserved for the demolition of all structures and the erection of part three, part four-storey building comprising 30no. self-contained flats, a 116sqm retail unit, and associated soft and hard landscaping. Approval sought for Access, Appearance, Layout and Scale with all other matters reserved.
Detail pages
- View live detail on council site
- No archived detail page available.
Documents
AFFORDABLE HOUSING STATEMENT
Supporting document
Not downloaded
· Council link
APPLICATION FORM
Application Form
Not downloaded
· Council link
ARBORICULTURAL REPORT
Supporting document
Not downloaded
· Council link
AVON FIRE AND RESCUE
Comment Received
Not downloaded
· Council link
BNG EXEMPTION FORM
Supporting document
Not downloaded
· Council link
BNG TOOL
Supporting document
Not downloaded
· Council link
BROADBAND CONNECTIVITY STATEMENT
Supporting document
Not downloaded
· Council link
BUILDING BRISTOL EMPLOYMENT AND SKILLS BRISTOL CITY COUNCIL
Consultee Comment
Not downloaded
· Council link
CIL FORM
CIL Documents
Not downloaded
· Council link
CRIME REDUCTION UNIT
Comment Received
Not downloaded
· Council link
DESIGN AND ACCESS STATEMENT
Design & Access Statement
Not downloaded
· Council link
DESK STUDY REPORT
Supporting document
Not downloaded
· Council link
ECONOMIC STATEMENT
Supporting document
Not downloaded
· Council link
EMPLOYEMENT AND SKILLS STATEMENT
Supporting document
Not downloaded
· Council link
EXISTING BLOCK PLAN
Plan
Not downloaded
· Council link
EXISTING NORTH EAST AND SOUTH WEST ELEVATIONS
Plan
Not downloaded
· Council link
EXISTING SITE AND GROUND FLOOR PLAN
Plan
Not downloaded
· Council link
EXISTING SOUTH EAST AND NORTH WEST ELEVATIONS
Plan
Not downloaded
· Council link
HOUSING STRATEGY AND ENABLING TEAM
Consultee Comment
Not downloaded
· Council link
LOCATION PLAN
Plan
Not downloaded
· Council link
MISS ABI SELMAN (FLOOD RISK ASSESSMENT)
Consultee Comment
Not downloaded
· Council link
MR MARK CURTIS - POLLUTION CONTROL
Consultee Comment
Not downloaded
· Council link
NEIGHBOUR NOTIFICATION LIST ISSUED 19.02.2025
Neighbour Notification List
Not downloaded
· Council link
NEUTRAL
Public Comment
Not downloaded
· Council link
OBJECTS
Public Comment
Not downloaded
· Council link
OBJECTS
Public Comment
Not downloaded
· Council link
OBJECTS
Public Comment
Not downloaded
· Council link
OBJECTS
Public Comment
Not downloaded
· Council link
OBJECTS
Public Comment
Not downloaded
· Council link
OBJECTS
Public Comment
Not downloaded
· Council link
OBJECTS
Public Comment
Not downloaded
· Council link
OBJECTS
Public Comment
Not downloaded
· Council link
OBJECTS
Public Comment
Not downloaded
· Council link
OBJECTS
Public Comment
Not downloaded
· Council link
OBJECTS
Public Comment
Not downloaded
· Council link
OBJECTS
Public Comment
Not downloaded
· Council link
OBJECTS
Public Comment
Not downloaded
· Council link
OBJECTS
Public Comment
Not downloaded
· Council link
OBJECTS
Public Comment
Not downloaded
· Council link
OBJECTS
Public Comment
Not downloaded
· Council link
OBJECTS
Public Comment
Not downloaded
· Council link
OBJECTS
Public Comment
Not downloaded
· Council link
OBJECTS
Public Comment
Not downloaded
· Council link
OBJECTS
Public Comment
Not downloaded
· Council link
OBJECTS
Public Comment
Not downloaded
· Council link
OBJECTS
Public Comment
Not downloaded
· Council link
OBJECTS
Public Comment
Not downloaded
· Council link
OBJECTS
Public Comment
Not downloaded
· Council link
OBJECTS
Public Comment
Not downloaded
· Council link
OBJECTS
Public Comment
Not downloaded
· Council link
OBJECTS
Public Comment
Not downloaded
· Council link
OBJECTS
Public Comment
Not downloaded
· Council link
OBJECTS
Public Comment
Not downloaded
· Council link
OBJECTS
Public Comment
Not downloaded
· Council link
OBJECTS
Public Comment
Not downloaded
· Council link
OBJECTS
Public Comment
Not downloaded
· Council link
OBJECTS
Public Comment
Not downloaded
· Council link
OBJECTS
Public Comment
Not downloaded
· Council link
OBJECTS
Public Comment
Not downloaded
· Council link
OBJECTS
Public Comment
Not downloaded
· Council link
OBJECTS
Public Comment
Not downloaded
· Council link
OBJECTS
Public Comment
Not downloaded
· Council link
OBJECTS
Public Comment
Not downloaded
· Council link
OBJECTS
Public Comment
Not downloaded
· Council link
OBJECTS
Public Comment
Not downloaded
· Council link
OBJECTS
Public Comment
Not downloaded
· Council link
OBJECTS
Public Comment
Not downloaded
· Council link
OBJECTS
Public Comment
Not downloaded
· Council link
OBJECTS
Public Comment
Not downloaded
· Council link
OBJECTS
Public Comment
Not downloaded
· Council link
OBJECTS
Public Comment
Not downloaded
· Council link
OBJECTS
Public Comment
Not downloaded
· Council link
OBJECTS
Public Comment
Not downloaded
· Council link
OBJECTS
Public Comment
Not downloaded
· Council link
OBJECTS
Public Comment
Not downloaded
· Council link
OBJECTS
Public Comment
Not downloaded
· Council link
OBJECTS
Public Comment
Not downloaded
· Council link
OBJECTS
Public Comment
Not downloaded
· Council link
OBJECTS
Public Comment
Not downloaded
· Council link
OBJECTS
Public Comment
Not downloaded
· Council link
OBJECTS
Public Comment
Not downloaded
· Council link
OBJECTS
Public Comment
Not downloaded
· Council link
OBJECTS
Public Comment
Not downloaded
· Council link
OBJECTS
Public Comment
Not downloaded
· Council link
OBJECTS
Public Comment
Not downloaded
· Council link
OBJECTS
Public Comment
Not downloaded
· Council link
OBJECTS
Public Comment
Not downloaded
· Council link
OBJECTS
Public Comment
Not downloaded
· Council link
OBJECTS
Public Comment
Not downloaded
· Council link
OBJECTS
Public Comment
Not downloaded
· Council link
OBJECTS
Public Comment
Not downloaded
· Council link
OBJECTS
Public Comment
Not downloaded
· Council link
OBJECTS
Public Comment
Not downloaded
· Council link
OBJECTS
Public Comment
Not downloaded
· Council link
OBJECTS
Public Comment
Not downloaded
· Council link
OBJECTS
Public Comment
Not downloaded
· Council link
OPEN SPACE ASSESSMENT
Supporting document
Not downloaded
· Council link
PLANNING OBLIGATIONS
Supporting document
Not downloaded
· Council link
PLANNING STATEMENT
Supporting document
Not downloaded
· Council link
POST-DEVELOPMENT HABITAT PLAN
Supporting document
Not downloaded
· Council link
PRE-DEVELOPMENT HABITAT PLAN
Supporting document
Not downloaded
· Council link
PROPOSED BIN AND BIKE STORE
Plan
Not downloaded
· Council link
PROPOSED BLOCK PLAN
Plan
Not downloaded
· Council link
PROPOSED FIRST AND SECOND FLOOR PLANS
Plan
Not downloaded
· Council link
PROPOSED GROUND FLOOR PLAN
Plan
Not downloaded
· Council link
PROPOSED NORTH EAST AND SOUTH WEST ELEVATIONS
Plan
Not downloaded
· Council link
PROPOSED SOUTH EAST AND NORTH WEST ELEVATIONS
Plan
Not downloaded
· Council link
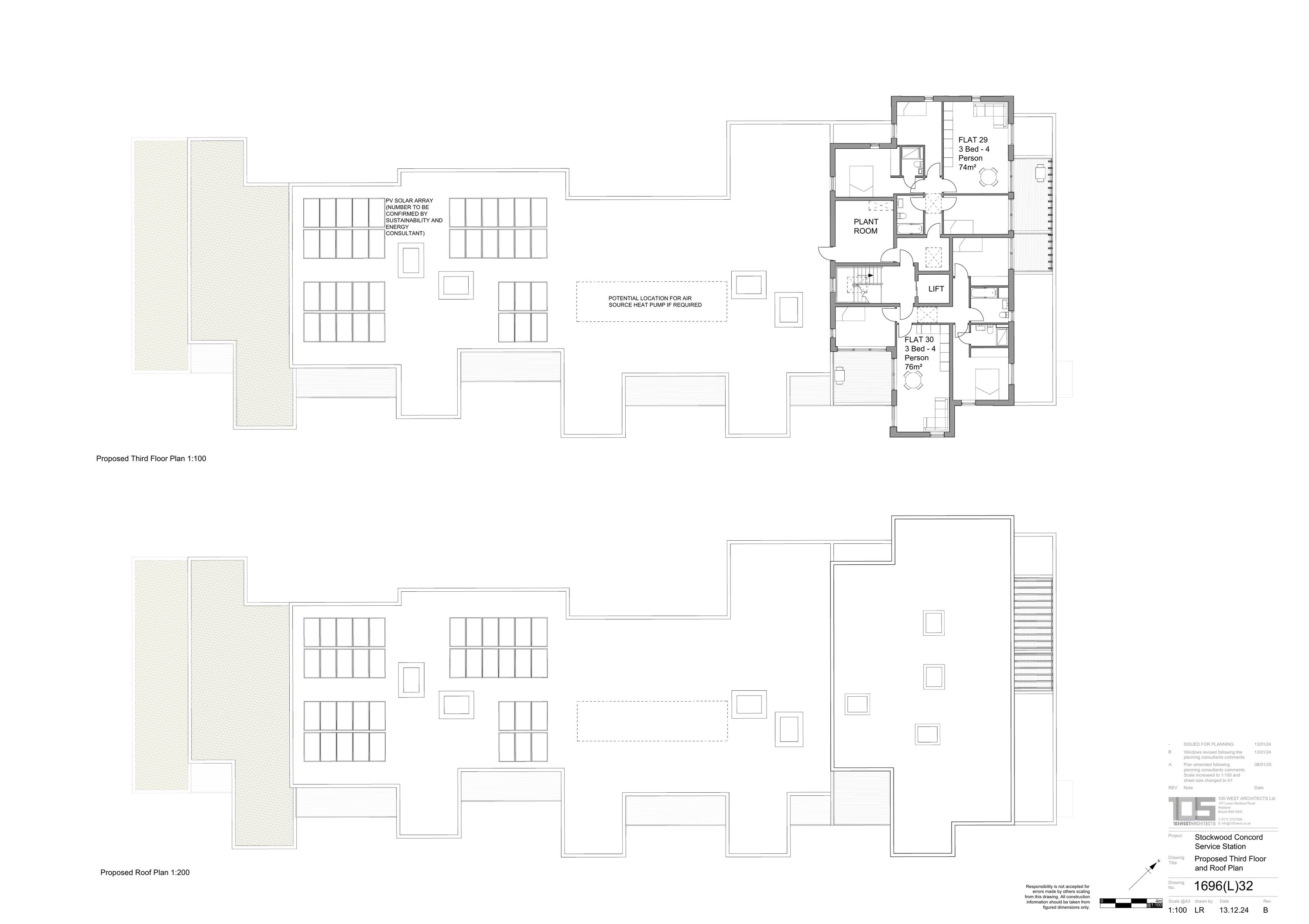
PROPOSED THIRD FLOOR AND ROOF PLAN
Plan
Not downloaded
· Council link
STATEMENT OF COMMUNITY INVOLVEMENT
Supporting document
Not downloaded
· Council link
SUPPORTS
Public Comment
Not downloaded
· Council link
SUPPORTS
Public Comment
Not downloaded
· Council link
SUPPORTS
Public Comment
Not downloaded
· Council link
SUPPORTS
Public Comment
Not downloaded
· Council link
SUPPORTS
Public Comment
Not downloaded
· Council link
SUSTAINABILITY ENERGY STATEMENT
Supporting document
Not downloaded
· Council link
THE BRISTOL WASTE COMPANY
Consultee Comment
Not downloaded
· Council link
THE PUBLIC PROTECTION TEAM (LAND CONTAMINATION)
Consultee Comment
Not downloaded
· Council link
TRANSPORTATION STATION
Supporting document
Not downloaded
· Council link
TRAVEL PLAN
Supporting document
Not downloaded
· Council link