← Back to Bristol City Council

Status

Pending consideration Change of use
Received 23 Apr 2025
New dwellings 1

What you can do

Take Action

Make your voice heard. Authorities need to hear from people who support new homes.

Summary

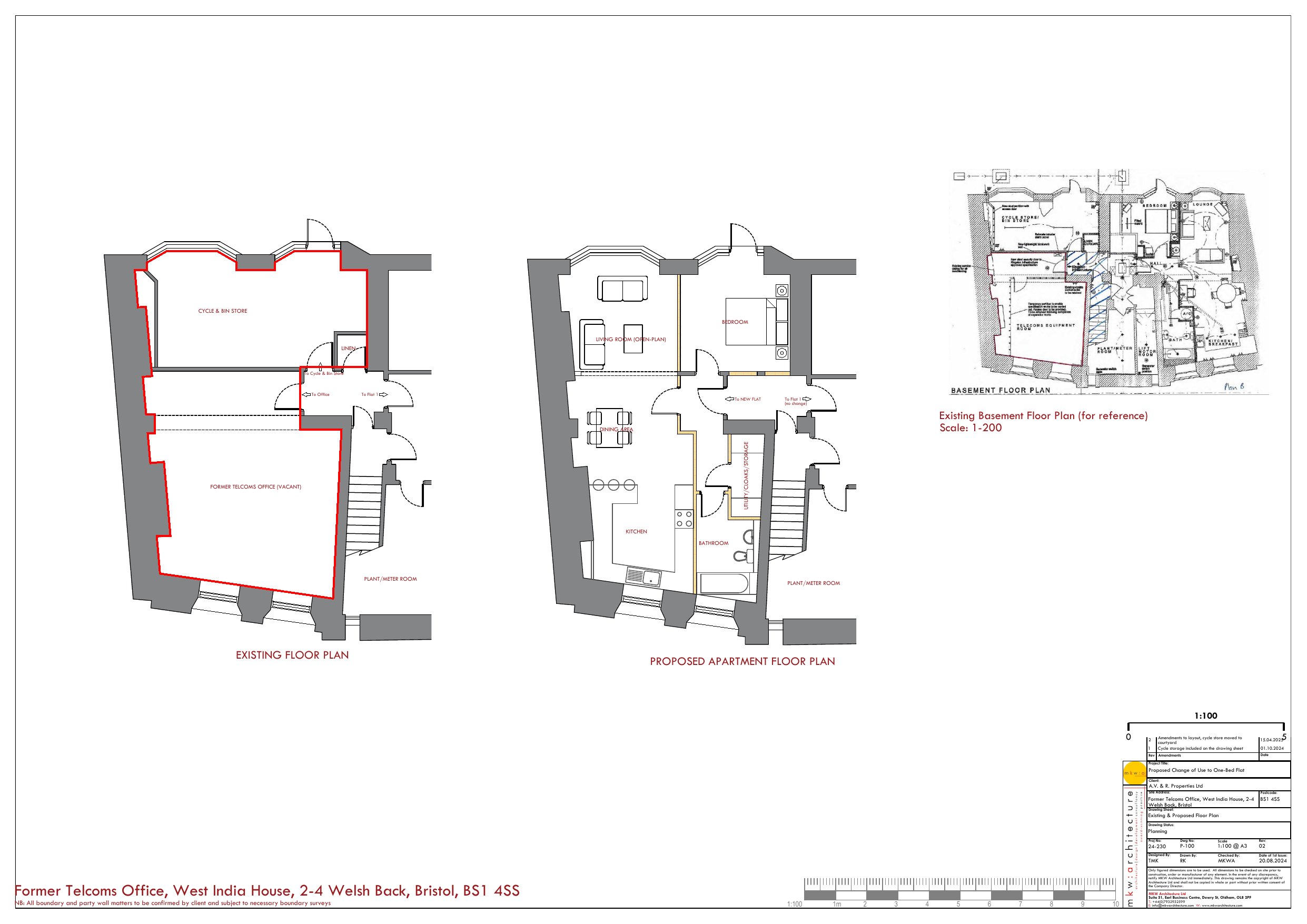
Change of use of former telecom offices to create one-bedroom flat.

Full Proposal

Change of use of former telecom offices in the part-lower ground floor to create a one-bed flat.

Detail pages

Documents

ANNOTATED AND REFERENCED PHOTOGRAPHS
Plan
Not downloaded · Council link
APPLICATION FORM
Application Form
Not downloaded · Council link
CIL - FORM 1 QUESTION FORM/ADDITIONAL INFORMATION
CIL Documents
Not downloaded · Council link
DESIGN, ACCESS AND HERITAGE STATEMENT
Design & Access Statement
Not downloaded · Council link
ENERGY AND SUSTAINABILITY STATEMENT
Supporting document
Not downloaded · Council link
EXISTING AND PROPOSED FLOOR PLAN
Plan
Not downloaded · Council link
LOCATION PLAN
Plan
Not downloaded · Council link
NEIGHBOURS ISSUED 4TH JUNE 2025
Neighbour Notification List
Not downloaded · Council link
PROPOSED BLOCK PLAN
Plan
Not downloaded · Council link
THE CITY DESIGN GROUP - CONSERVATION SECTION
Consultee Comment
Not downloaded · Council link