← Bristol City Council

Status

Pending consideration Change of use
Received
16 Dec 2025
New homes
1

Full proposal

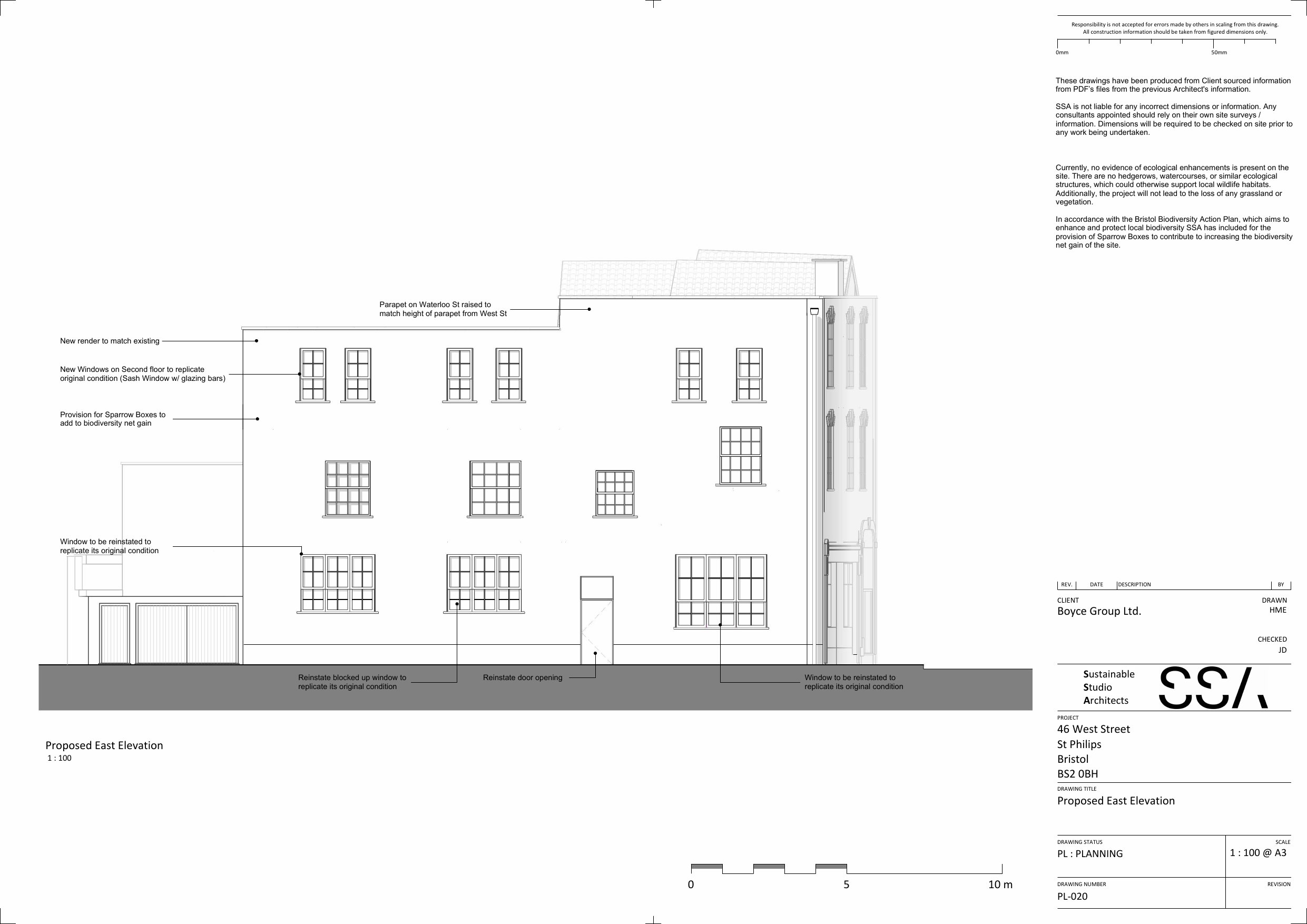
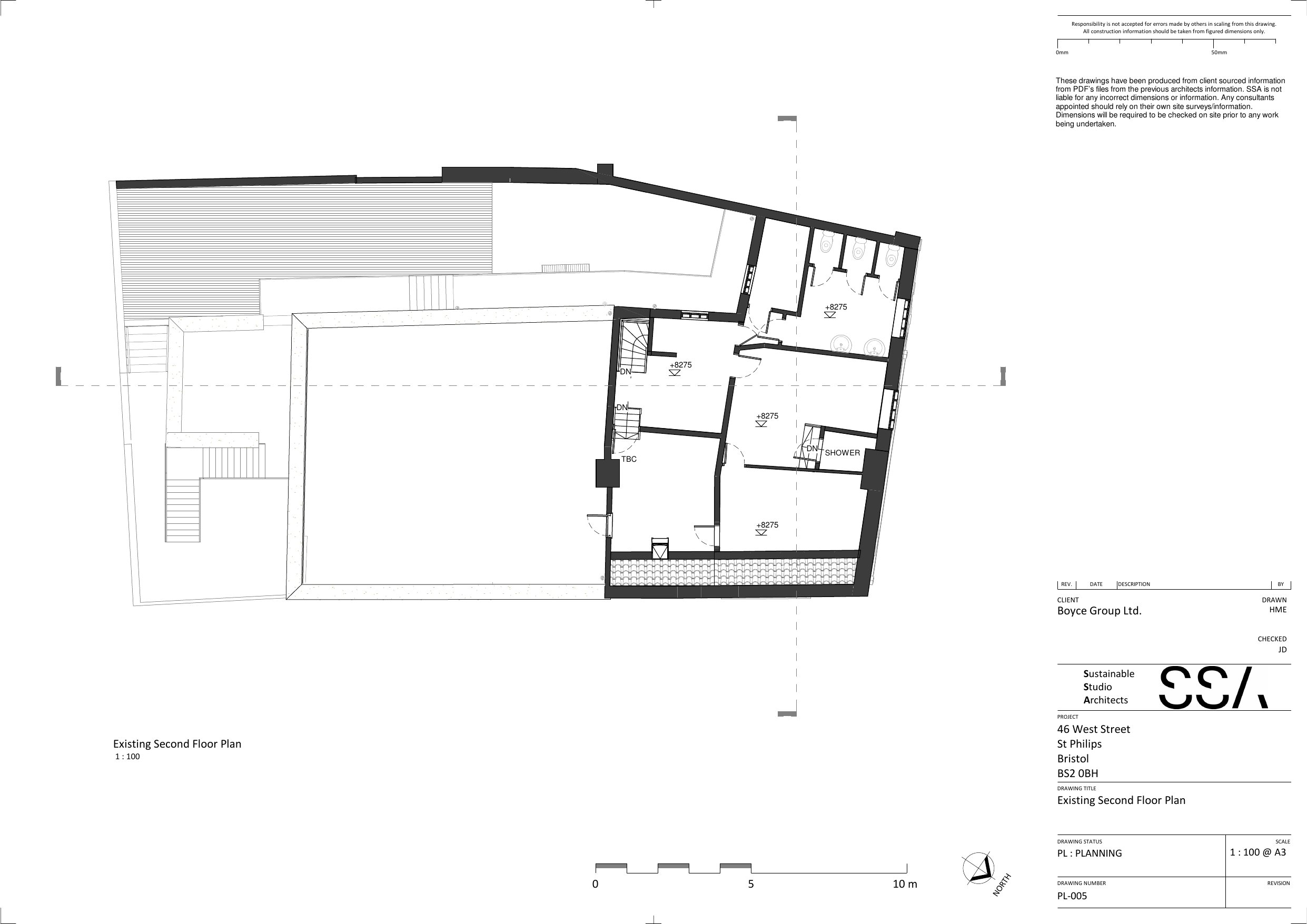
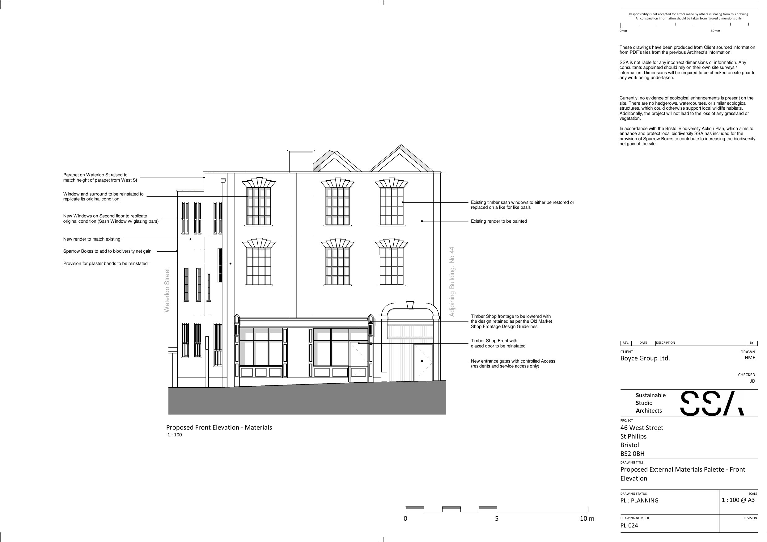
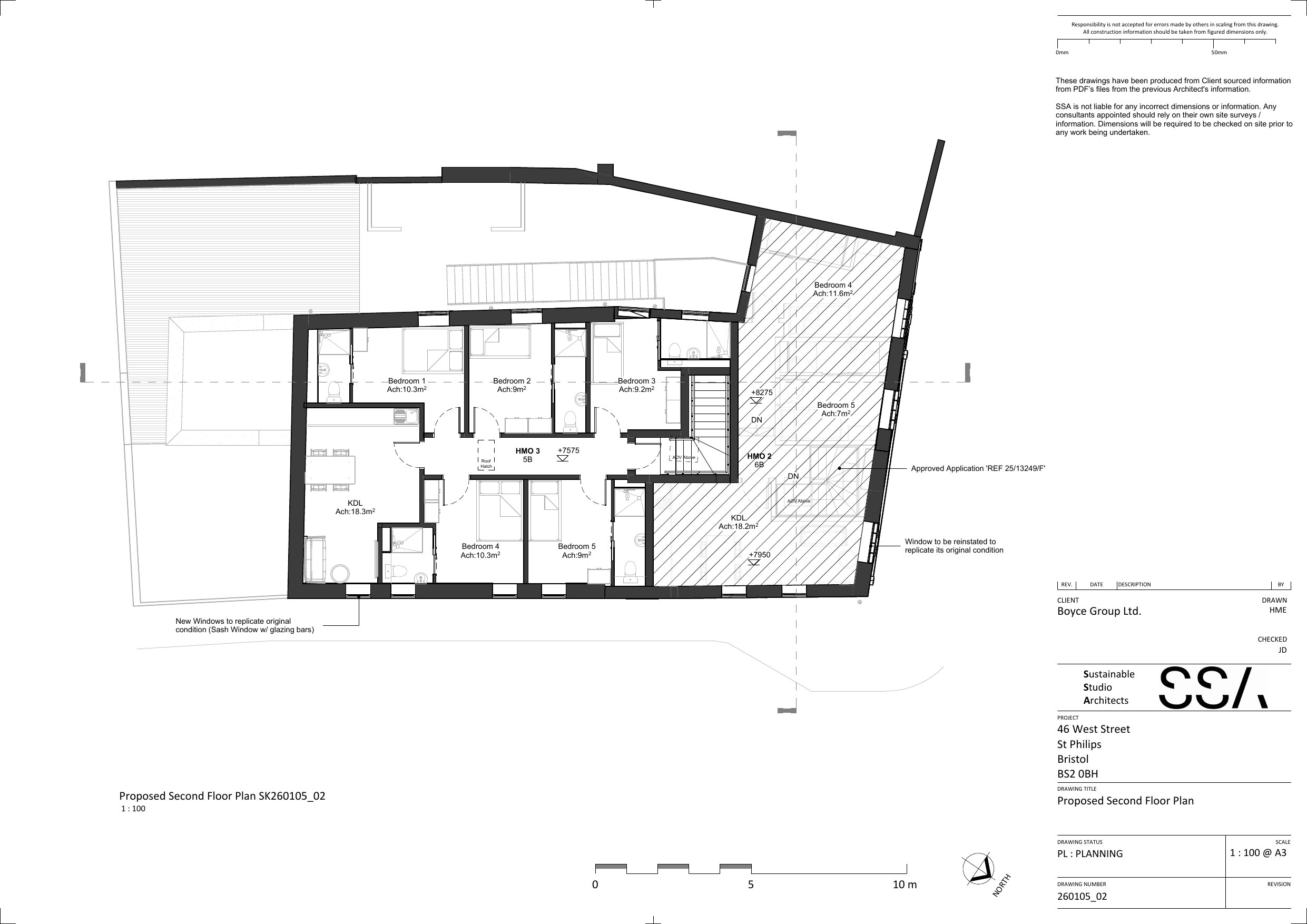
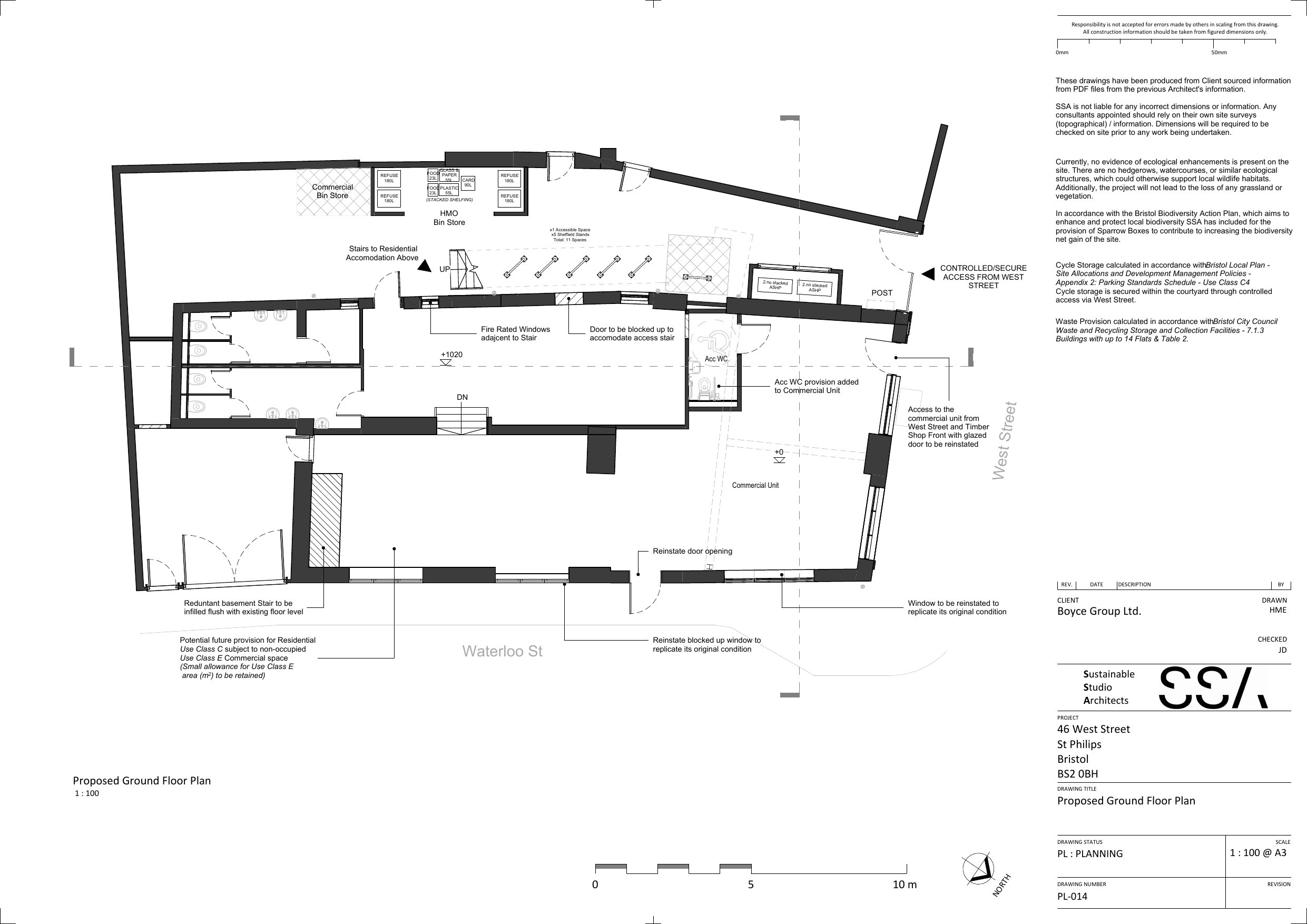
Change of use of the Ground Floor area from use Class Sui Generis to Commercial Space (Use Class E). Reinstating the Timber Shop front, in addition to a proposed an extension to the Second Floor and change of use of upper floors to 1 No. HMOs (Use Class C4).

Documents

Design & Access Statement
Archived · Original link
Superseded Plan
Archived · Original link
Revised plan
Archived · Original link
Superseded Plan
Archived · Original link
Revised plan
Archived · Original link
Superseded Plan
Archived · Original link

Have your say

Your comment matters. Councils must consider every representation that raises material planning considerations.

Write a comment