← Bristol City Council

Status

Pending consideration Change of use
Received
02 Jan 2026
New homes
8

Full proposal

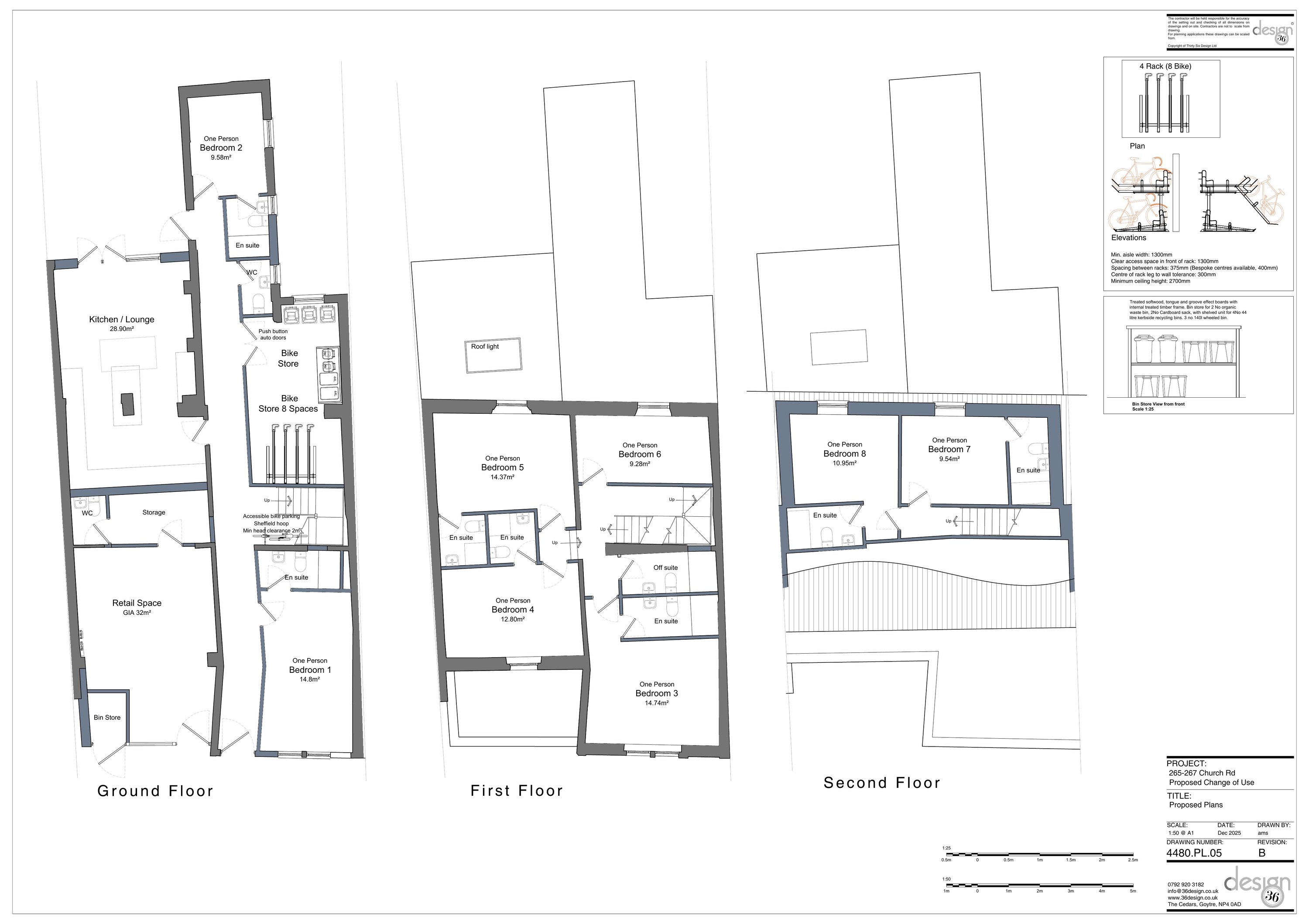
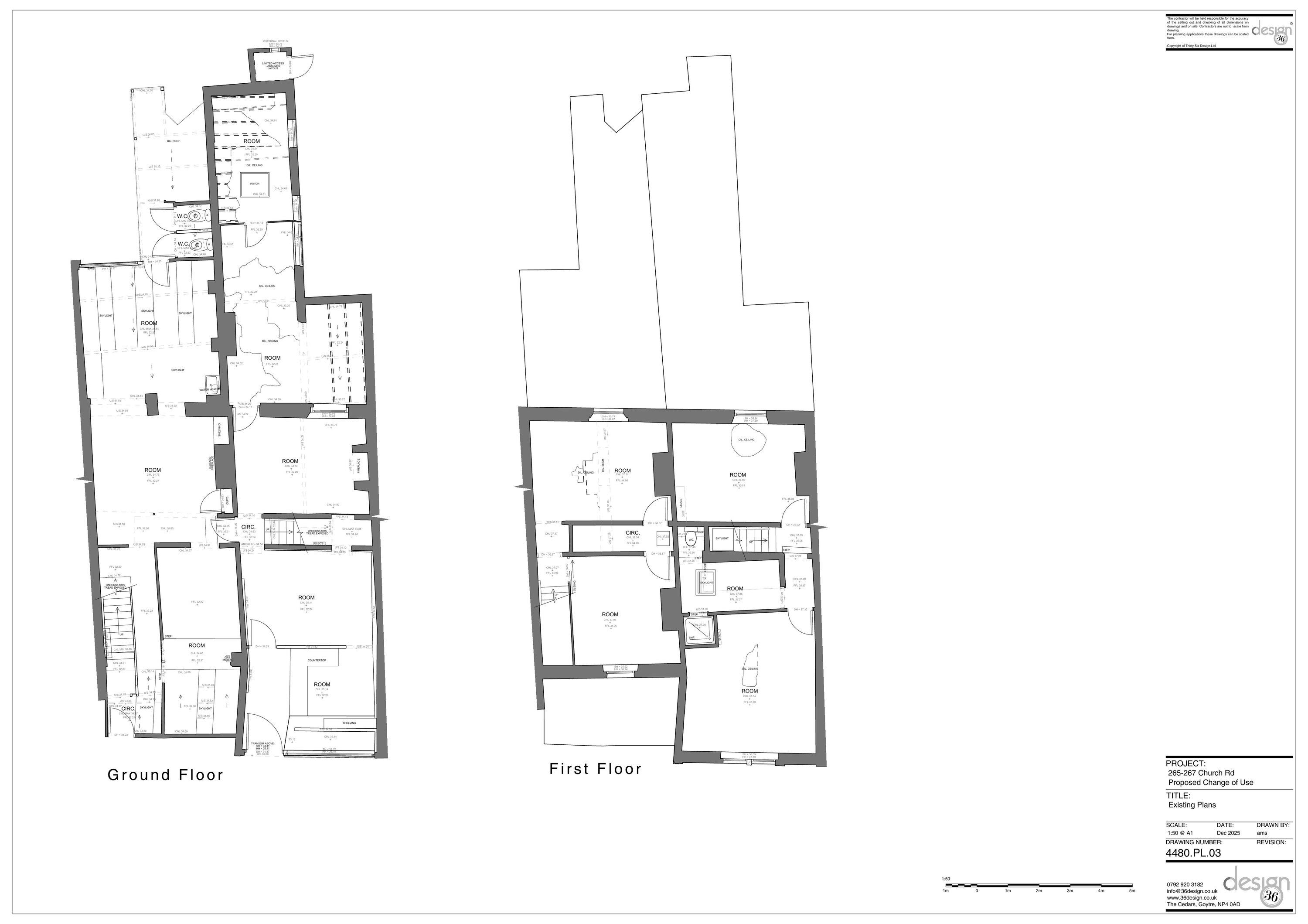
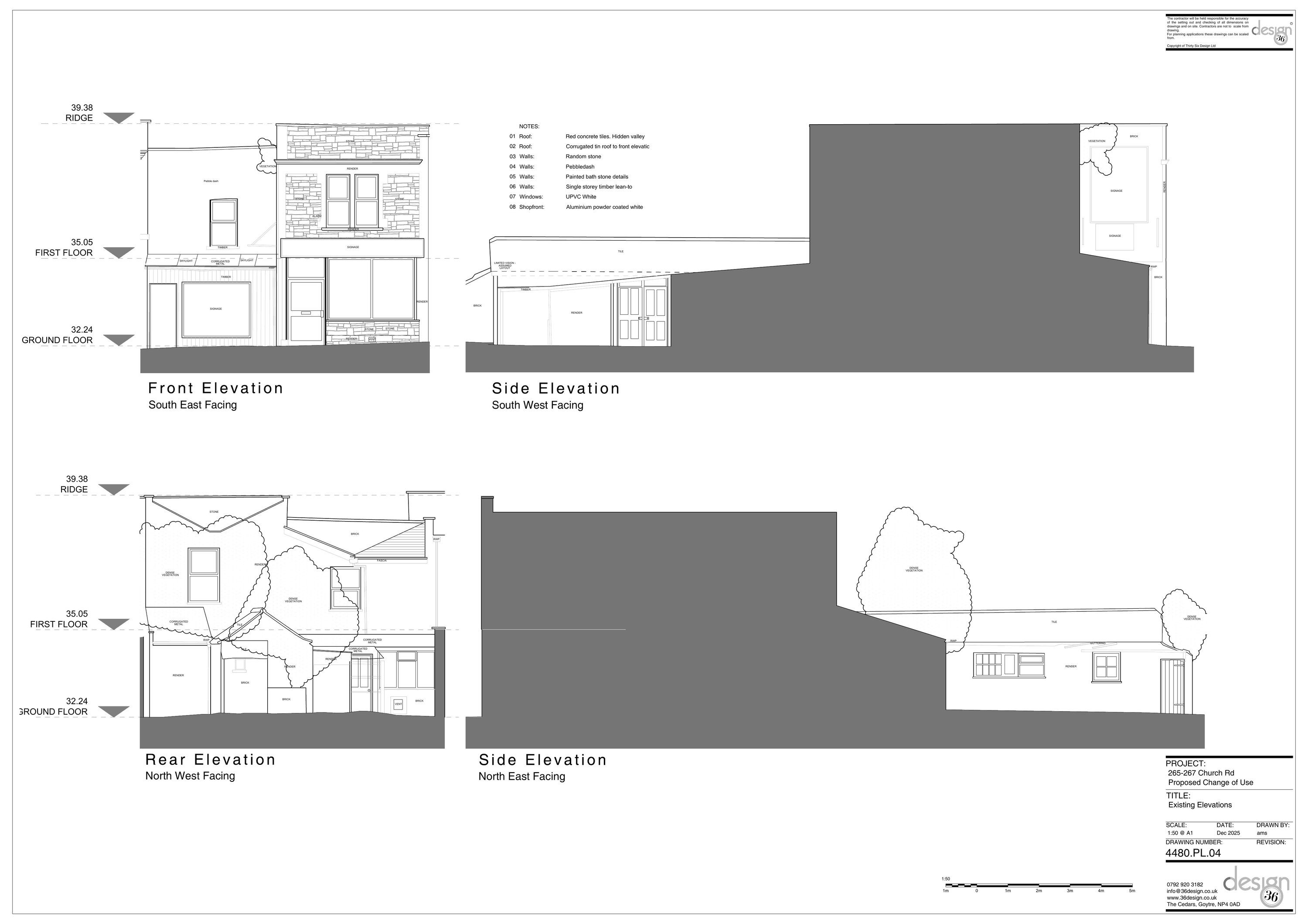
Erection of a second-floor roof extension, demolition and rebuilding of a single storey rear extension, and change of use of upper floors and part of ground floor from ancillary commercial space to a large 8-bed HMO. New shopfronts to retained ground floor commercial units.

Have your say

Your comment matters. Councils must consider every representation that raises material planning considerations.

Write a comment