← Bristol City Council

Status

Pending consideration New housing
Received
16 Jan 2026
New homes
0

Full proposal

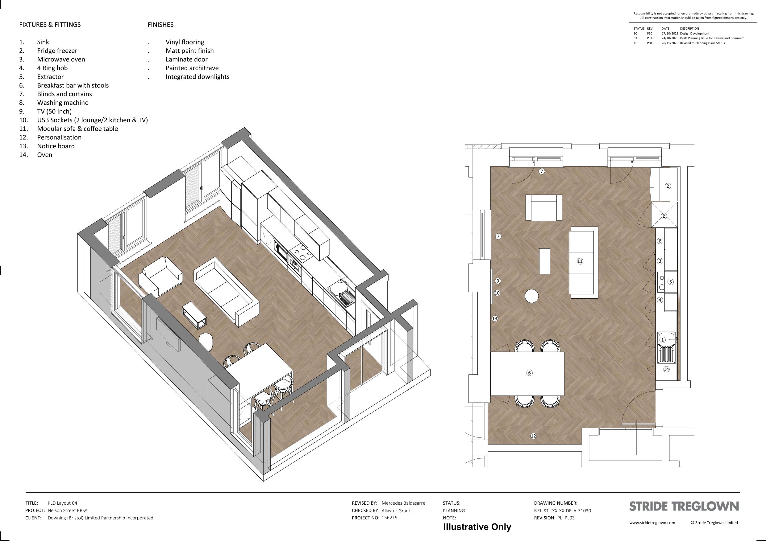
Demolition of the existing multi-storey car park and ground floor commercial units and the redevelopment of the site for purpose-built student accommodation (sui generis) and ground floor commercial units (Use Class E, Class F2(b) and Sui Generis uses), alongside amenity space, cycle parking, refuse storage, landscaping, cycle lane provision and associated public realm works.

Documents

Design & Access Statement
Archived · Original link
Design & Access Statement
Archived · Original link
Design & Access Statement
Archived · Original link
Design & Access Statement
Archived · Original link
Design & Access Statement
Archived · Original link
Design & Access Statement
Archived · Original link
Design & Access Statement
Archived · Original link
Design & Access Statement
Archived · Original link
Design & Access Statement
Archived · Original link
Plan
Archived · Original link
Plan
Archived · Original link
Plan
Archived · Original link
Plan
Archived · Original link
Supporting document
Archived · Original link

Have your say

Your comment matters. Councils must consider every representation that raises material planning considerations.

Write a comment