← Bristol City Council

Status

Pending consideration New housing
Received
Last month
New homes
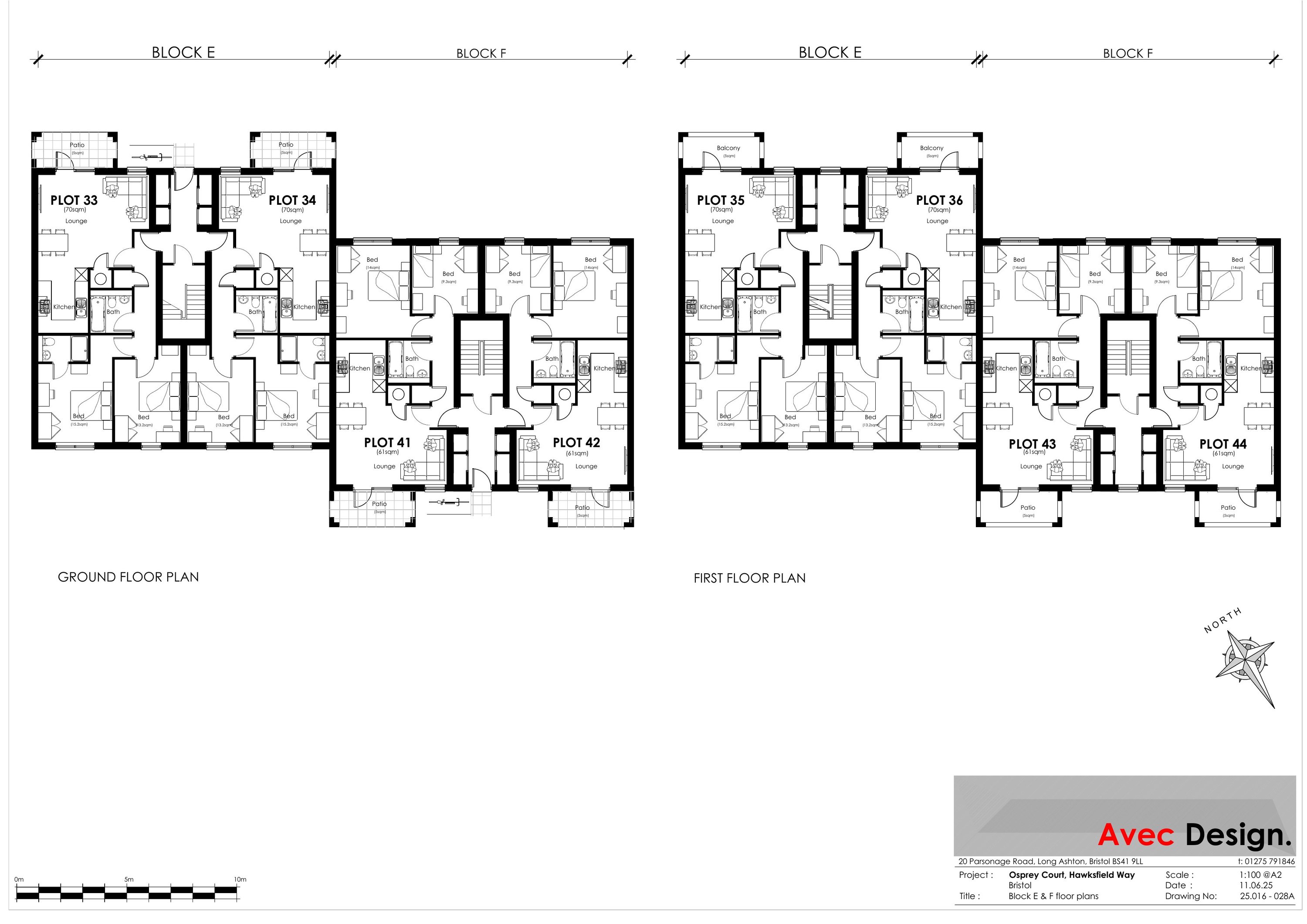
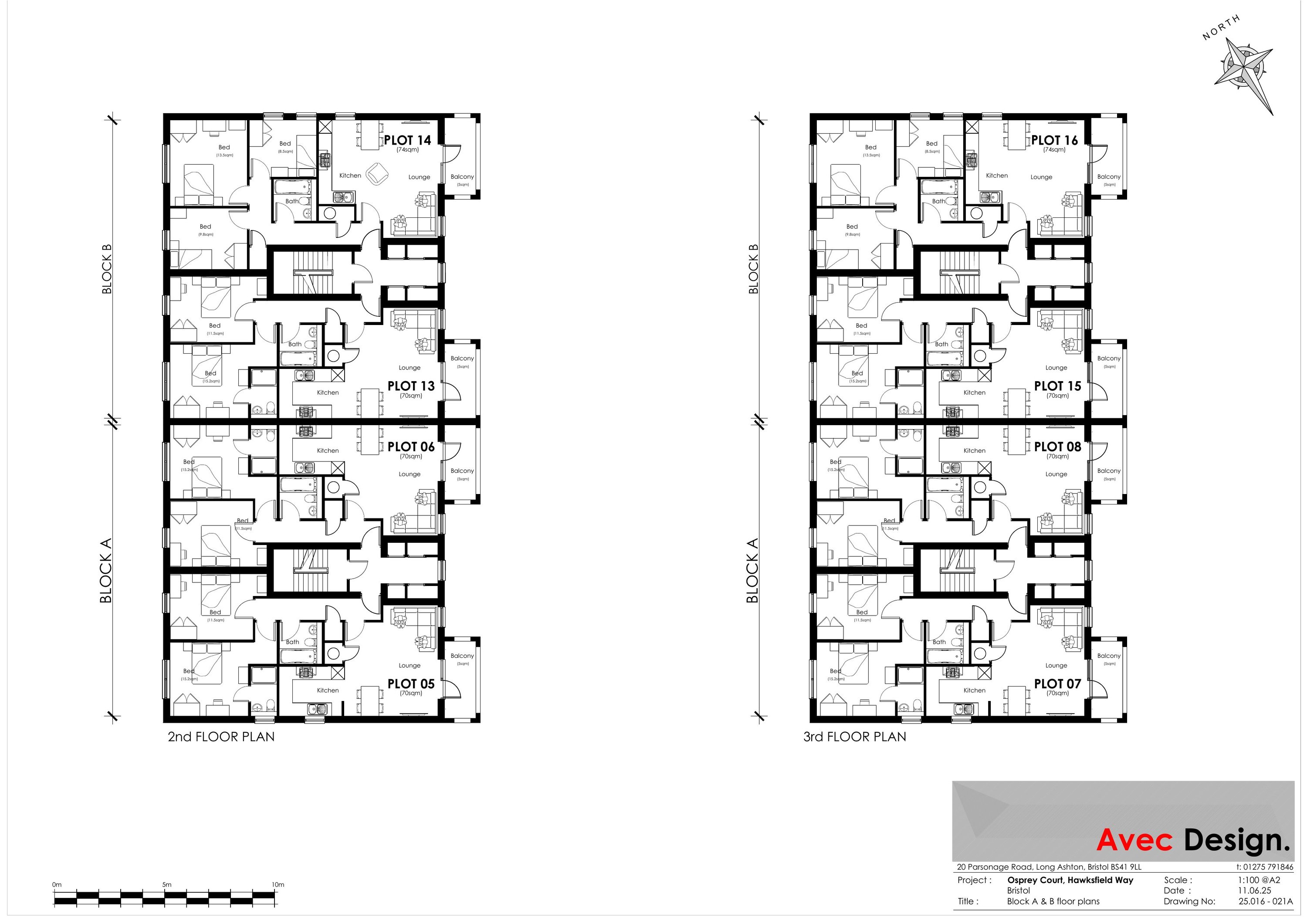
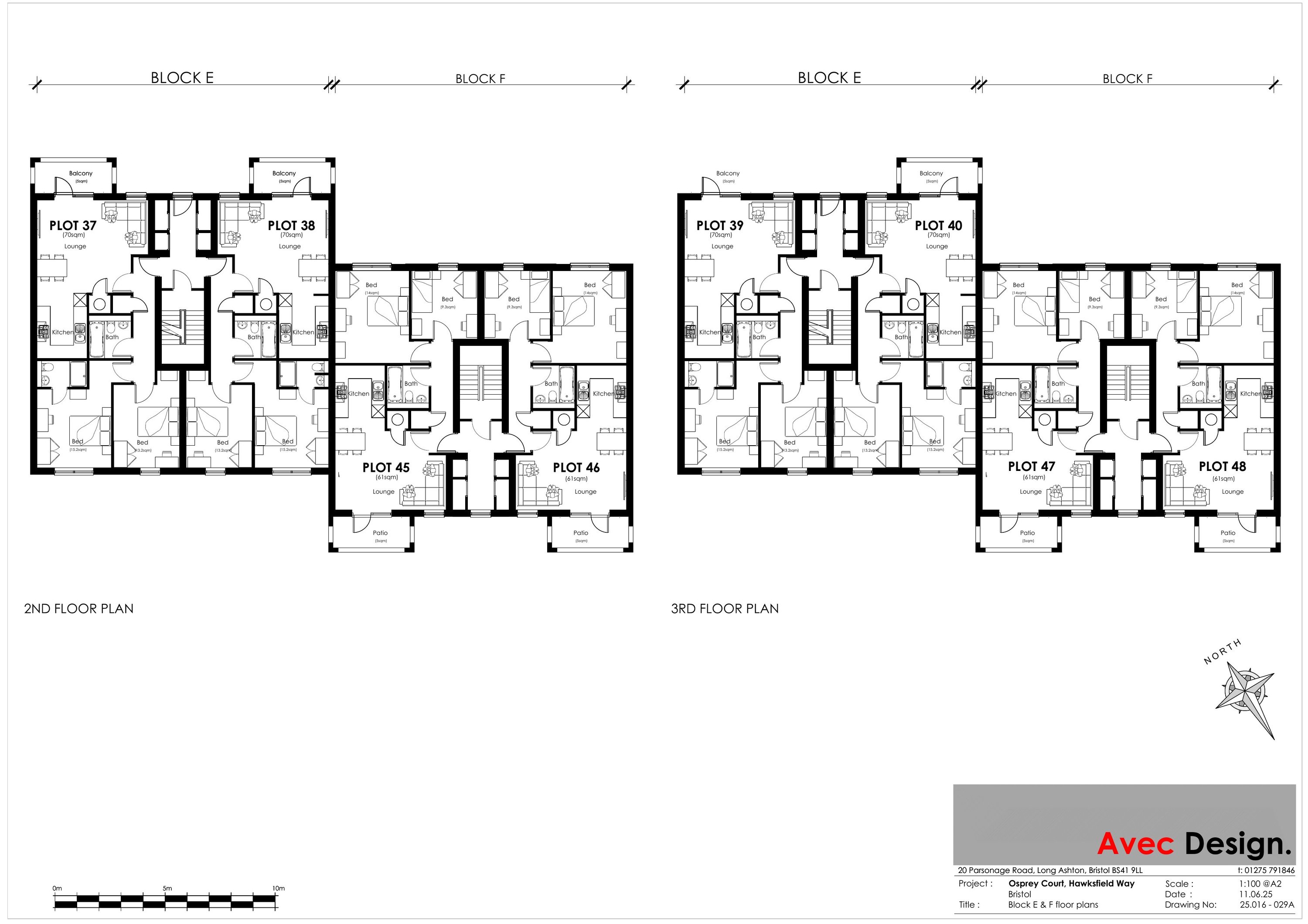
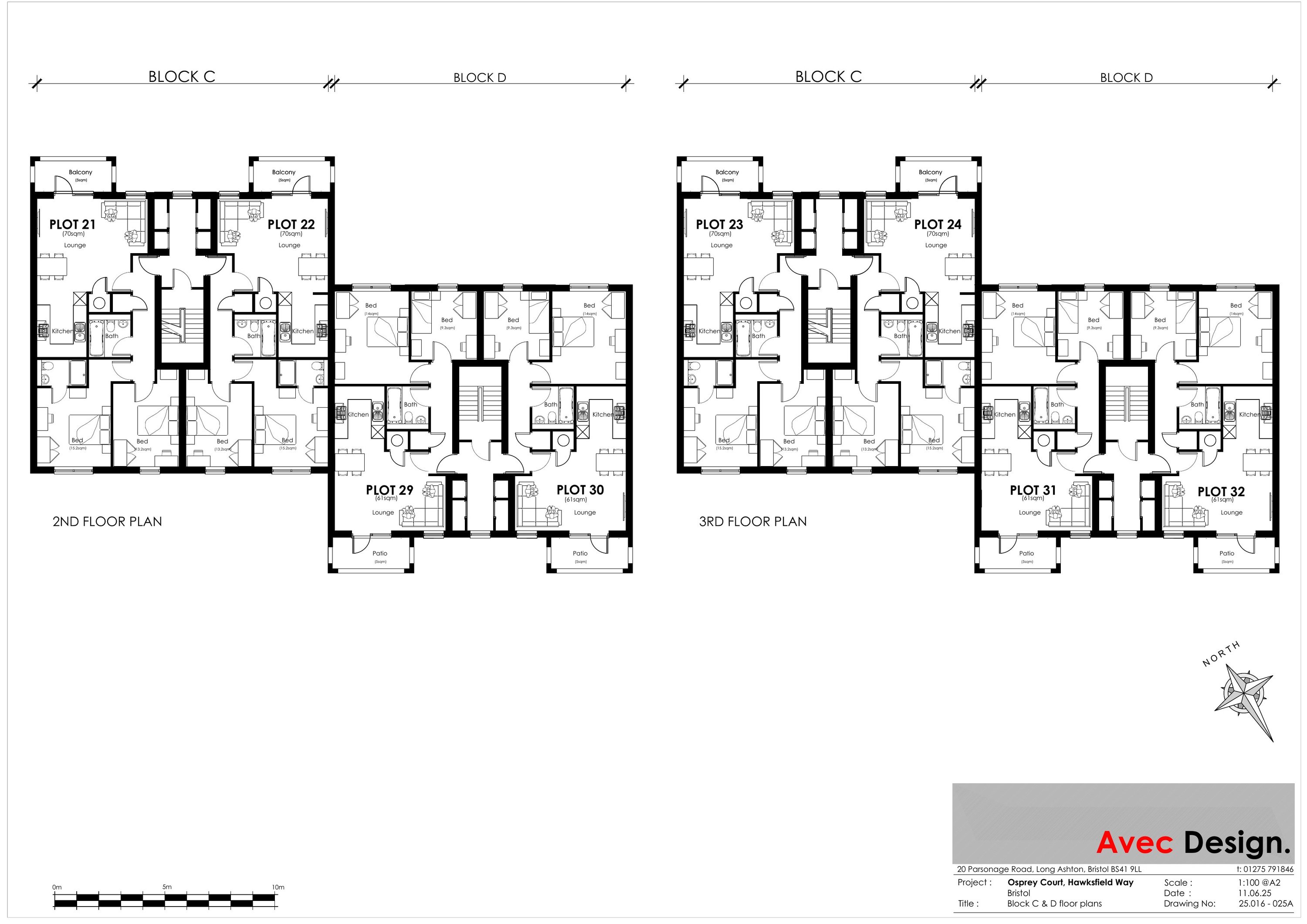
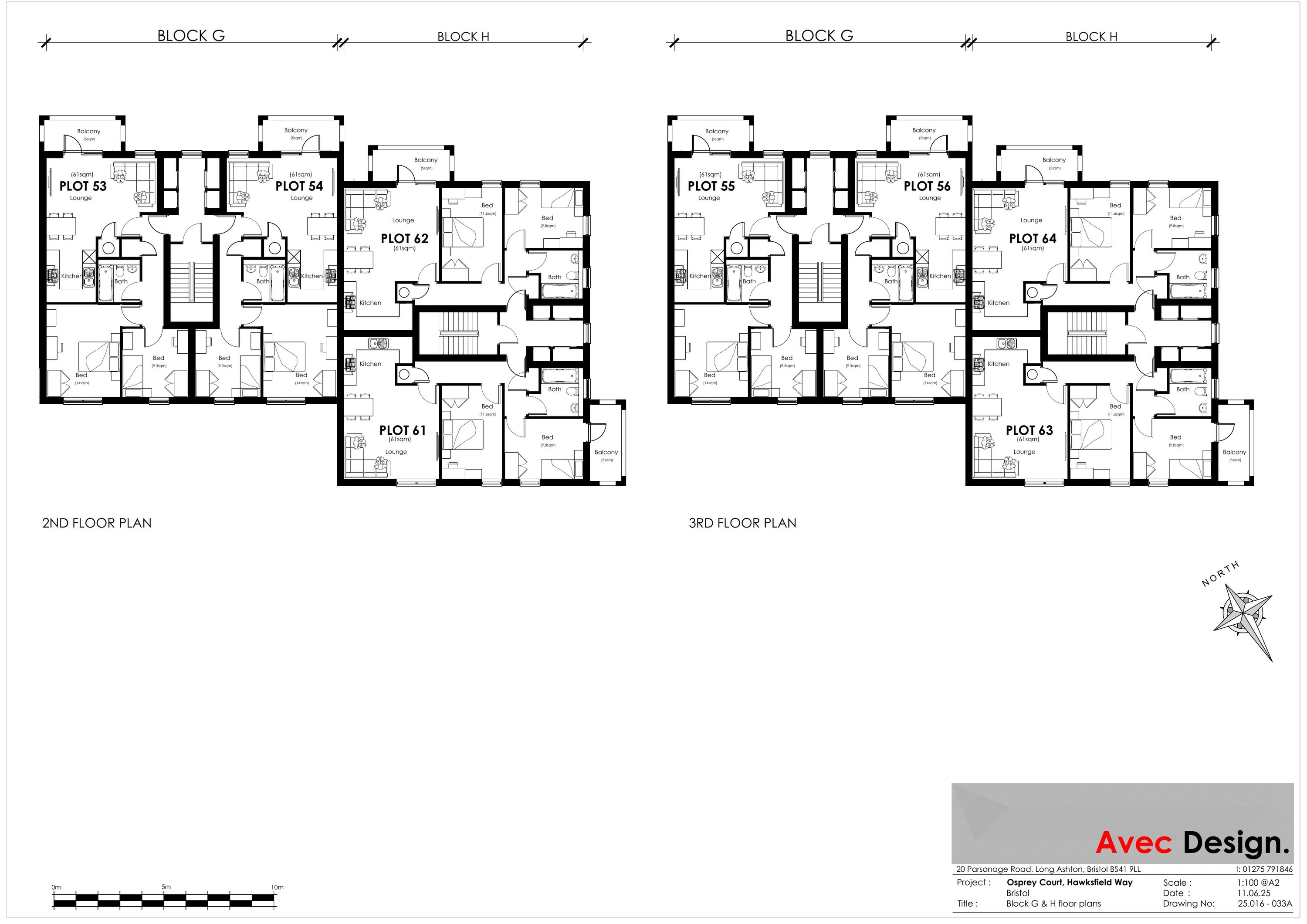
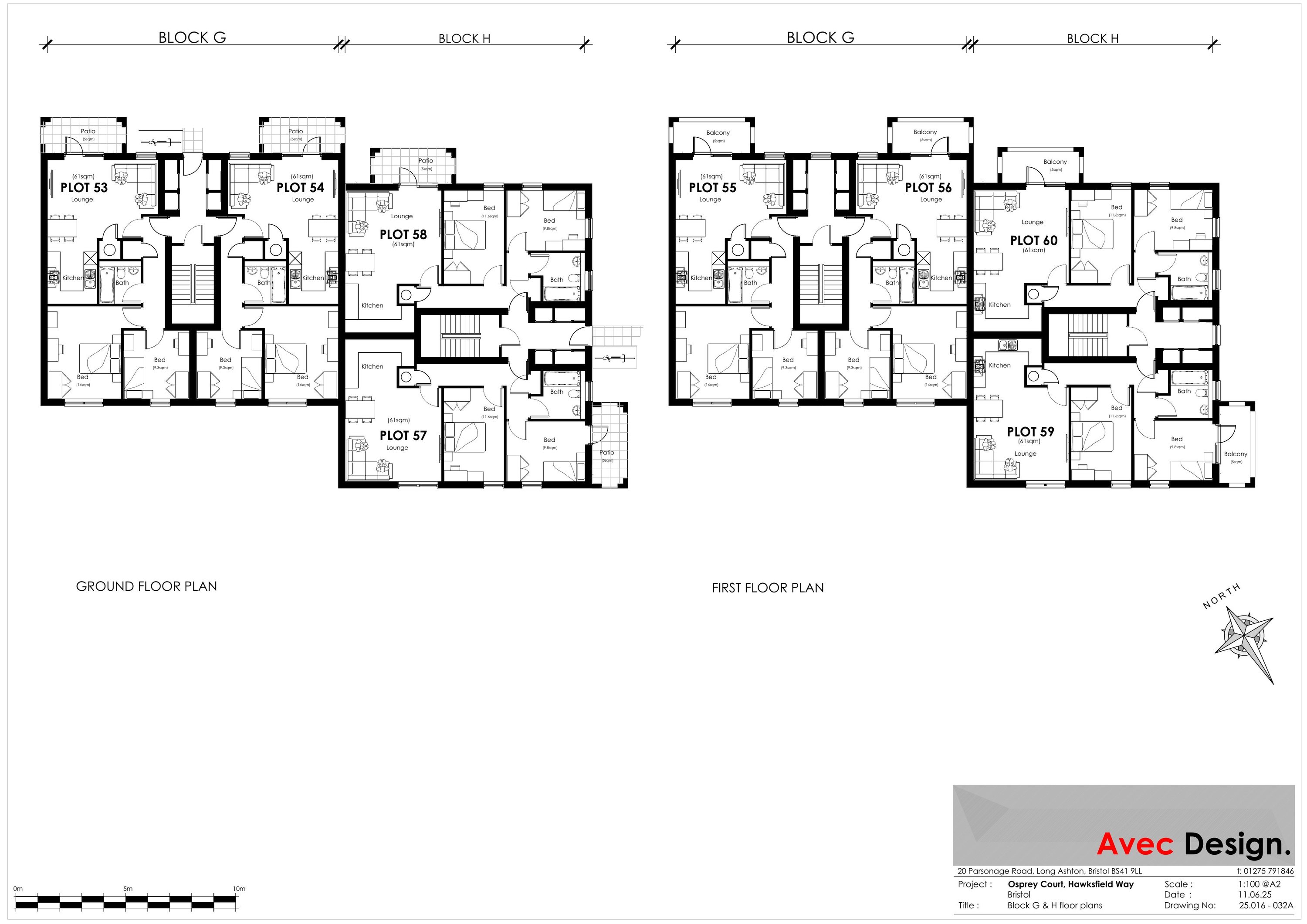
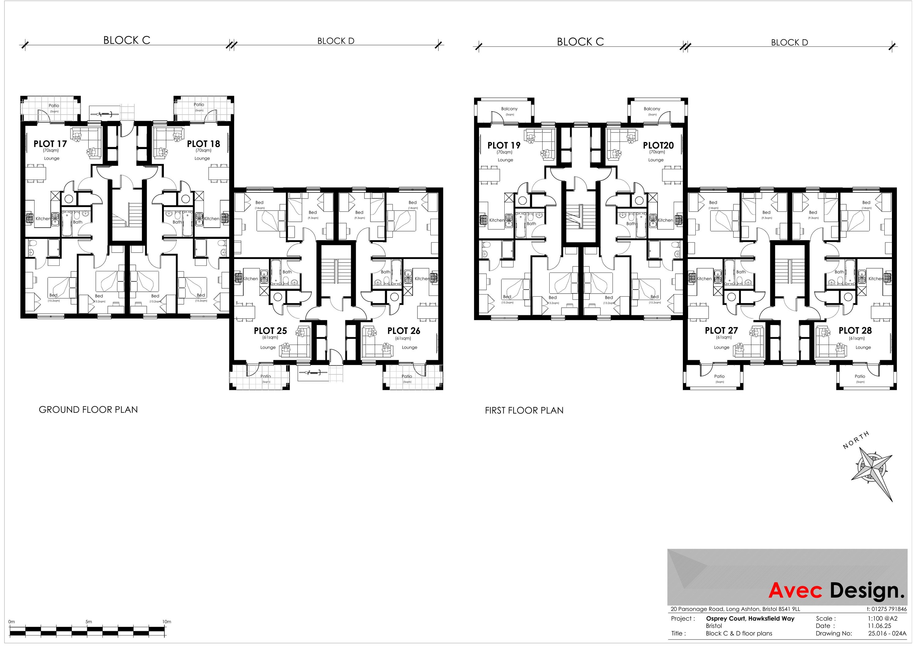
64

Full proposal

Redevelopment of site to provide 64no. residential apartments with parking, landscaping, and associated works

Documents

Design & Access Statement
Archived · Original link
Plan
Archived · Original link

Have your say

Your comment matters. Councils must consider every representation that raises material planning considerations.

Write a comment