← Bristol City Council

Status

Pending consideration New housing
Received
Not recorded
New homes
1

Full proposal

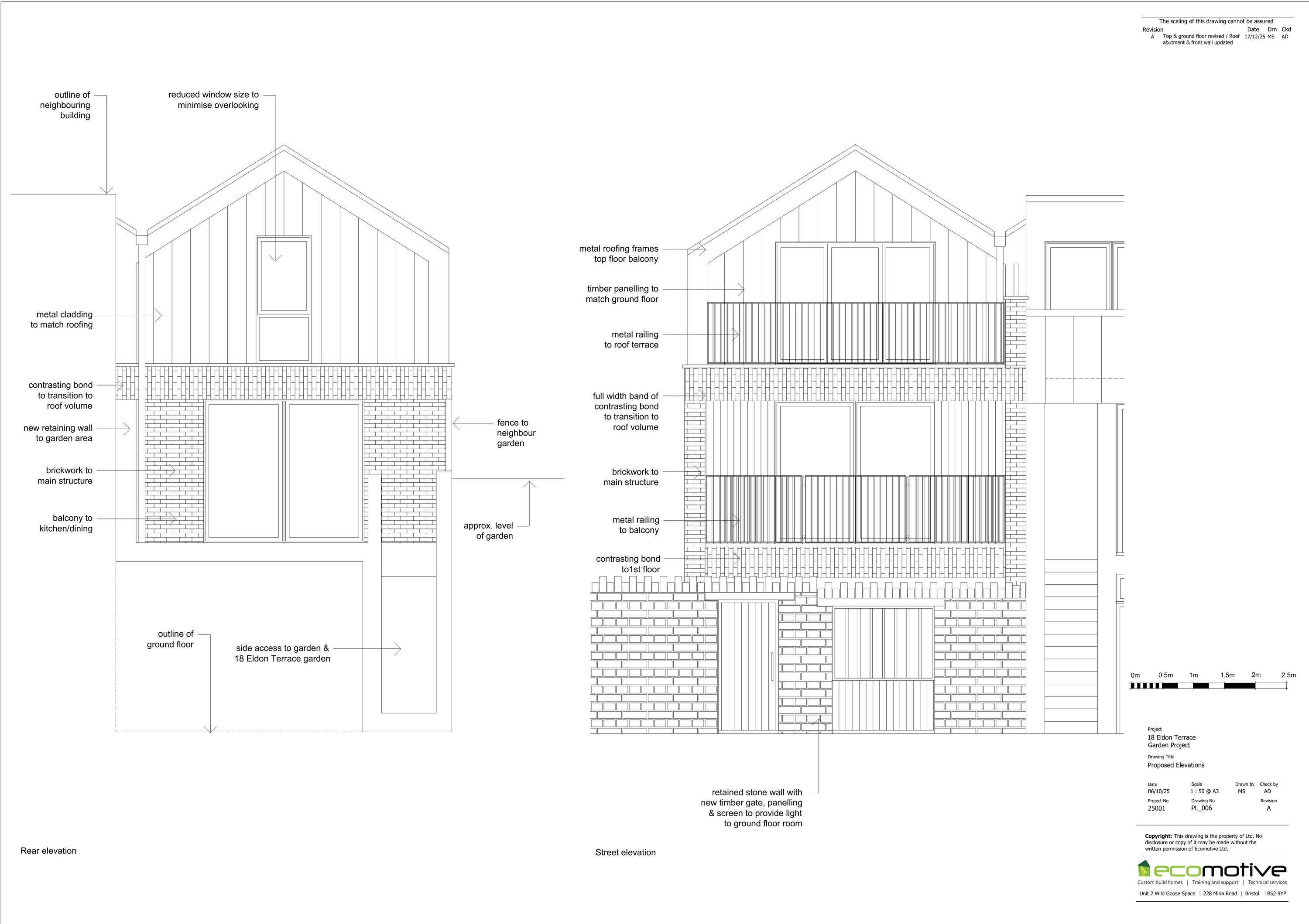
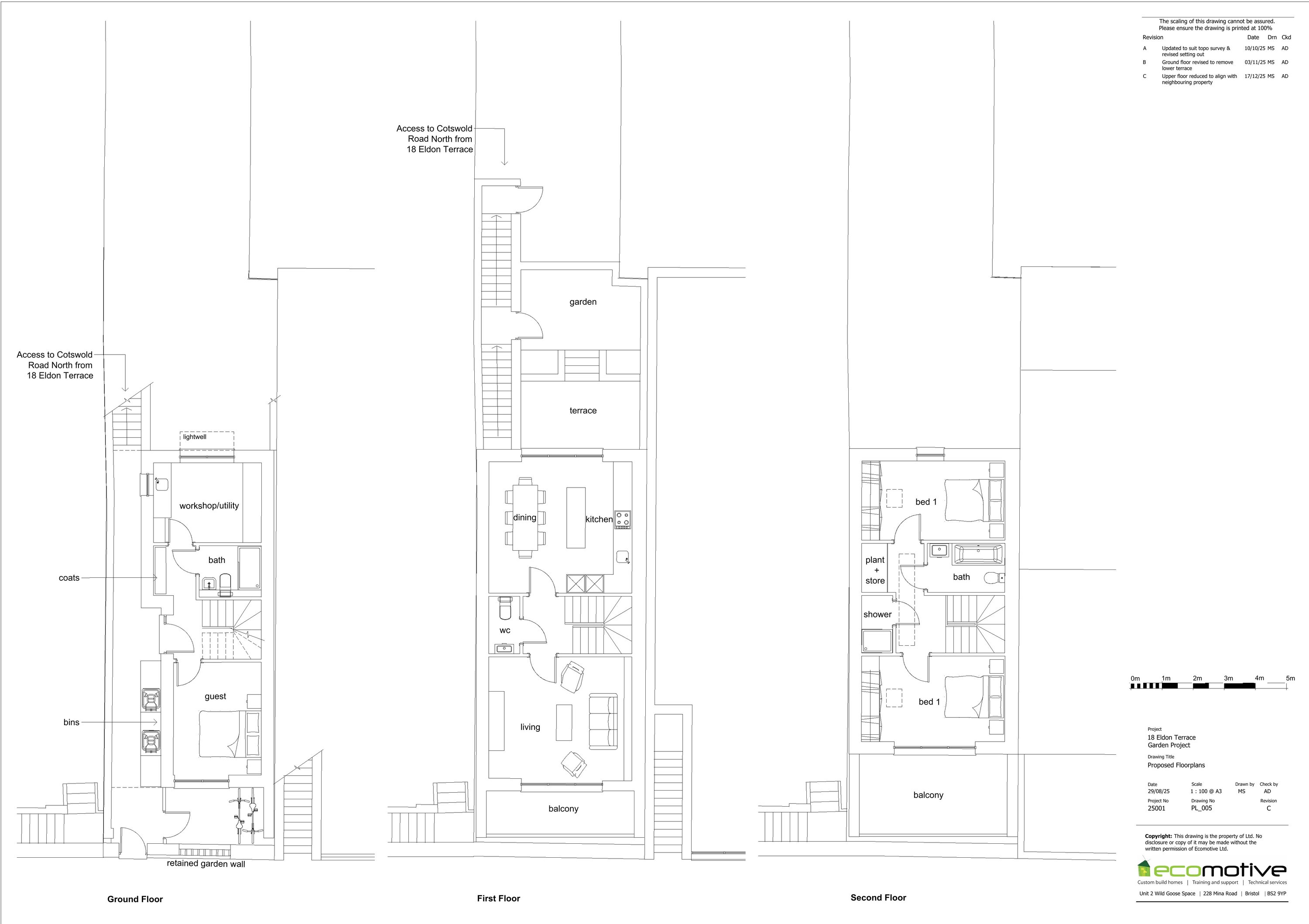
Construction of a new 3 storey self-build dwelling and associated private amenity within the rear garden.

Have your say

Your comment matters. Councils must consider every representation that raises material planning considerations.

Write a comment