← Bristol City Council

Status

Pending consideration New housing
Received
Last month
New homes
7

Full proposal

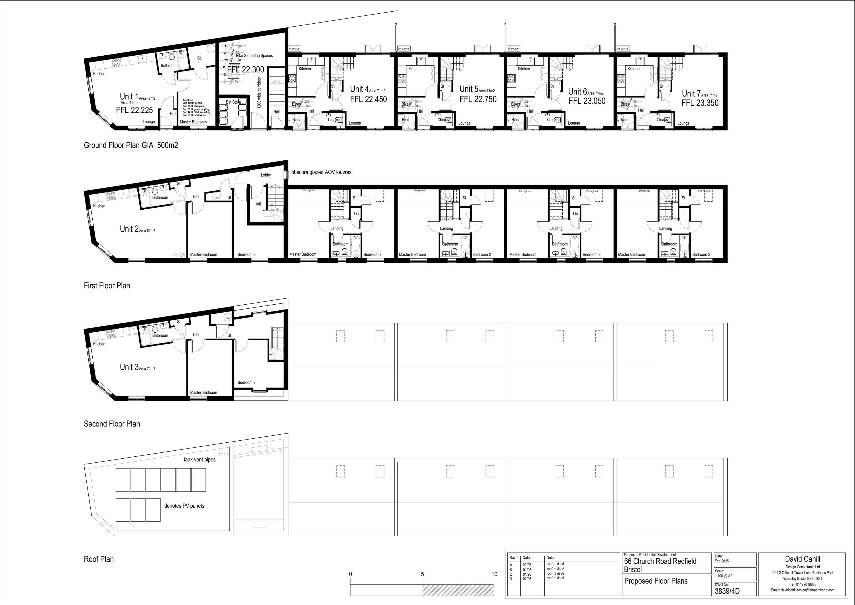
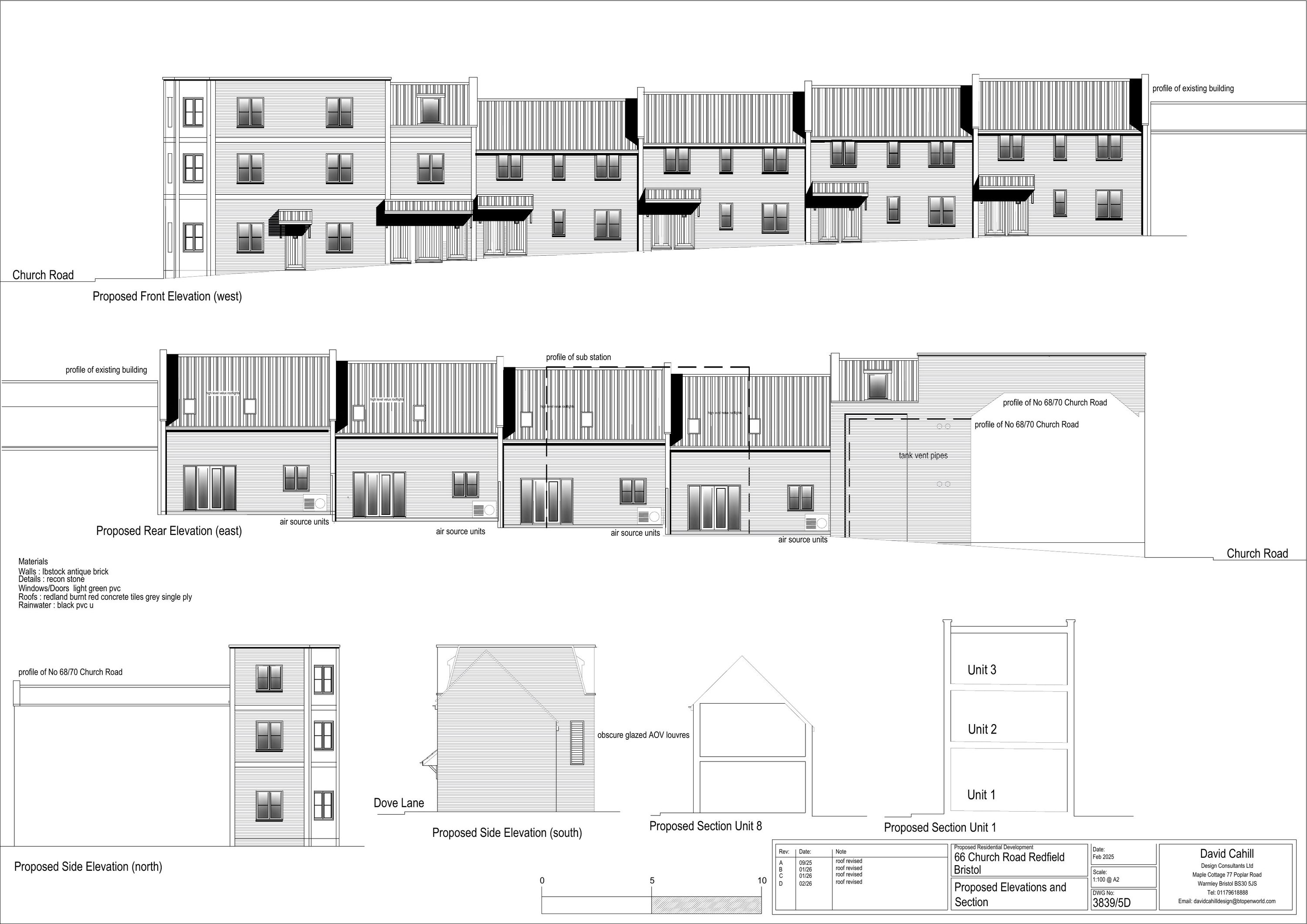
The demolition of the existing buildings on site, and the erection of a three-storey building comprising 3 no flats, and 4no. terraced dwelling houses.

Have your say

Your comment matters. Councils must consider every representation that raises material planning considerations.

Write a comment