26/10863/H
Bristol City Council
Status
Pending consideration
House extension
Received
Last month
New homes
0
Full proposal
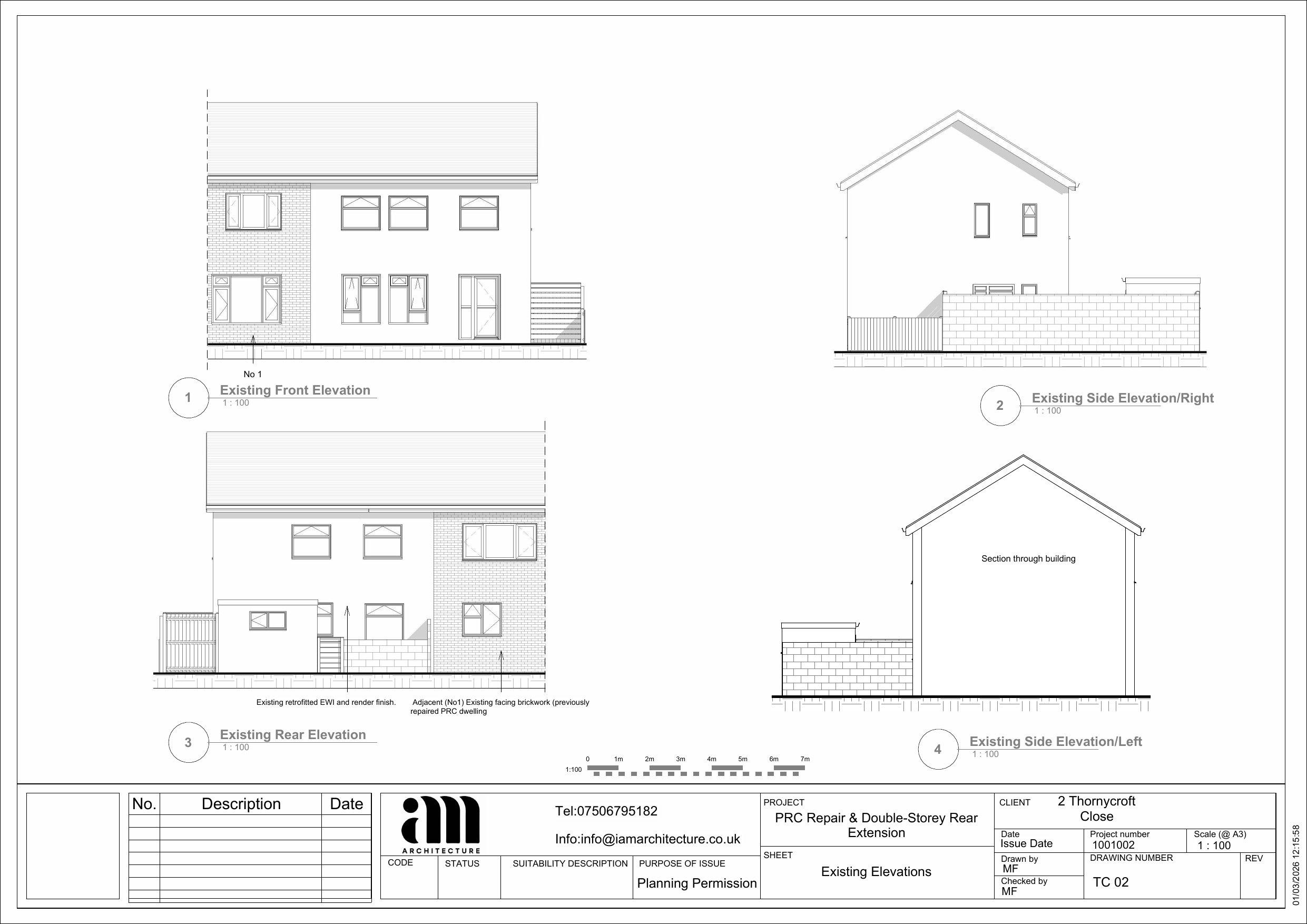
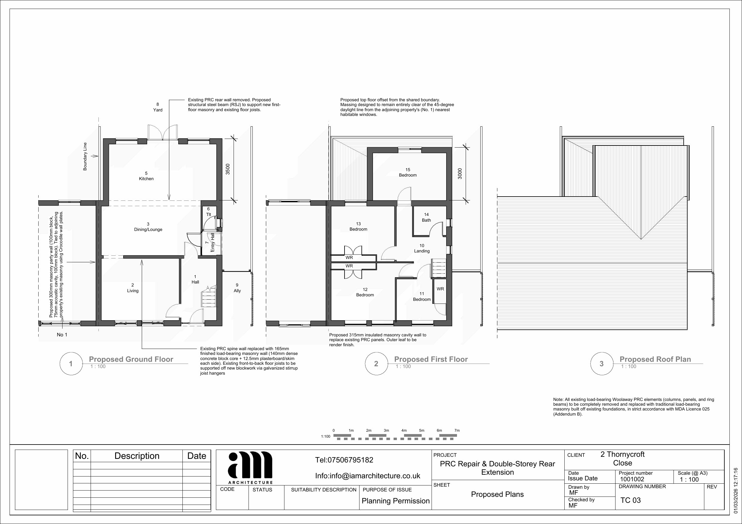
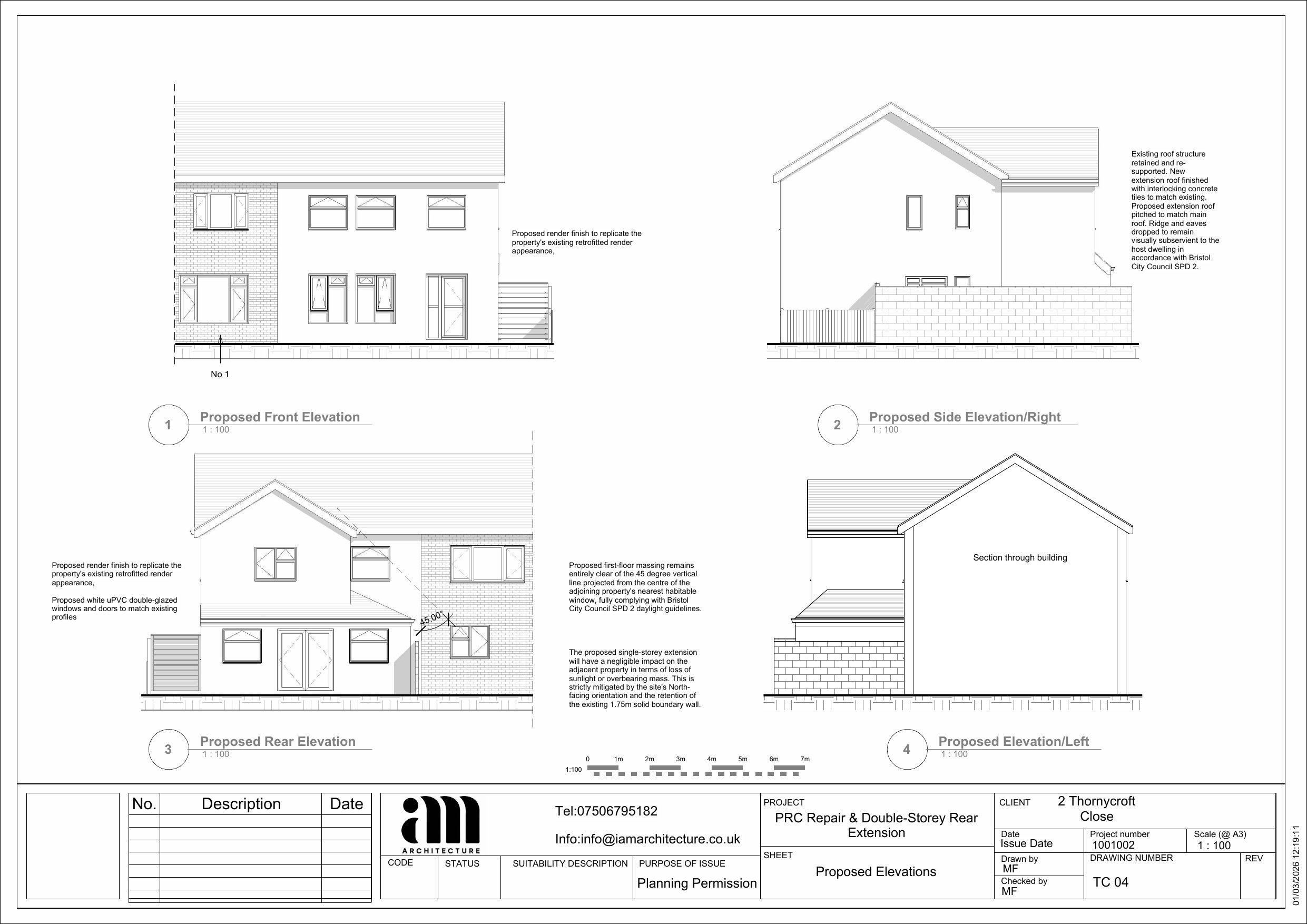
Replacement of existing external walls (PRC structural repair) and erection of a two-storey rear extension.
Documents
Have your say
Your comment matters. Councils must consider every representation that raises material planning considerations.