← Bristol City Council

Status

Pending consideration House extension
Received
Last month
New homes
0

Full proposal

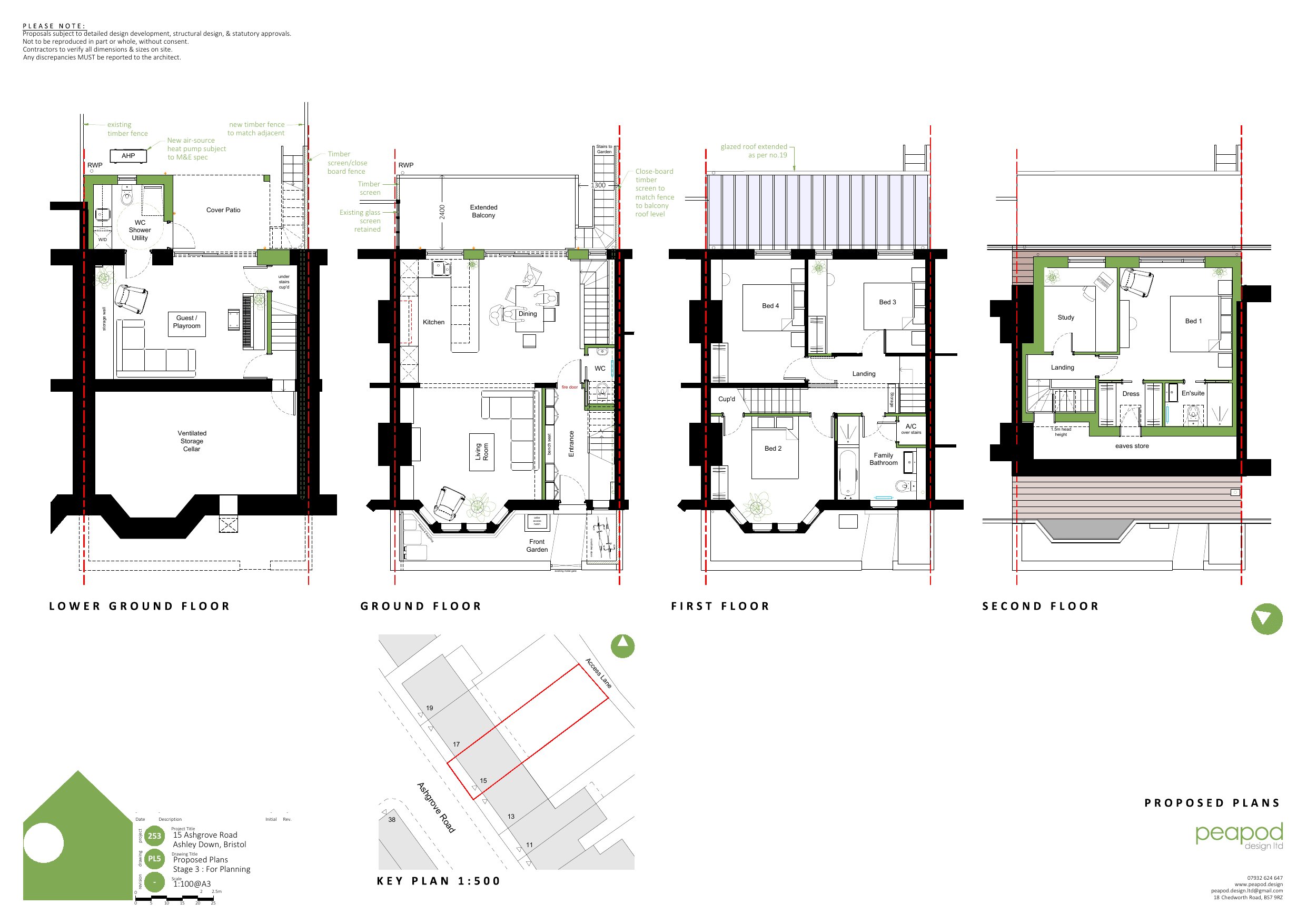
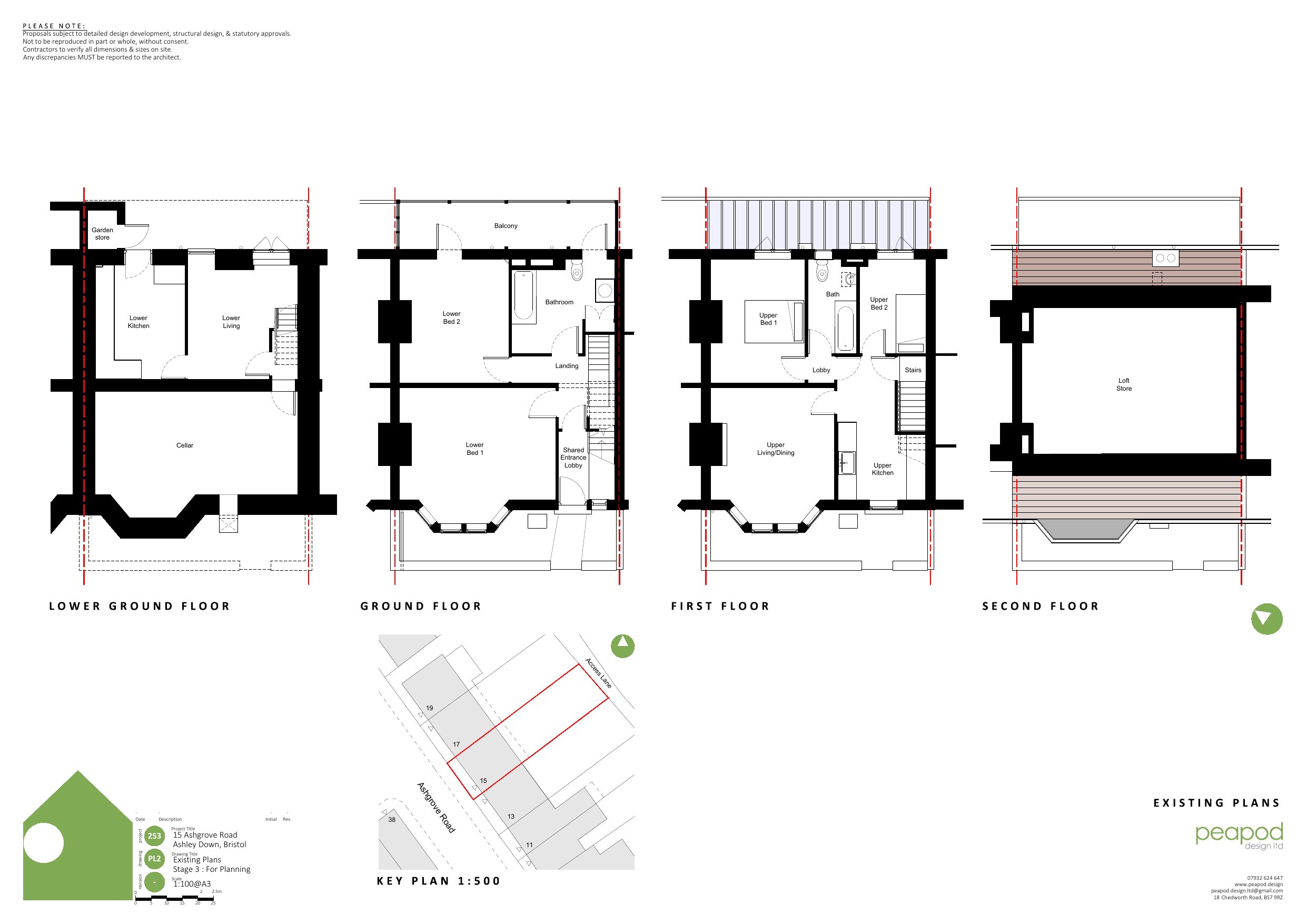
Reconfiguration of rear ground-floor balcony & formation of new external garden-access stairs. A loft conversion, creating a rear dormer & lower ground floor single-storey extension of less than 3m, beneath the balcony.

Have your say

Your comment matters. Councils must consider every representation that raises material planning considerations.

Write a comment