← Bromley

Status

Pending New housing
Received
Not recorded
New homes
1

Full proposal

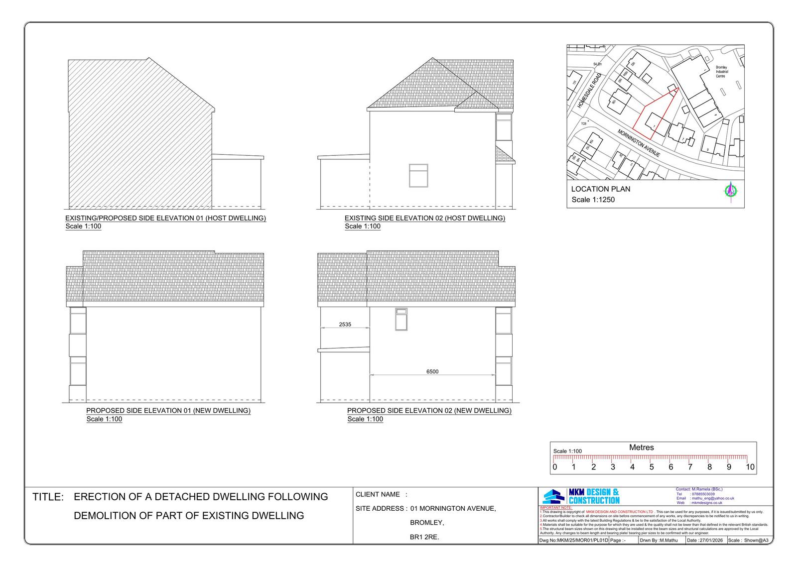
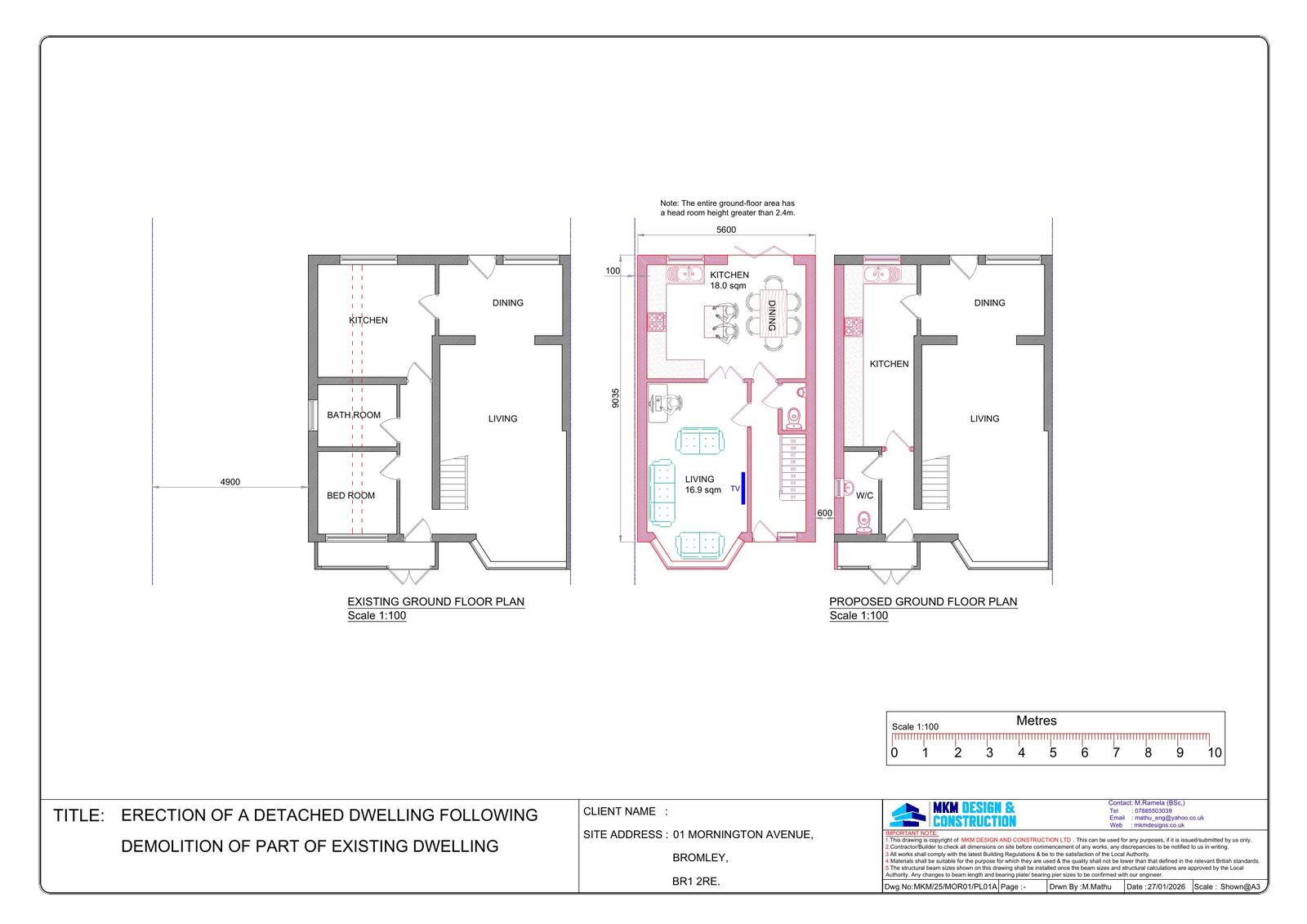
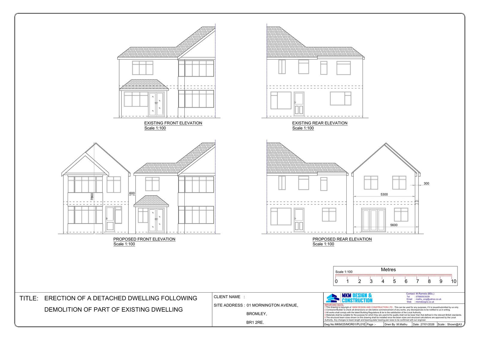
Reference 26/00066/FPA Received Date 09/1/2026 Application type Full planning permission Site address 1 MORNINGTON AVENUE, BROMLEY, BR1 2RE Description Demolition of part of the existing dwelling (to involve reduction from 5 bedroom to 3 bedroom dwelling) and erection of a detached 2 storey, 3-bedroom, 4 person dwelling with associated amenity space, cycle and refuse storage, parking and a new vehicular crossover. Status Valid Decision

Documents

Uncategorised
Archived · Original link
Uncategorised
Archived · Original link
Uncategorised
Archived · Original link
Uncategorised
Archived · Original link
Uncategorised
Archived · Original link
Uncategorised
Archived · Original link
Uncategorised
Archived · Original link
Uncategorised
Archived · Original link
Uncategorised
Archived · Original link
Uncategorised
Archived · Original link
Uncategorised
Archived · Original link
Uncategorised
Archived · Original link
Uncategorised
Archived · Original link
Uncategorised
Archived · Original link

Have your say

Your comment matters. Councils must consider every representation that raises material planning considerations.

Write a comment