← Bromley

Status

Pending New housing
Received
Not recorded
New homes
2

Full proposal

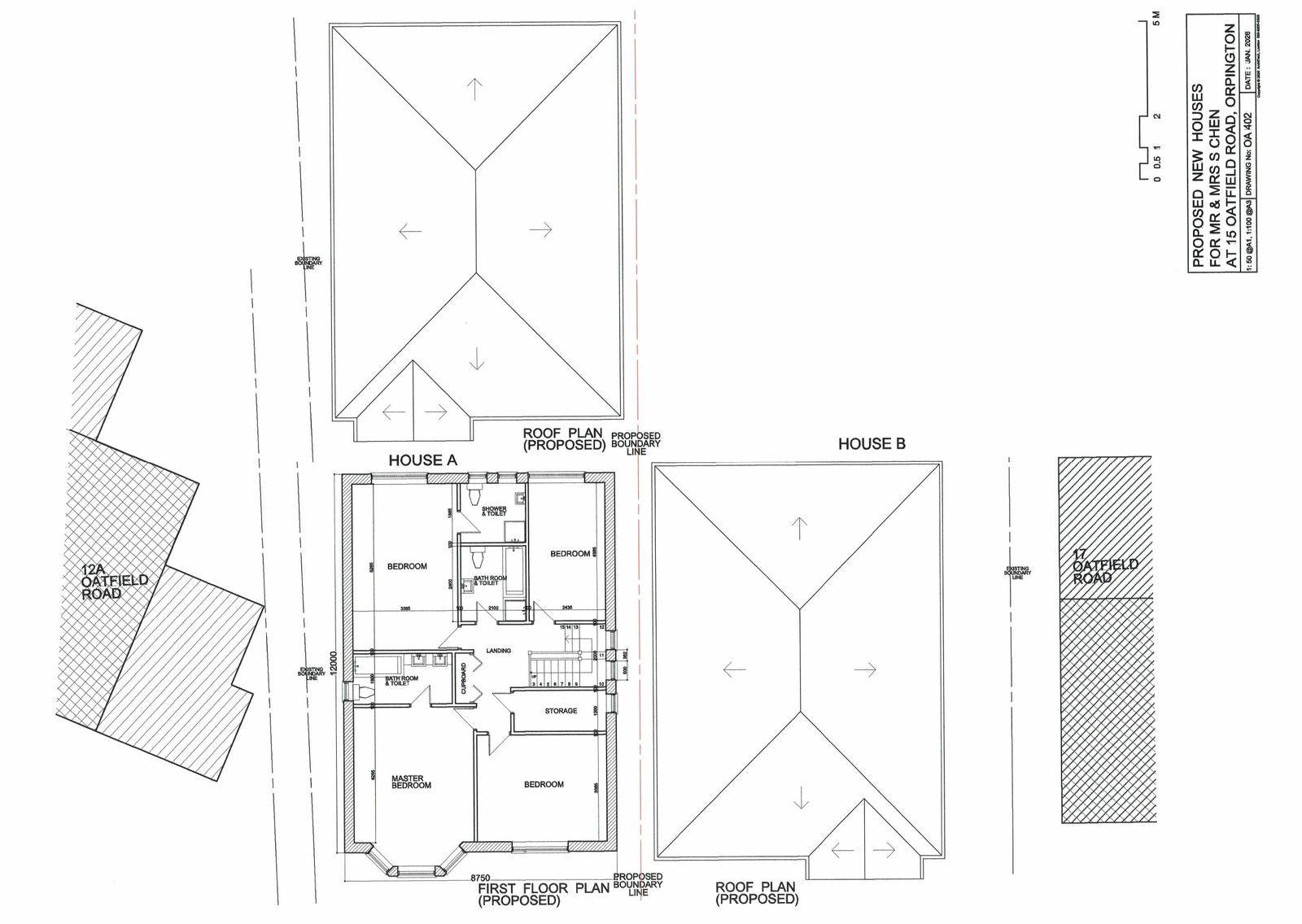
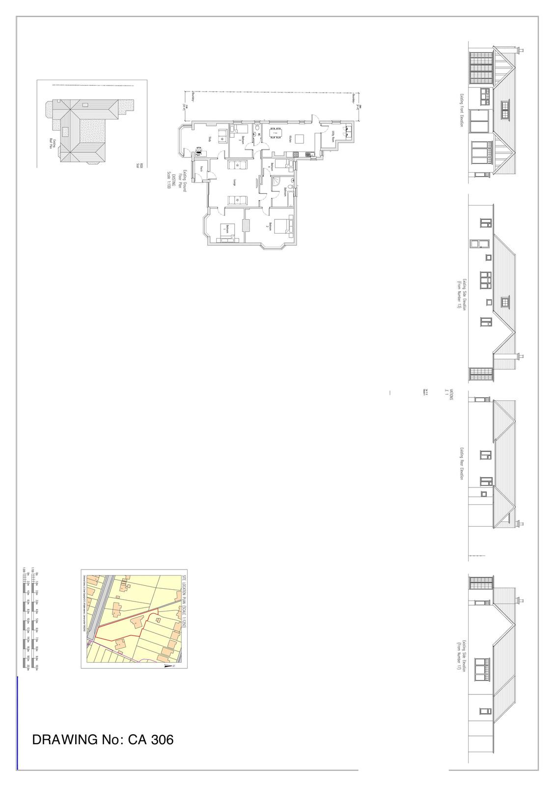
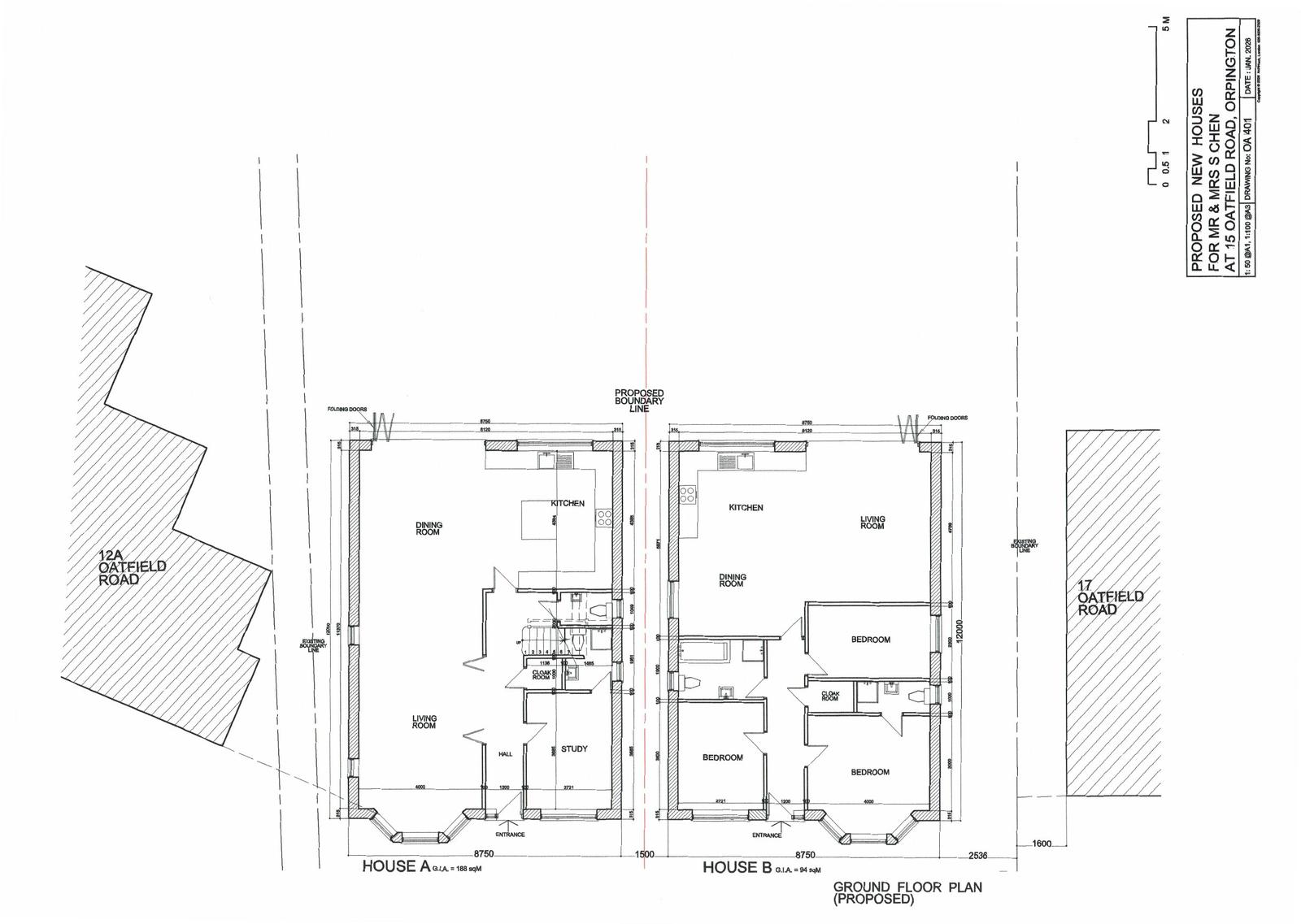
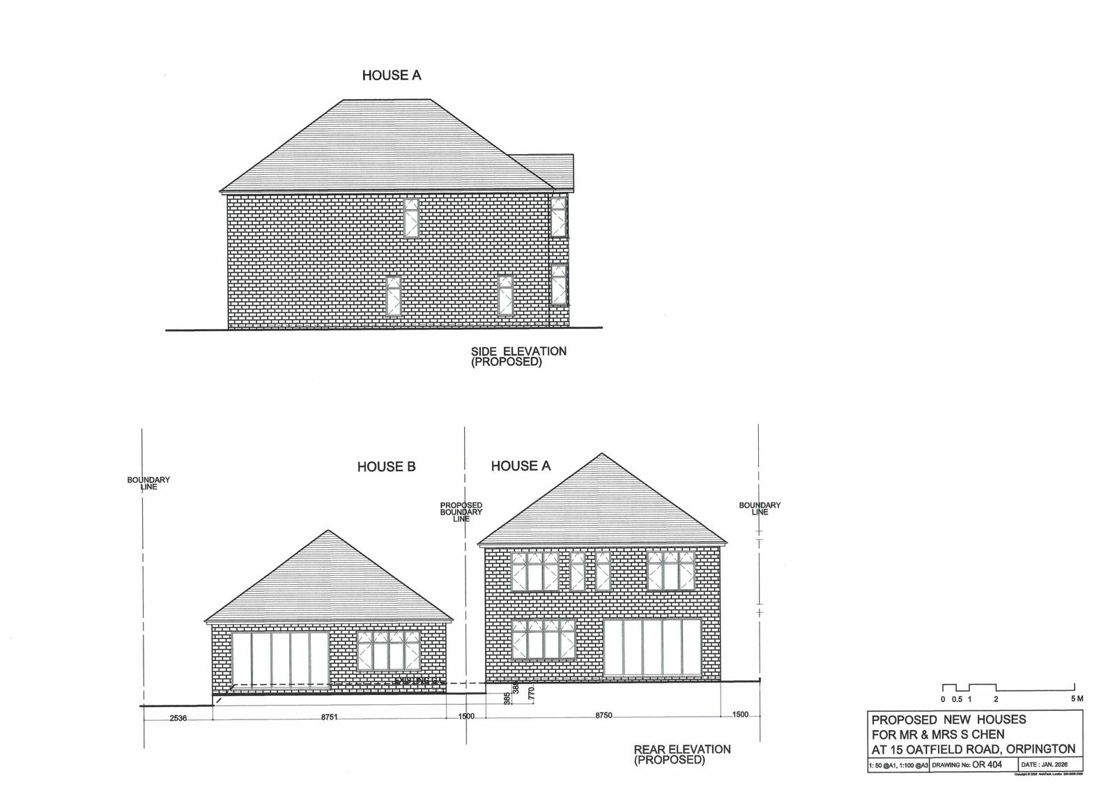
Reference 26/00138/FPA Received Date 15/1/2026 Application type Full planning permission Site address 15 OATFIELD ROAD, ORPINGTON, BR6 0ER Description Demolition of existing detached bungalow and erection of detached two storey 4 bedroom dwelling and detached 3 bedroom bungalow with associated parking, amenity space and refuse and cycle stores Status Valid Decision

Documents

Uncategorised
Archived · Original link
Uncategorised
Archived · Original link
Uncategorised
Archived · Original link
Uncategorised
Archived · Original link
Uncategorised
Archived · Original link
Uncategorised
Archived · Original link
Uncategorised
Archived · Original link
Uncategorised
Archived · Original link
Uncategorised
Archived · Original link
Uncategorised
Archived · Original link
Uncategorised
Archived · Original link
Uncategorised
Archived · Original link

Have your say

Your comment matters. Councils must consider every representation that raises material planning considerations.

Write a comment