← Bromley

Status

Pending Change of use
Received
Not recorded
New homes
2

Full proposal

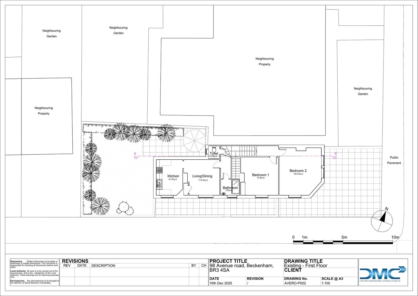
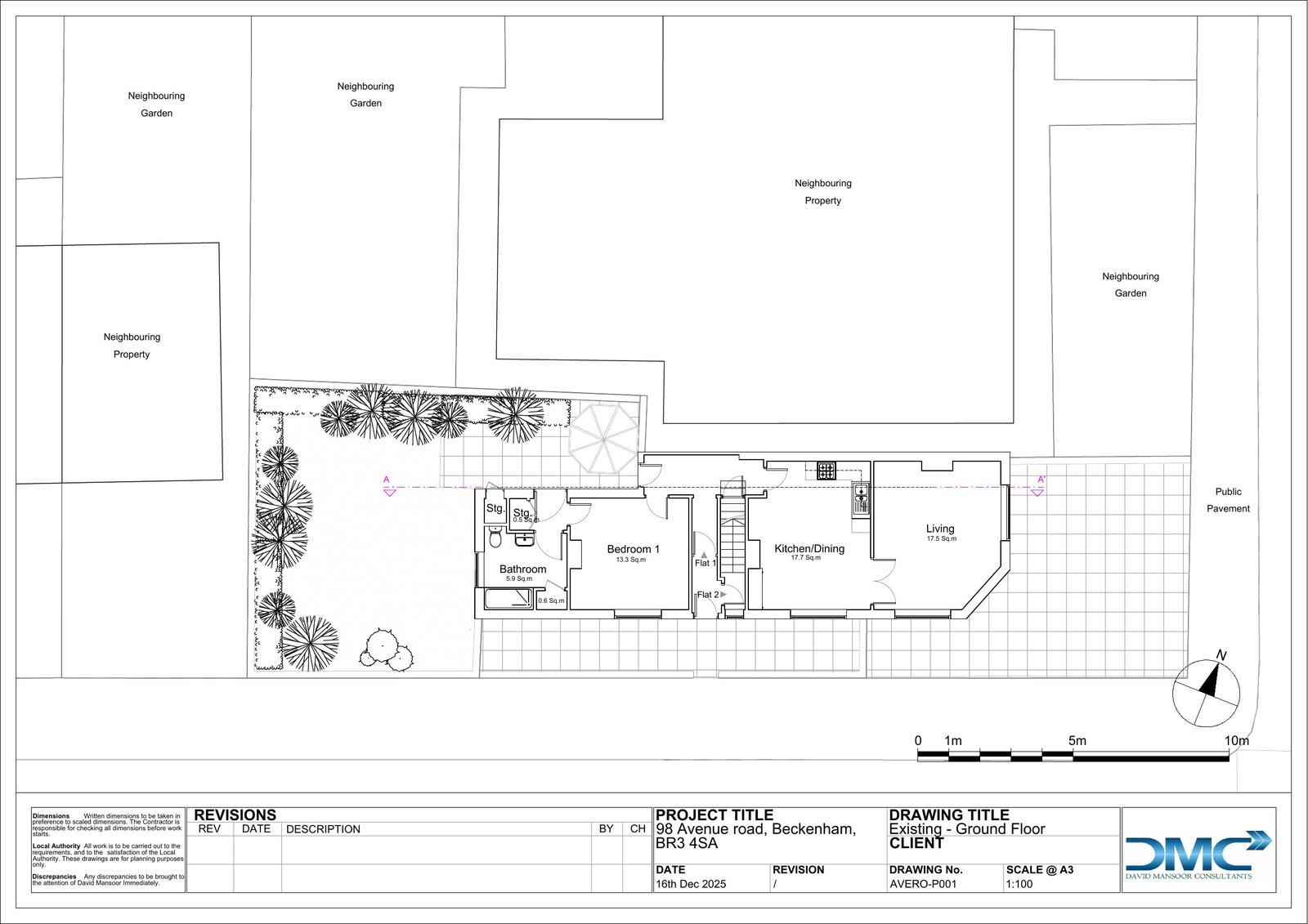
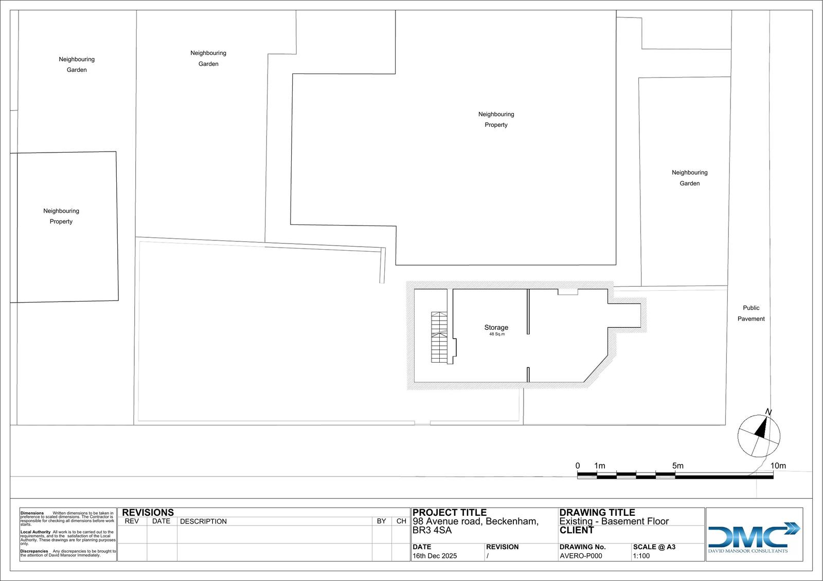
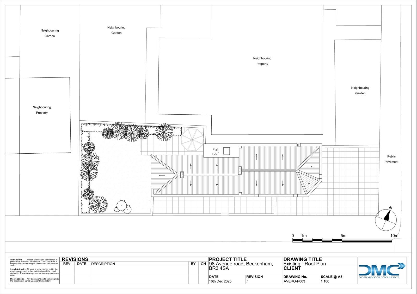
Reference 26/00156/FPA Received Date 16/1/2026 Application type Full planning permission Site address 98 AVENUE ROAD, BECKENHAM, BR3 4SA Description Alterations to basement level; excavation to form front and side elevation lightwells, erection of a part-single, part two-storey rear extension; creation of a new floor at 2nd floor level within a Mansard style roof with front, side and rear dormer window details, to facilitate the change of use from 2No. self-contained flats to 4No. self-contained flats (Class C3). Alterations to the existing cycle and bin storage areas, plus associated landscaping and fenestration enabling works Status Valid Decision

Documents

Uncategorised
Archived · Original link
Uncategorised
Archived · Original link
Uncategorised
Archived · Original link
Uncategorised
Archived · Original link
Uncategorised
Archived · Original link
Uncategorised
Archived · Original link
Uncategorised
Archived · Original link
Uncategorised
Archived · Original link
Uncategorised
Archived · Original link
Uncategorised
Archived · Original link
Uncategorised
Archived · Original link
Uncategorised
Archived · Original link
Uncategorised
Archived · Original link
Uncategorised
Archived · Original link
Uncategorised
Archived · Original link
Uncategorised
Archived · Original link
Uncategorised
Archived · Original link
Uncategorised
Archived · Original link
Uncategorised
Archived · Original link
Uncategorised
Archived · Original link

Have your say

Your comment matters. Councils must consider every representation that raises material planning considerations.

Write a comment