← Bromley

Status

Pending House extension
Received
Not recorded
New homes
0

Full proposal

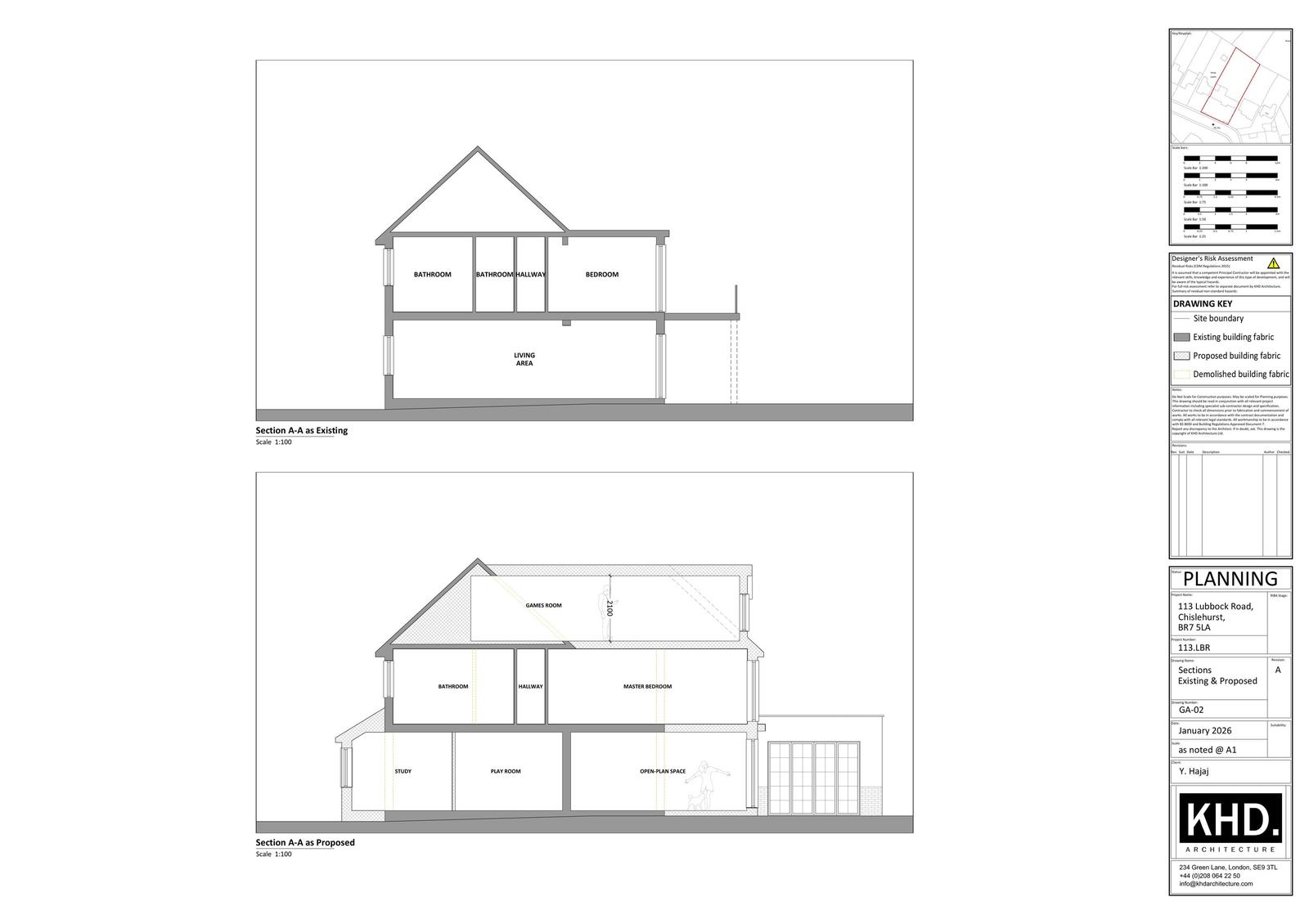
Reference 26/00219/HPA Received Date 21/1/2026 Application type Householder planning permission Site address 113 Lubbock Road, Chislehurst, BR7 5LA Description Part one/two storey front, side and rear extension, first-floor side extension, dormers to rear to create habitable accommodation in the roof, front porch canopy and elevational alterations Status Valid Decision

Documents

Uncategorised
Archived · Original link
Uncategorised
Archived · Original link
Uncategorised
Archived · Original link
Uncategorised
Archived · Original link
Uncategorised
Archived · Original link
Uncategorised
Archived · Original link
Uncategorised
Archived · Original link

Have your say

Your comment matters. Councils must consider every representation that raises material planning considerations.

Write a comment