← Bromley

Status

Pending Other
Received
Not recorded
New homes
0

Full proposal

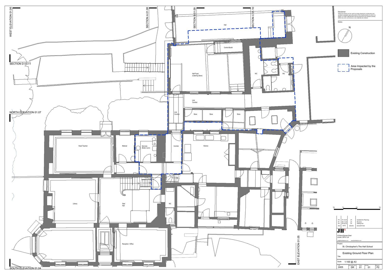
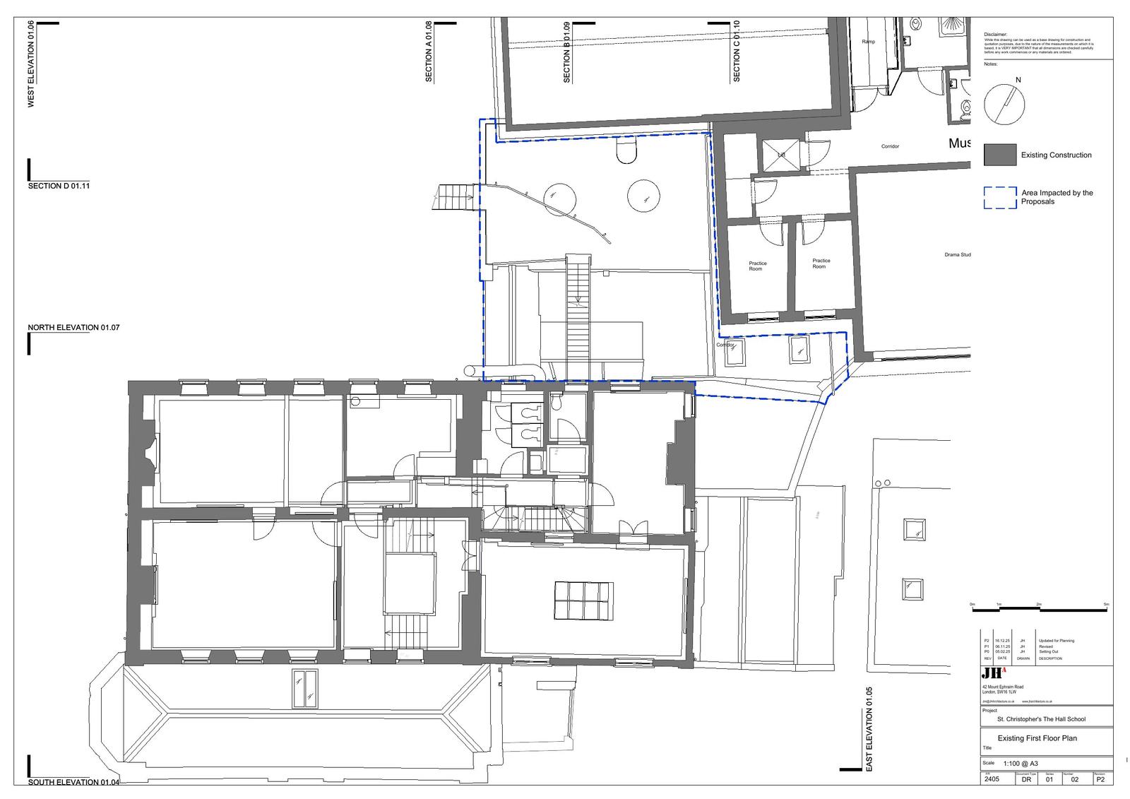
Reference 26/00307/FPA Received Date 27/1/2026 Application type Full planning permission Site address ST CHRISTOPHERS SCHOOL, 49 BROMLEY ROAD, BECKENHAM, BR3 5PA Description Demolition and replacement of the link corridor, and part demolition and replacement of school hall foyer (roof), WC's and stores to the rear of the Georgian Hall building. Addition of fire doors internally; removal of external fire escapes and kitchen extract duct; replacement of escape door externally with window to match existing to the Victorian extension to the east of the Georgian Hall building. Minor alterations to boiler room at ground floor (rear) within the Georgian Hall building. Status Valid Decision

Documents

Uncategorised
Archived · Original link
Uncategorised
Archived · Original link
Uncategorised
Archived · Original link
Uncategorised
Archived · Original link
Uncategorised
Archived · Original link
Uncategorised
Archived · Original link
Uncategorised
Archived · Original link
Uncategorised
Archived · Original link
Uncategorised
Archived · Original link
Uncategorised
Archived · Original link
Uncategorised
Archived · Original link
Uncategorised
Archived · Original link
Uncategorised
Archived · Original link
Uncategorised
Archived · Original link
Uncategorised
Archived · Original link
Uncategorised
Archived · Original link
Uncategorised
Archived · Original link
Uncategorised
Archived · Original link
Uncategorised
Archived · Original link
Uncategorised
Archived · Original link

Have your say

Your comment matters. Councils must consider every representation that raises material planning considerations.

Write a comment