← Bromley

Status

Pending House extension
Received
Not recorded
New homes
0

Full proposal

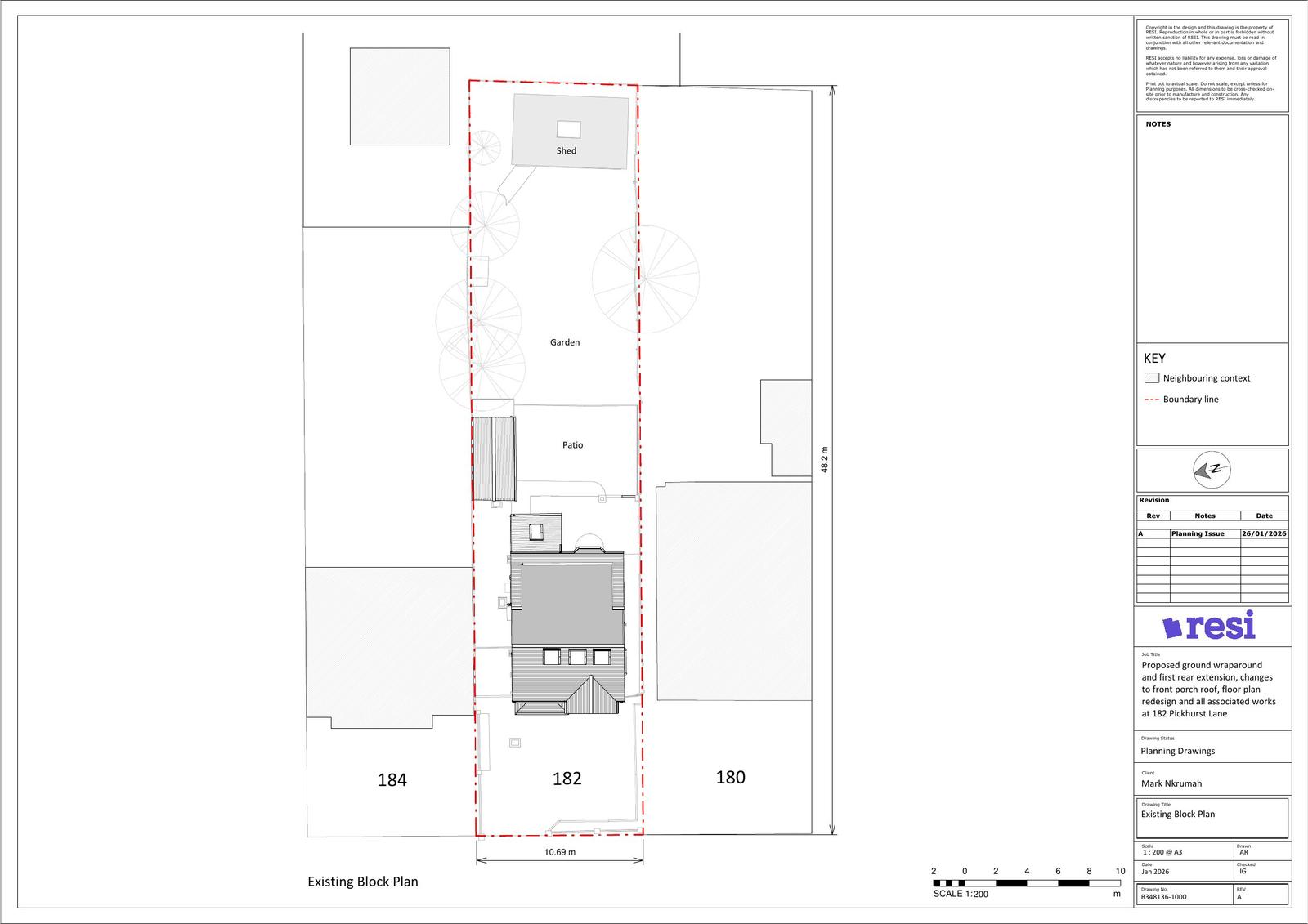
Reference 26/00331/HPA Received Date 29/1/2026 Application type Householder planning permission Site address 182 PICKHURST LANE, HAYES, BROMLEY, BR2 7JB Description Demolition of existing rear lean-to and construction of single storey side/rear wraparound extension with extended patio and privacy screen, first floor rear extension, changes to front porch roof, elevational alterations. Status Valid Decision

Documents

Uncategorised
Archived · Original link
Uncategorised
Archived · Original link
Uncategorised
Archived · Original link
Uncategorised
Archived · Original link
Uncategorised
Archived · Original link
Uncategorised
Archived · Original link
Uncategorised
Archived · Original link
Uncategorised
Archived · Original link

Have your say

Your comment matters. Councils must consider every representation that raises material planning considerations.

Write a comment