← Bromley

Status

Pending House extension
Received
Not recorded
New homes
0

Full proposal

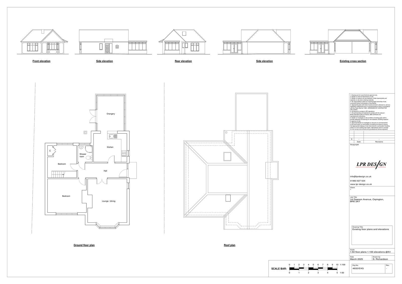
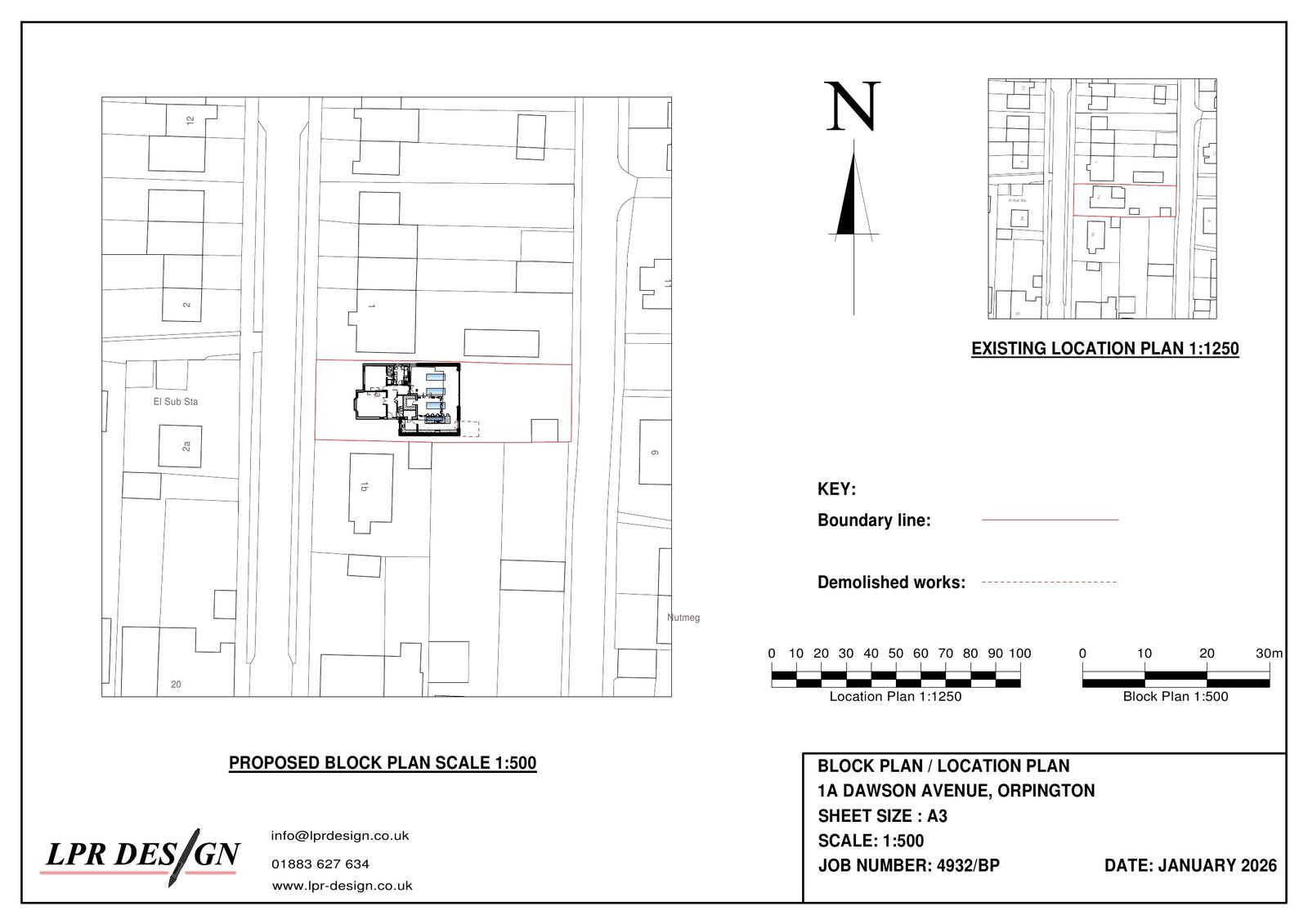
Reference 26/00333/HPA Received Date 29/1/2026 Application type Householder planning permission Site address 1A DAWSON AVENUE, ORPINGTON, BR5 3AY Description Proposed single storey rear/side extensions and first floor extension to form a two-storey dwelling with elevational alterations. Status Valid Decision

Documents

Uncategorised
Archived · Original link
Uncategorised
Archived · Original link
Uncategorised
Archived · Original link
Uncategorised
Archived · Original link
Uncategorised
Archived · Original link
Uncategorised
Archived · Original link
Uncategorised
Archived · Original link

Have your say

Your comment matters. Councils must consider every representation that raises material planning considerations.

Write a comment