← Bromley

Status

Pending House extension
Received
Not recorded
New homes
0

Full proposal

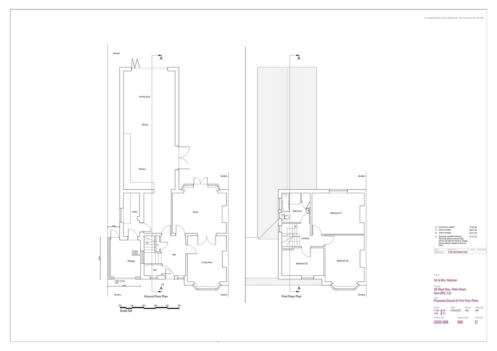
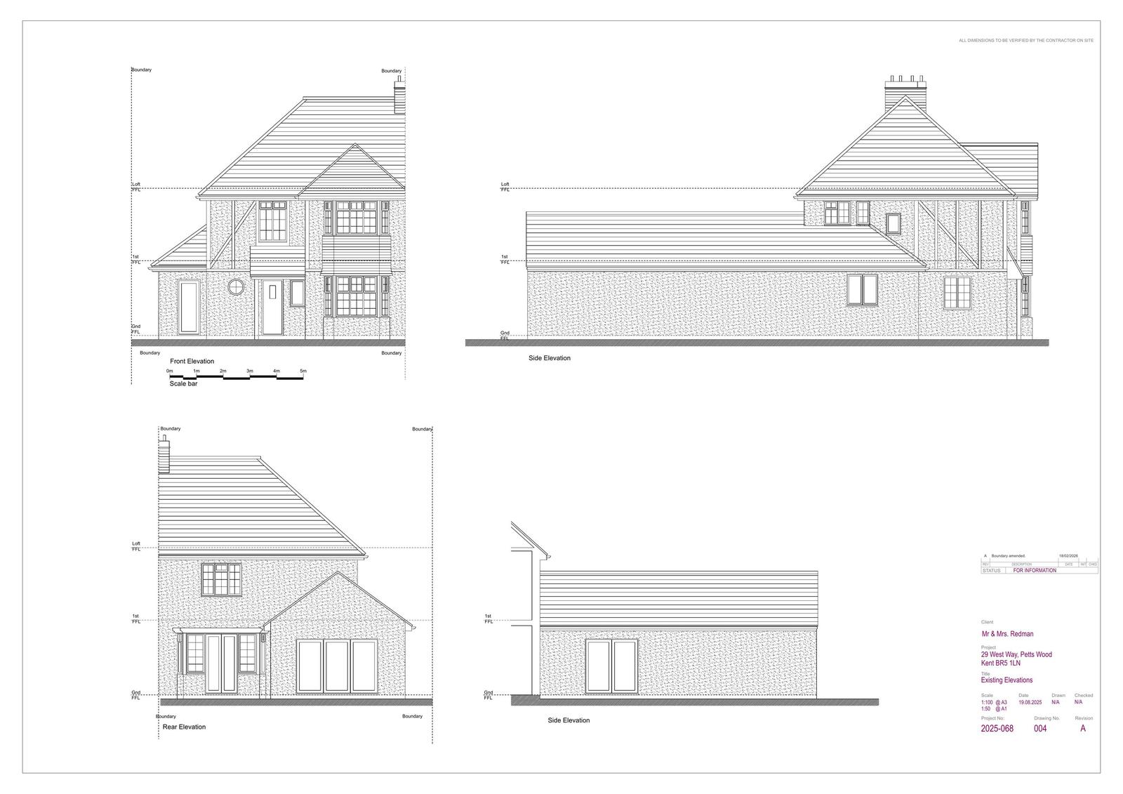
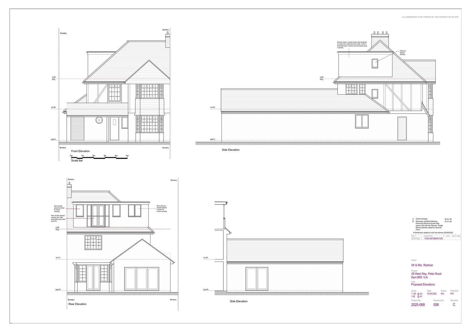
Reference 26/00334/HPA Received Date 29/1/2026 Application type Householder planning permission Site address 29 WEST WAY, PETTS WOOD, ORPINGTON, BR5 1LN Description Removal of side/front gate/fencing. Construction of a single storey side extension with front canopy extension. Loft conversion with side/rear L shape dormer incorporating a rear juliet balcony. Status Valid Decision

Documents

Uncategorised
Archived · Original link
Uncategorised
Archived · Original link
Uncategorised
Archived · Original link
Uncategorised
Archived · Original link
Uncategorised
Archived · Original link
Uncategorised
Archived · Original link
Uncategorised
Archived · Original link
Uncategorised
Archived · Original link
Uncategorised
Archived · Original link
Uncategorised
Archived · Original link

Have your say

Your comment matters. Councils must consider every representation that raises material planning considerations.

Write a comment