← Bromley

Status

Pending House extension
Received
Not recorded
New homes
0

Full proposal

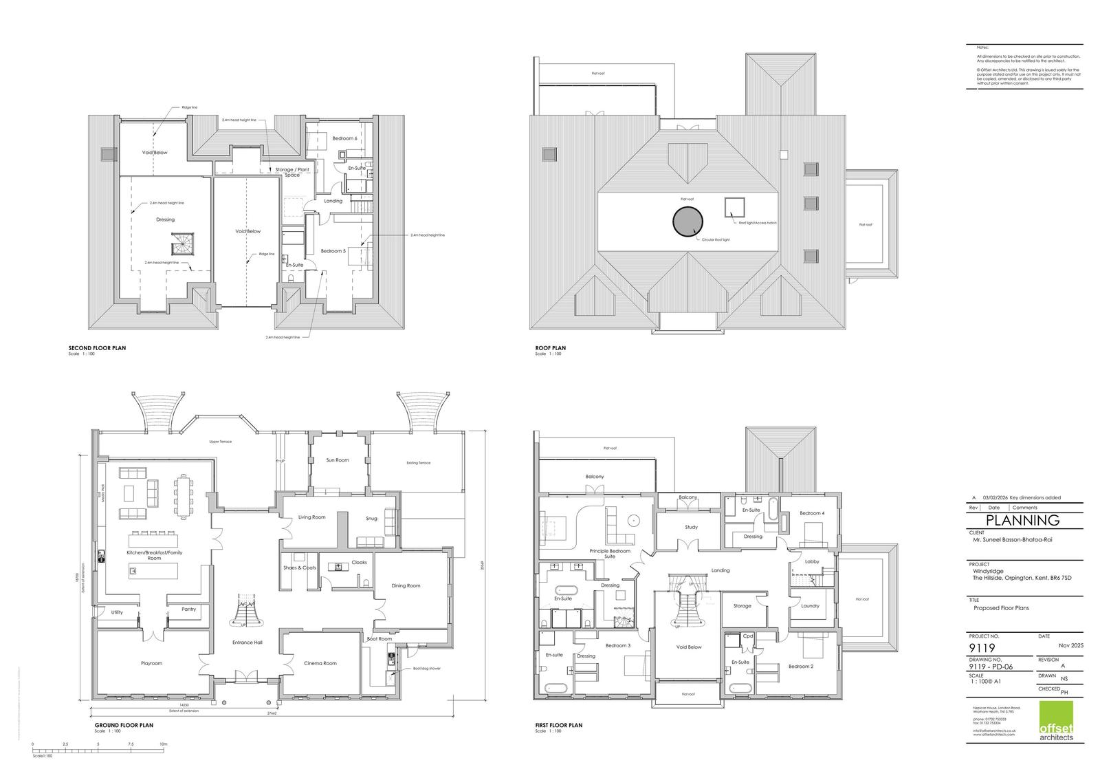
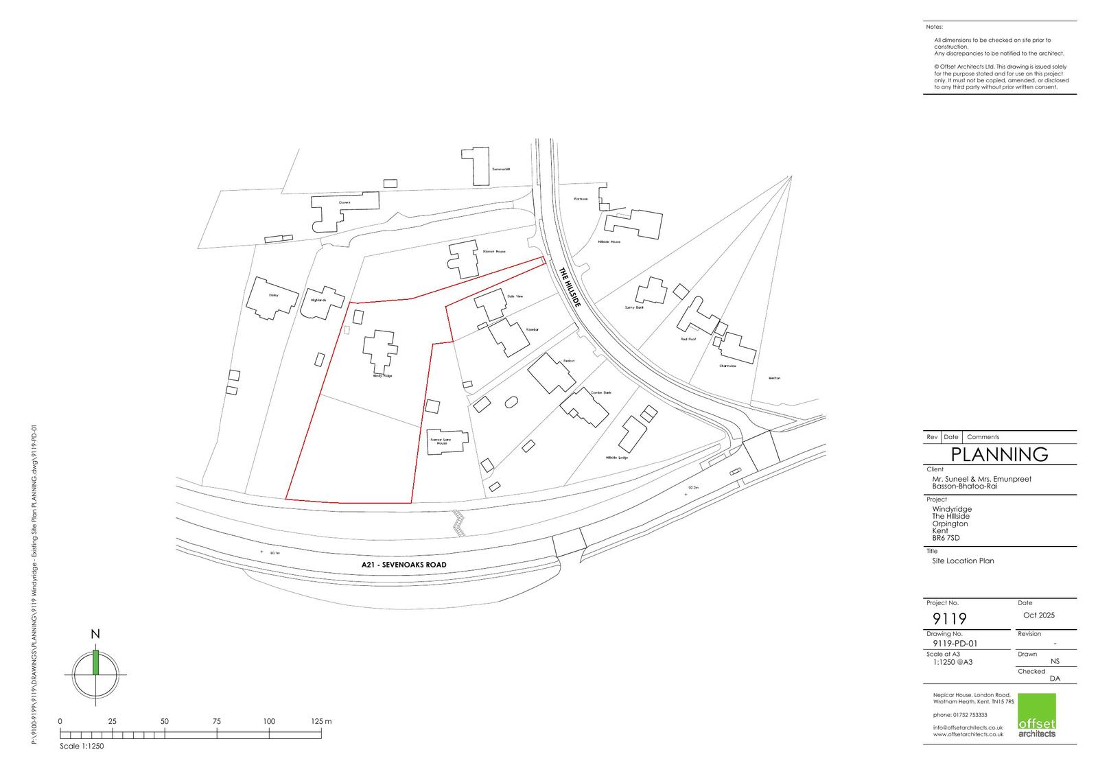
Reference 26/00340/HPA Received Date 29/1/2026 Application type Householder planning permission Site address WINDY RIDGE, THE HILLSIDE, ORPINGTON, BR6 7SD Description 2 storey side extension, comprising new roof over entire building with gables/dormers to front and back and rooflights to sides, elevational alterations, external landscaping works including extended garden terrace and steps. Status Valid Decision

Documents

Uncategorised
Archived · Original link
Uncategorised
Archived · Original link
Uncategorised
Archived · Original link
Uncategorised
Archived · Original link
Uncategorised
Archived · Original link
Uncategorised
Archived · Original link
Uncategorised
Archived · Original link
Uncategorised
Archived · Original link
Uncategorised
Archived · Original link
Uncategorised
Archived · Original link

Have your say

Your comment matters. Councils must consider every representation that raises material planning considerations.

Write a comment