← Bromley

Status

Pending House extension
Received
Not recorded
New homes
0

Full proposal

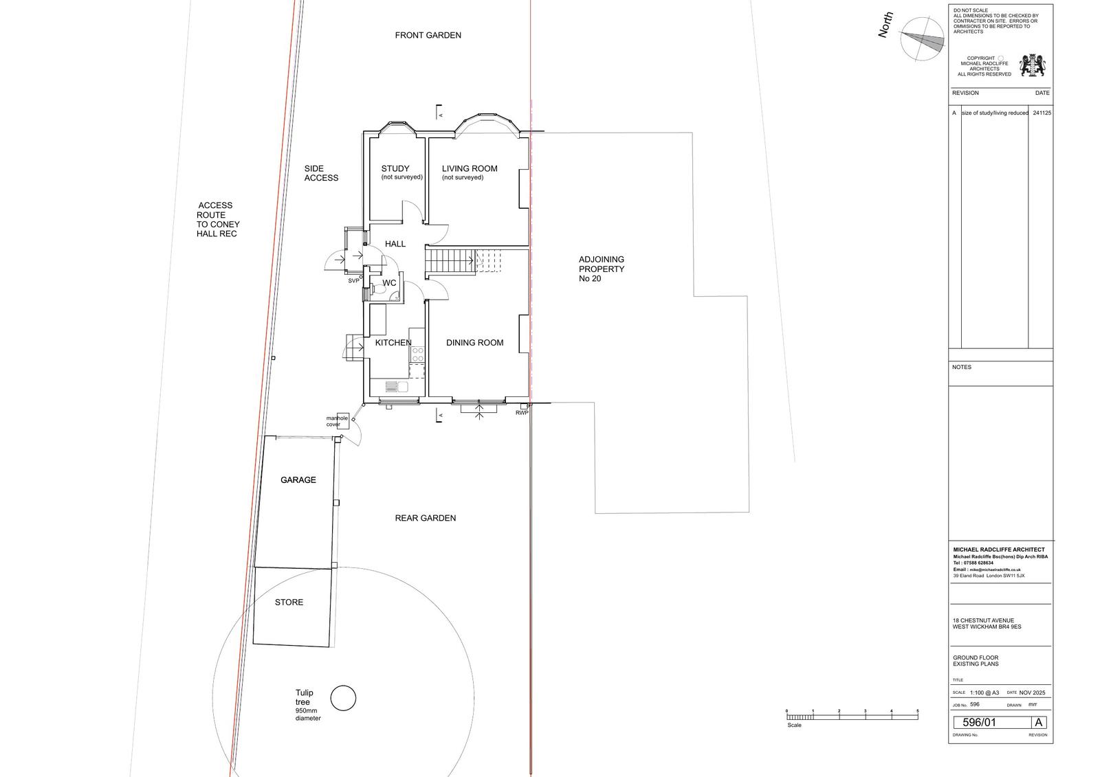
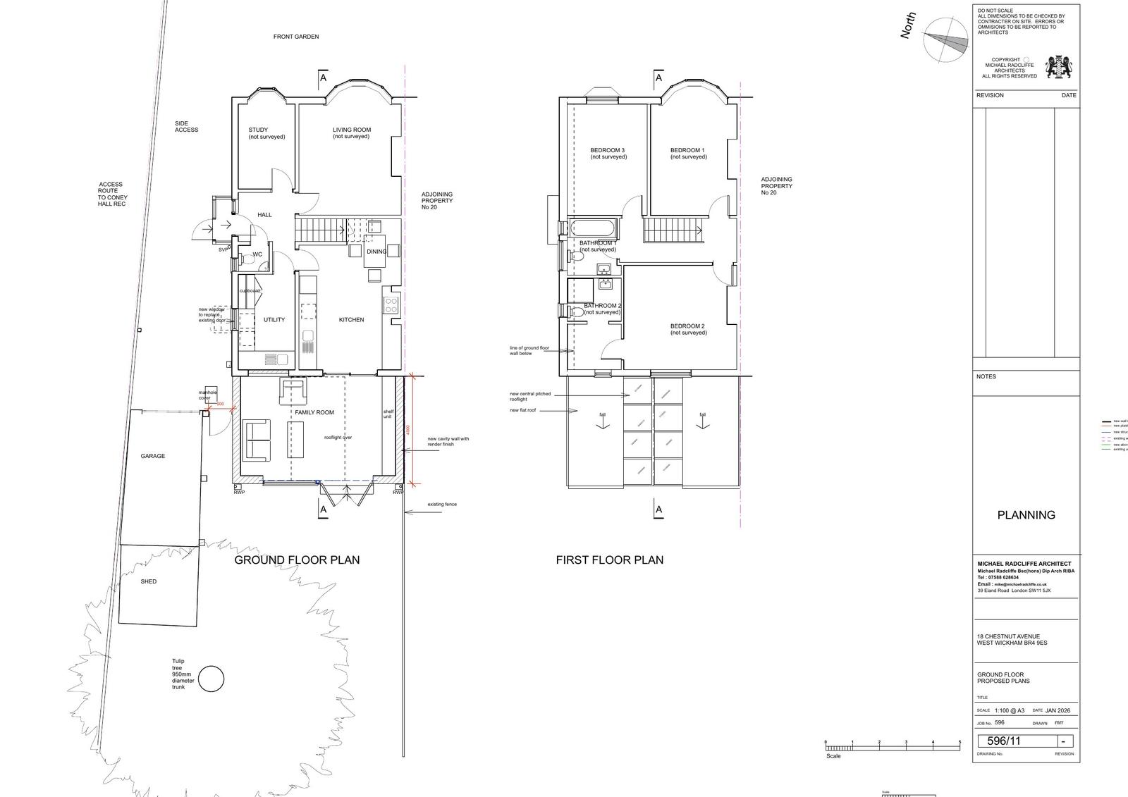
Reference 26/00360/NOT Received Date 02/2/2026 Application type Prior approval Part 1 Class A.1(ea): Larger home extension Site address 18 CHESTNUT AVENUE, WEST WICKHAM, BR4 9ES Description Single storey rear extension, extending beyond the rear wall of the original house by 4.00m, for which the maximum height would be 3.90m, and for which the height of the eaves would be 3.10m (42 Day Notification for Householder Permitted Development Prior Approval) Status Decision Made Decision PRIOR APPROVAL IS NOT REQUIRED

Documents

Uncategorised
Archived · Original link
Uncategorised
Archived · Original link
Uncategorised
Archived · Original link
Uncategorised
Archived · Original link
Uncategorised
Archived · Original link
Uncategorised
Archived · Original link

Have your say

Your comment matters. Councils must consider every representation that raises material planning considerations.

Write a comment