← Bromley

Status

Pending House extension
Received
Not recorded
New homes
0

Full proposal

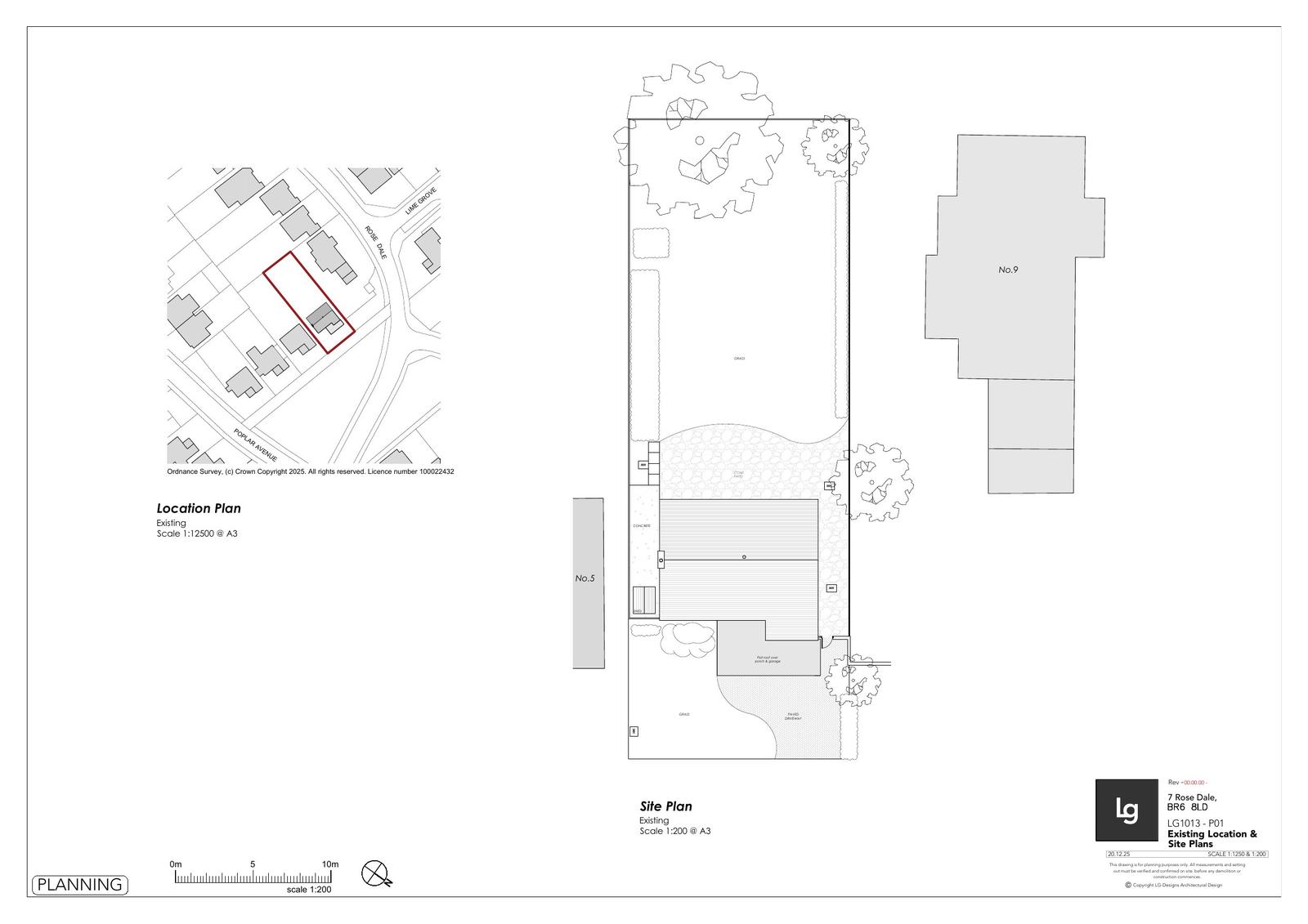
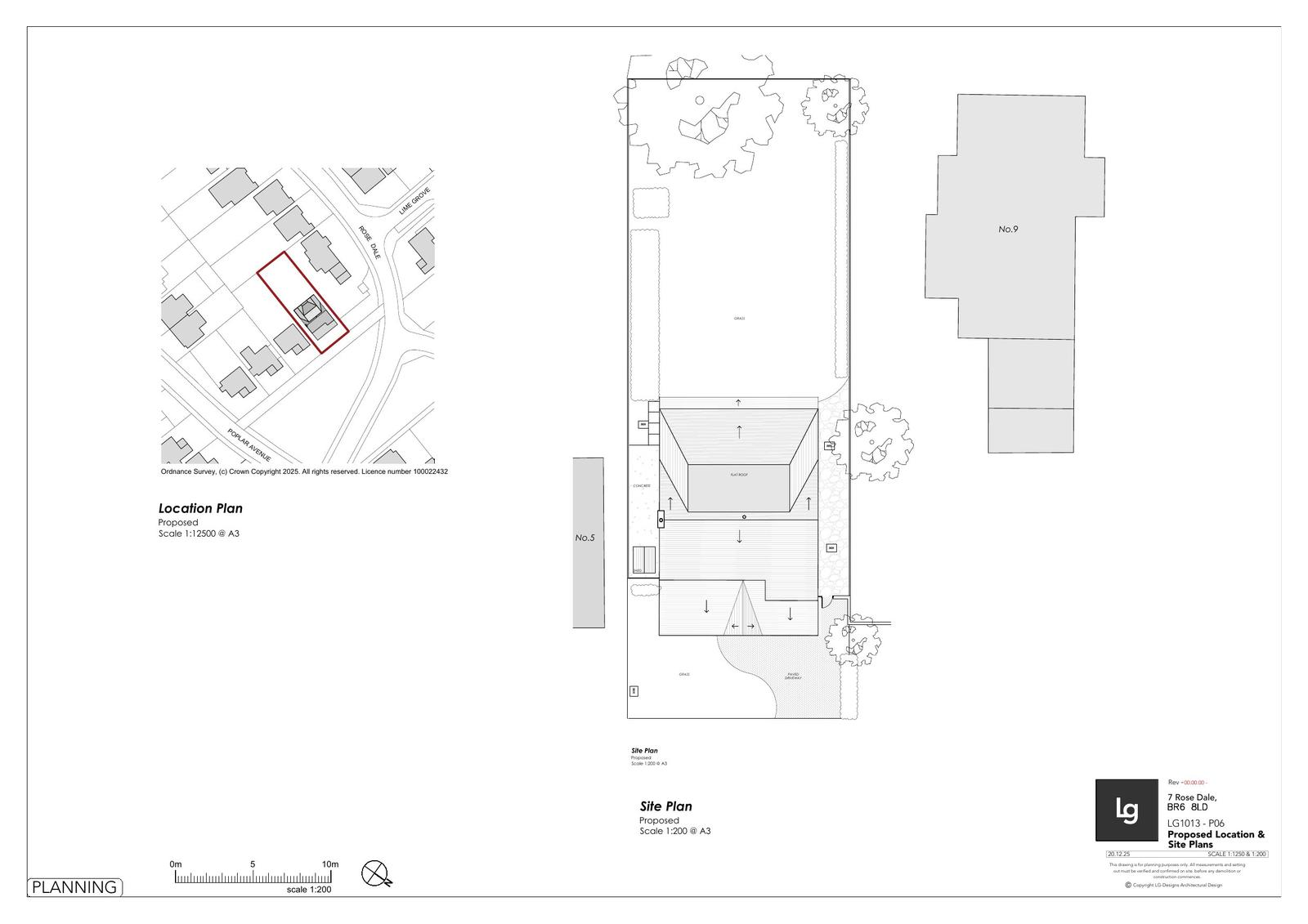
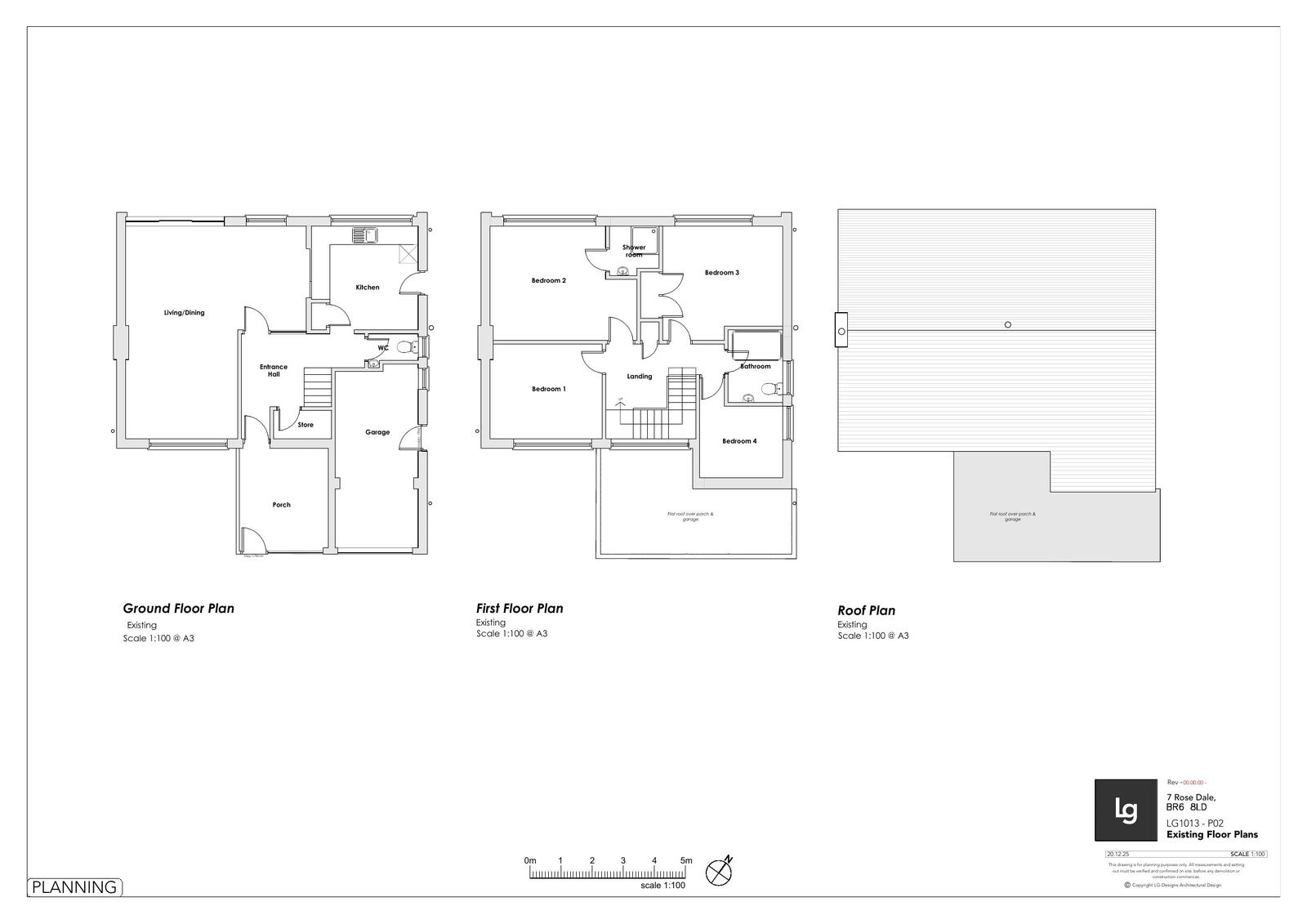
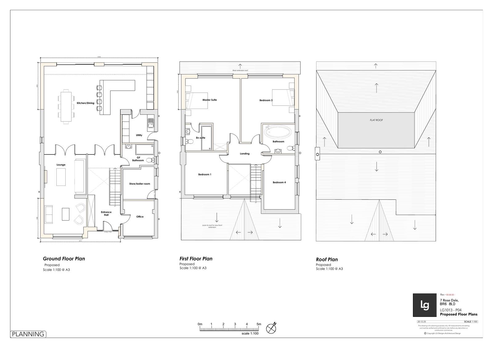
Reference 26/00400/HPA Received Date 03/2/2026 Application type Householder planning permission Site address 7 ROSE DALE, ORPINGTON, BR6 8LD Description Single storey front extension incorporating porch alterations, garage conversion, and pitched roof. Part one/two storey rear extension with rear roof alterations from flat to pitched and elevational alterations including addition of rooflight to rear. Status Valid Decision

Documents

Uncategorised
Archived · Original link
Uncategorised
Archived · Original link
Uncategorised
Archived · Original link
Uncategorised
Archived · Original link
Uncategorised
Archived · Original link
Uncategorised
Archived · Original link
Uncategorised
Archived · Original link
Uncategorised
Archived · Original link

Have your say

Your comment matters. Councils must consider every representation that raises material planning considerations.

Write a comment