← Bromley

Status

Pending House extension
Received
Not recorded
New homes
0

Full proposal

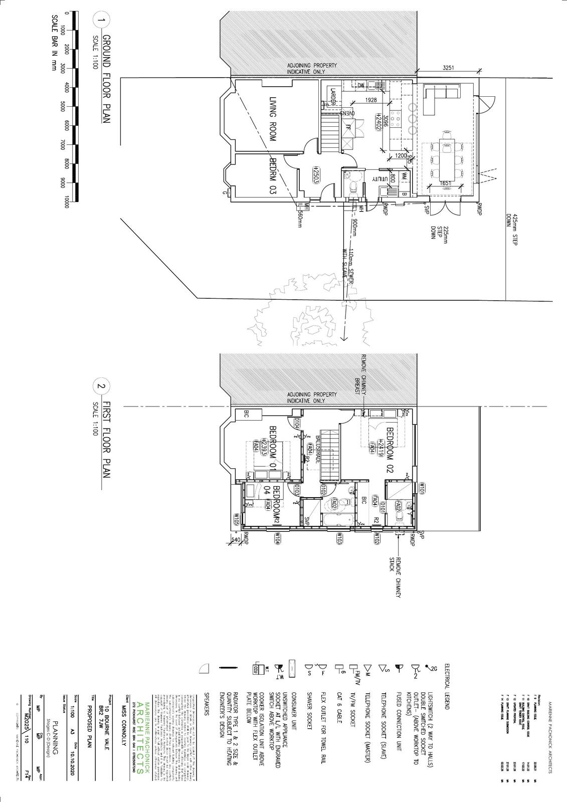
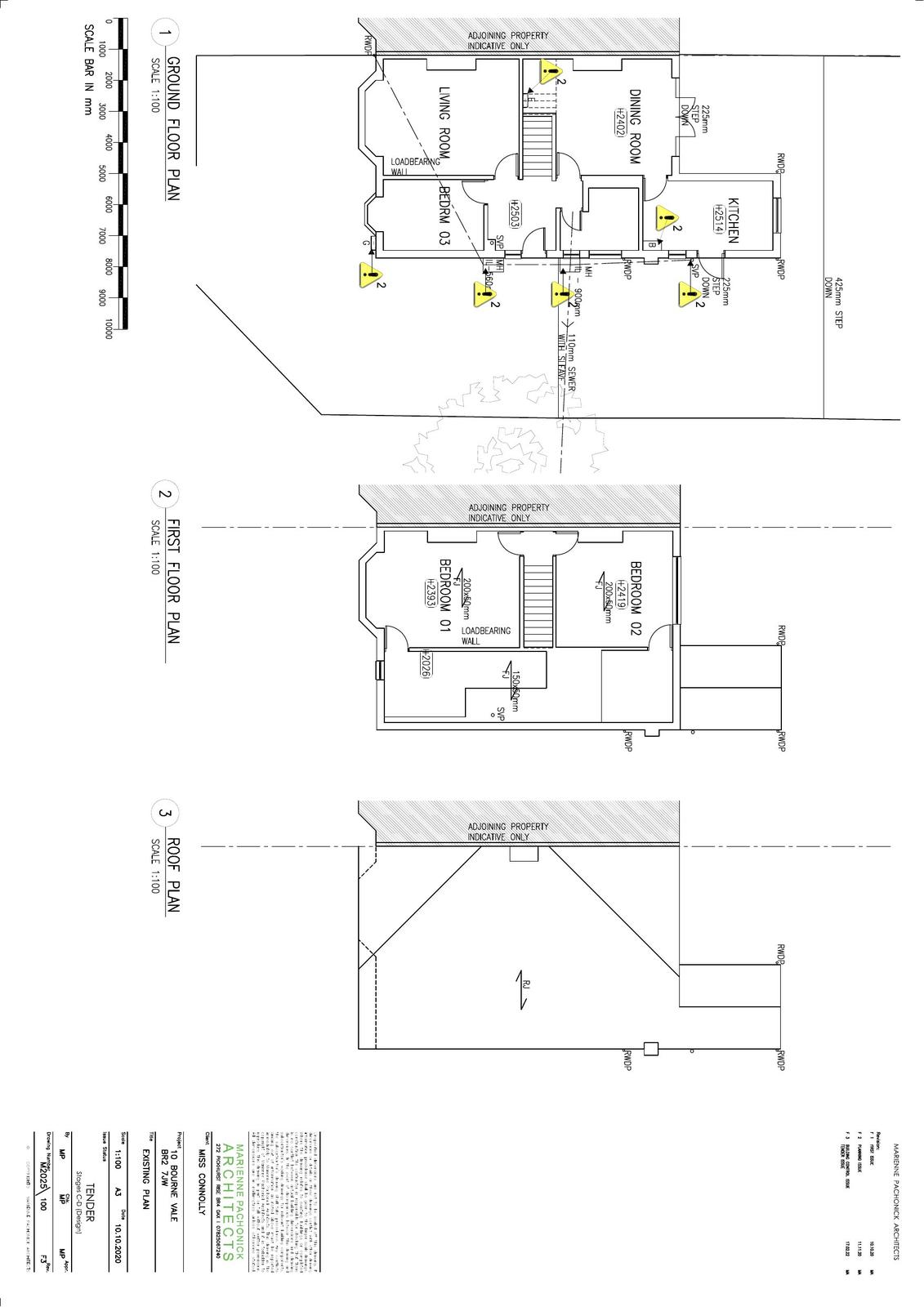
Reference 26/00404/HPA Received Date 03/2/2026 Application type Householder planning permission Site address 10 BOURNE VALE, HAYES, BROMLEY, BR2 7JW Description Demolition of existing rear extension and side chimney. Ground floor rear extension, first floor side extension and elevational alterations Status Valid Decision

Documents

Uncategorised
Archived · Original link
Uncategorised
Archived · Original link
Uncategorised
Archived · Original link
Uncategorised
Archived · Original link
Uncategorised
Archived · Original link
Uncategorised
Archived · Original link
Uncategorised
Archived · Original link
Uncategorised
Archived · Original link
Uncategorised
Archived · Original link
Uncategorised
Archived · Original link

Have your say

Your comment matters. Councils must consider every representation that raises material planning considerations.

Write a comment