26/00416/FPA
Bromley
Status
Pending
New housing
Received
Not recorded
New homes
1
Full proposal
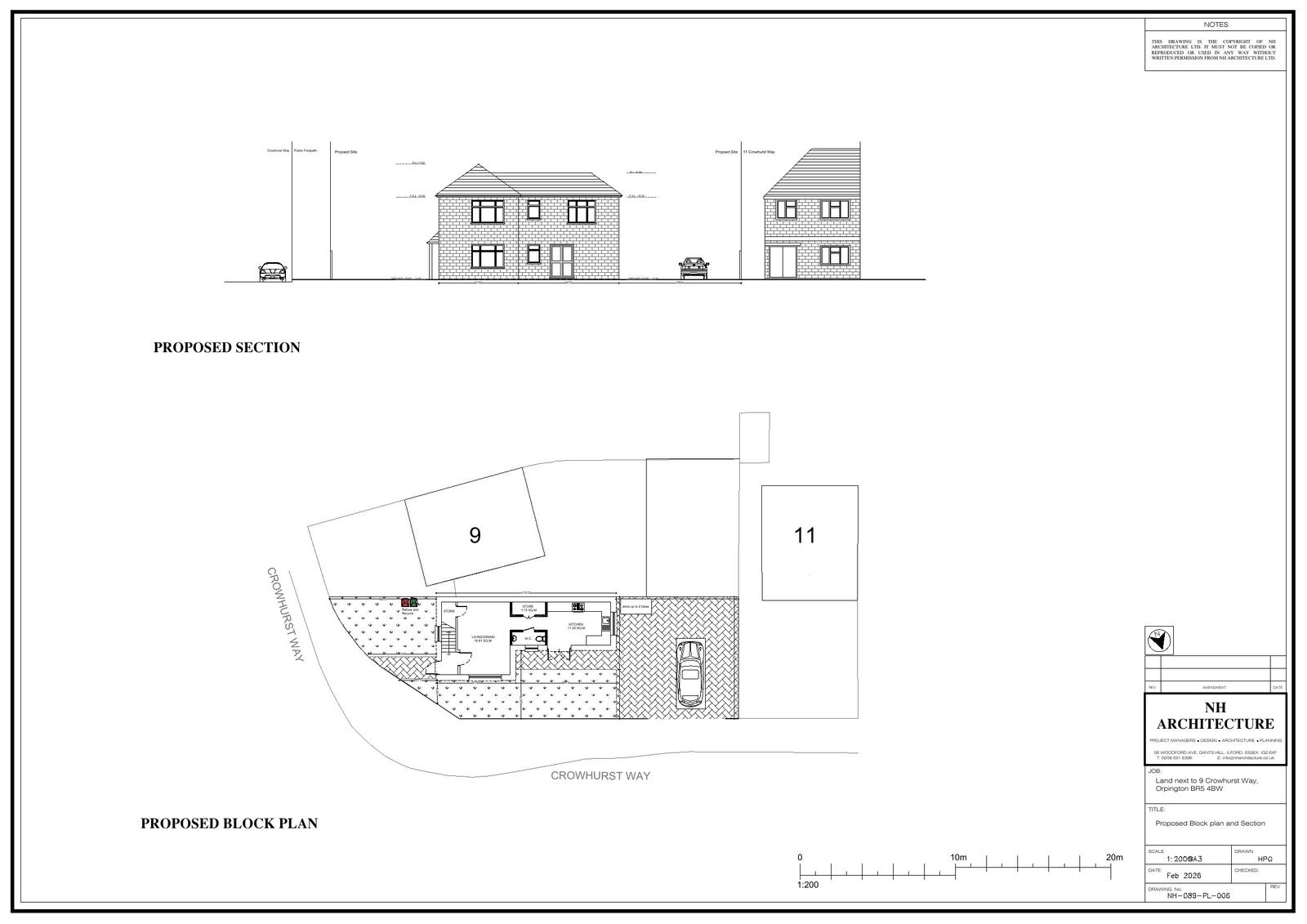
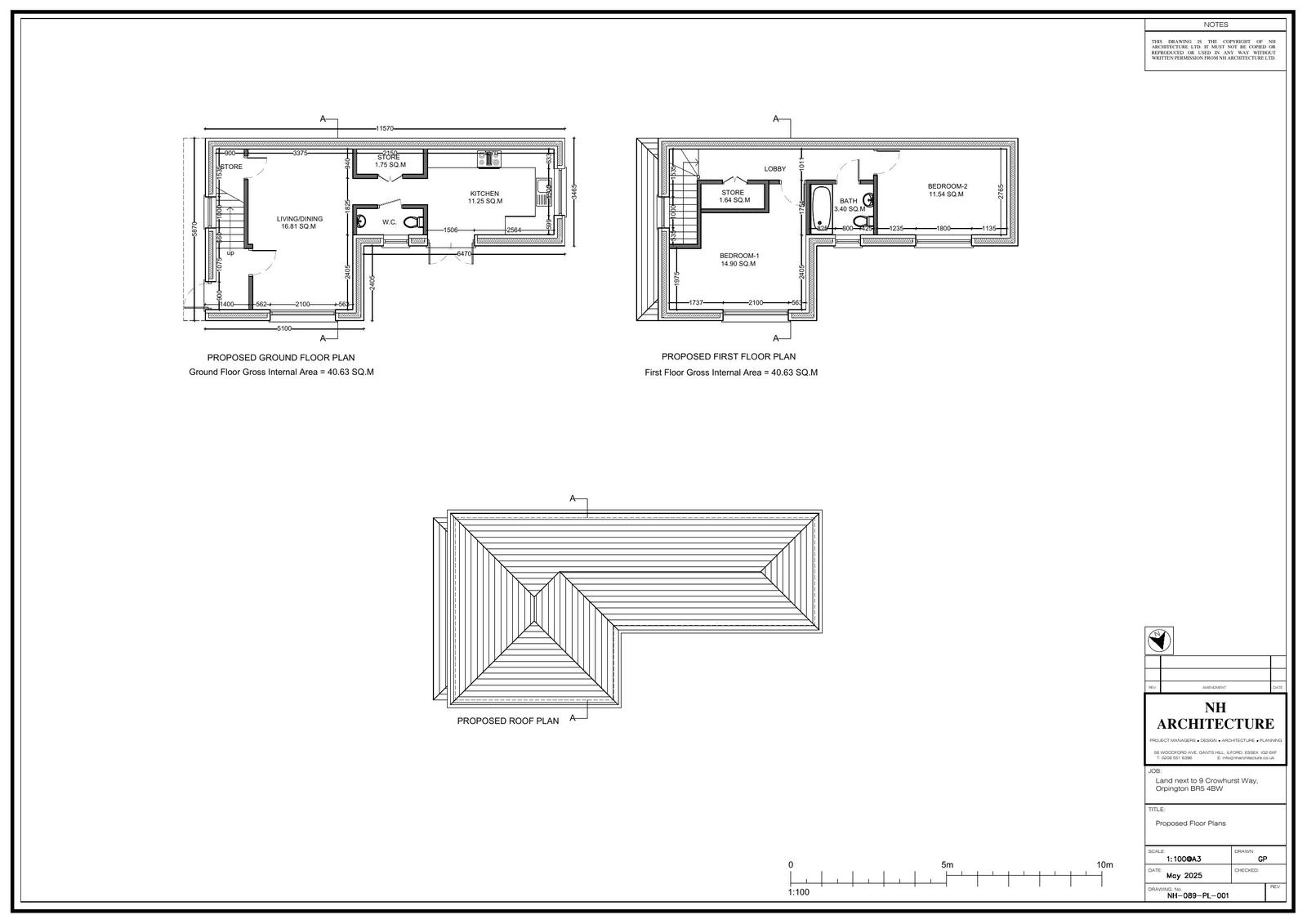
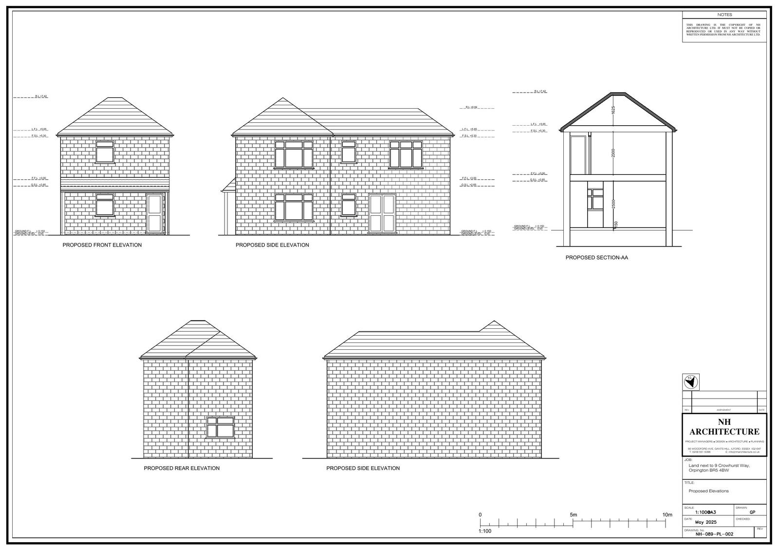
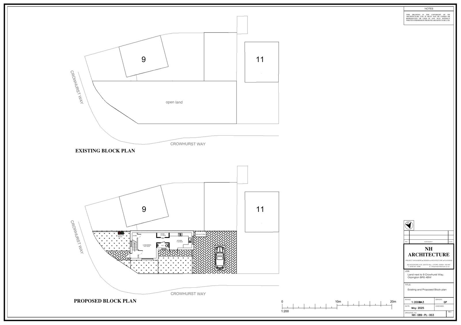
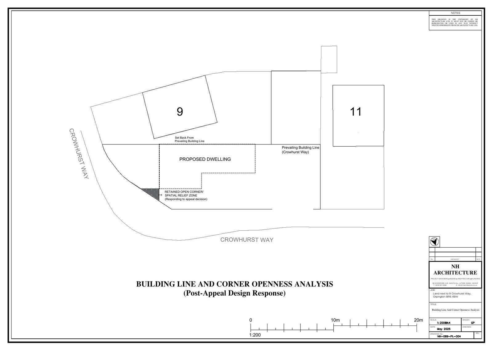
Reference 26/00416/FPA Received Date 03/2/2026 Application type Full planning permission Site address LAND ADJACENT TO 9, CROWHURST WAY, ORPINGTON Description Erection of detached two storey 2 bedroom dwelling with associated car parking, cycle storage and refuse storage Status Valid Decision
Documents
Have your say
Your comment matters. Councils must consider every representation that raises material planning considerations.