← Bromley

Status

Pending New housing
Received
Not recorded
New homes
1

Full proposal

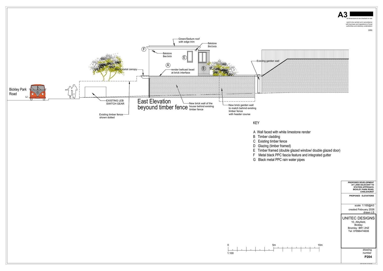
Reference 26/00423/FPA Received Date 04/2/2026 Application type Full planning permission Site address Land adjacent to Station Approach, , Bickley Park Road,, Kent, , BR1 2AP Description Erection of a part one/ two-storey self-contained 3 bed dwelling (Use Class C3) with green roof and solar panels; associated landscaping, refuse and cycle storage amenities. Status Valid Decision

Documents

Uncategorised
Archived · Original link
Uncategorised
Archived · Original link
Uncategorised
Archived · Original link
Uncategorised
Archived · Original link
Uncategorised
Archived · Original link
Uncategorised
Archived · Original link
Uncategorised
Archived · Original link
Uncategorised
Archived · Original link
Uncategorised
Archived · Original link
Uncategorised
Archived · Original link
Uncategorised
Archived · Original link
Uncategorised
Archived · Original link
Uncategorised
Archived · Original link
Uncategorised
Archived · Original link
Uncategorised
Archived · Original link
Uncategorised
Archived · Original link
Uncategorised
Archived · Original link
Uncategorised
Archived · Original link
Uncategorised
Archived · Original link
Uncategorised
Archived · Original link

Have your say

Your comment matters. Councils must consider every representation that raises material planning considerations.

Write a comment