← Bromley

Status

Pending House extension
Received
Not recorded
New homes
0

Full proposal

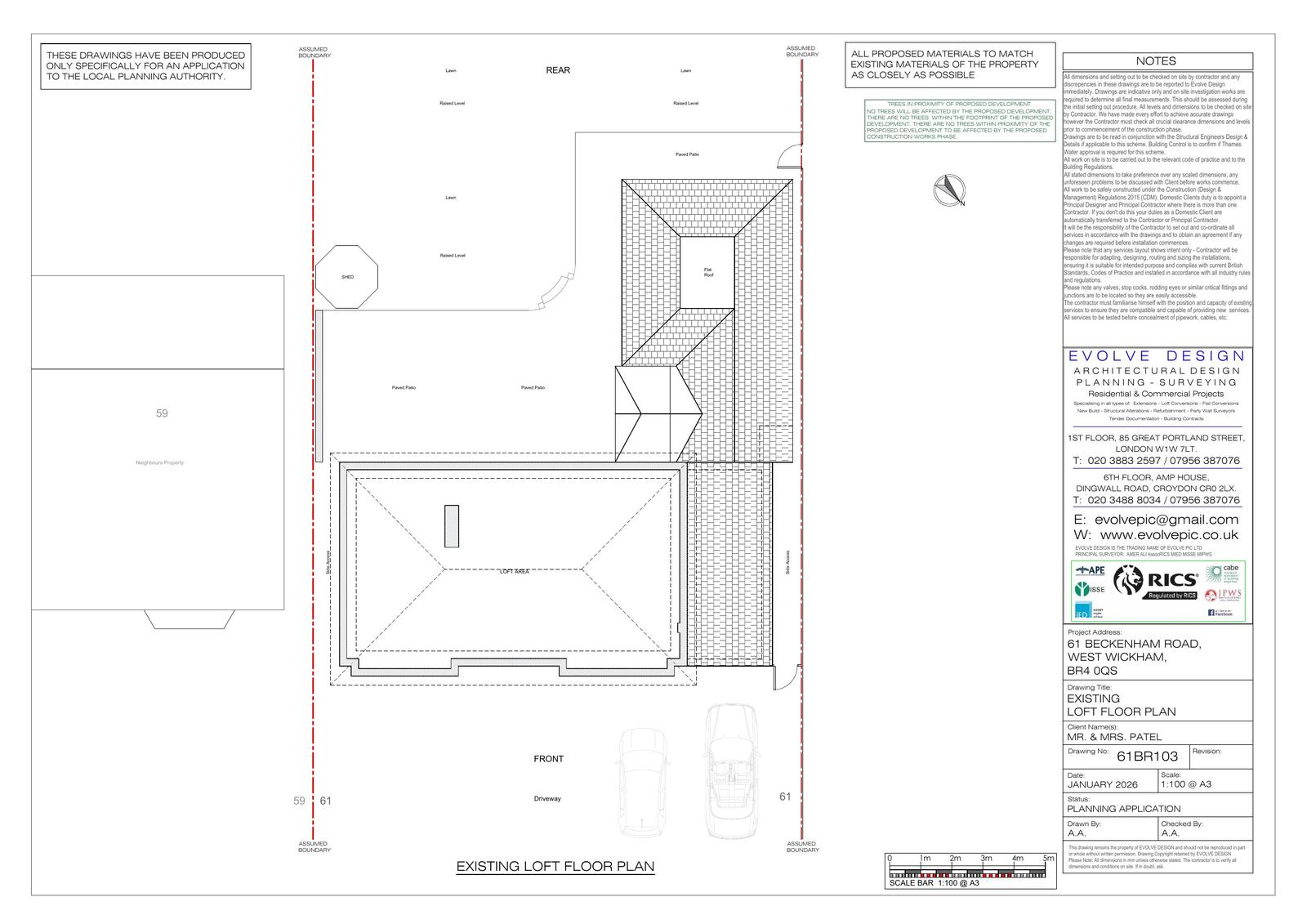
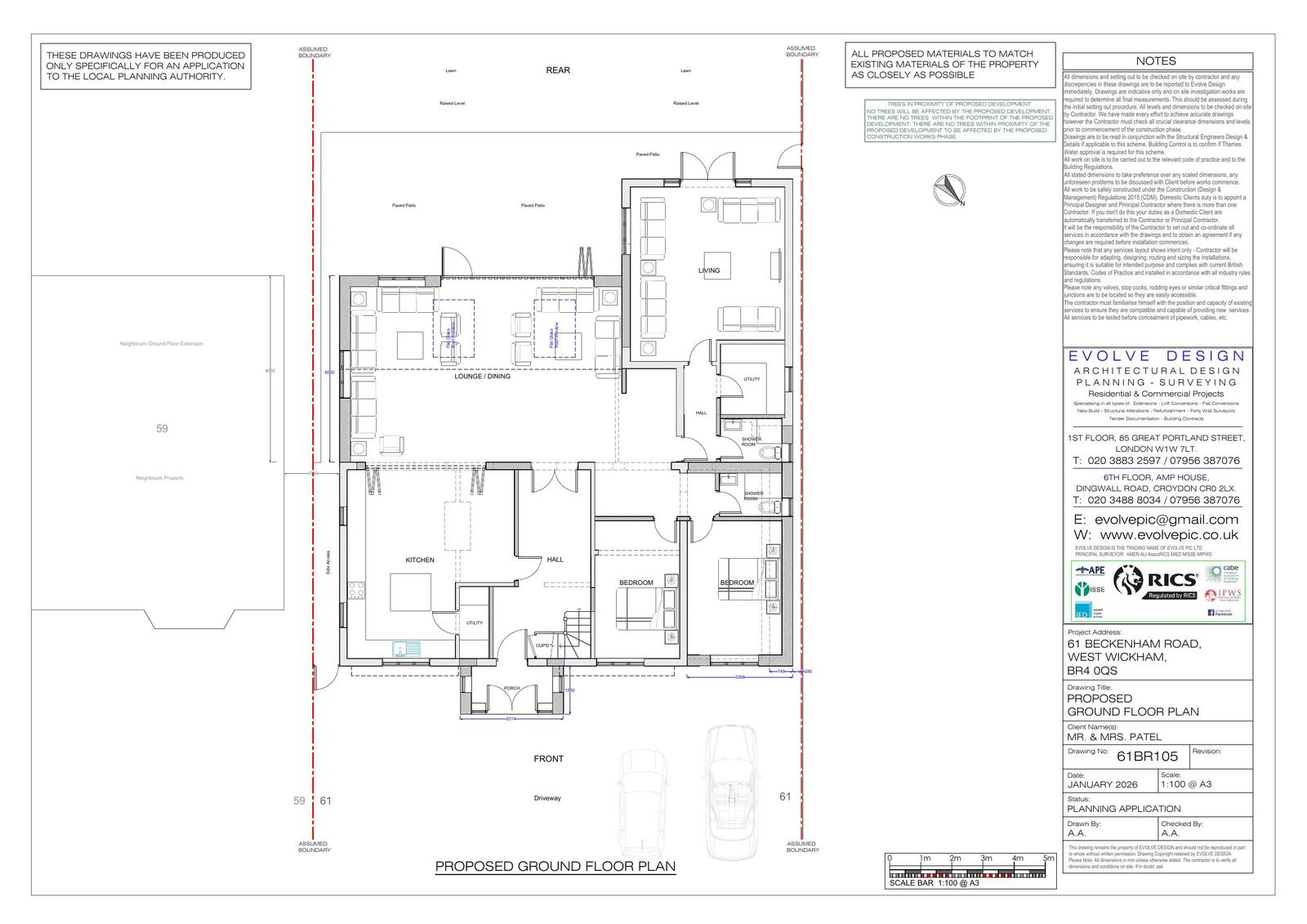
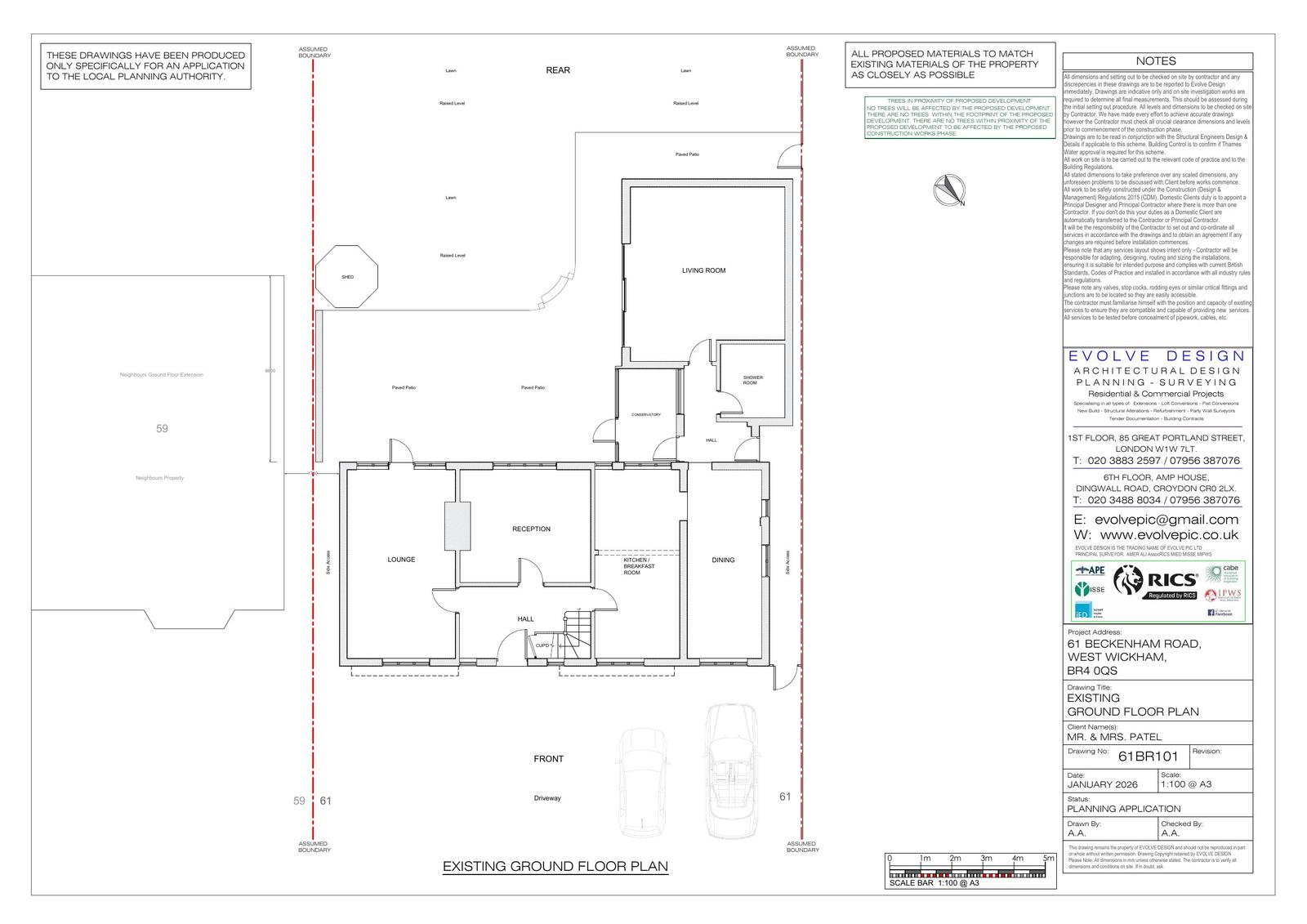
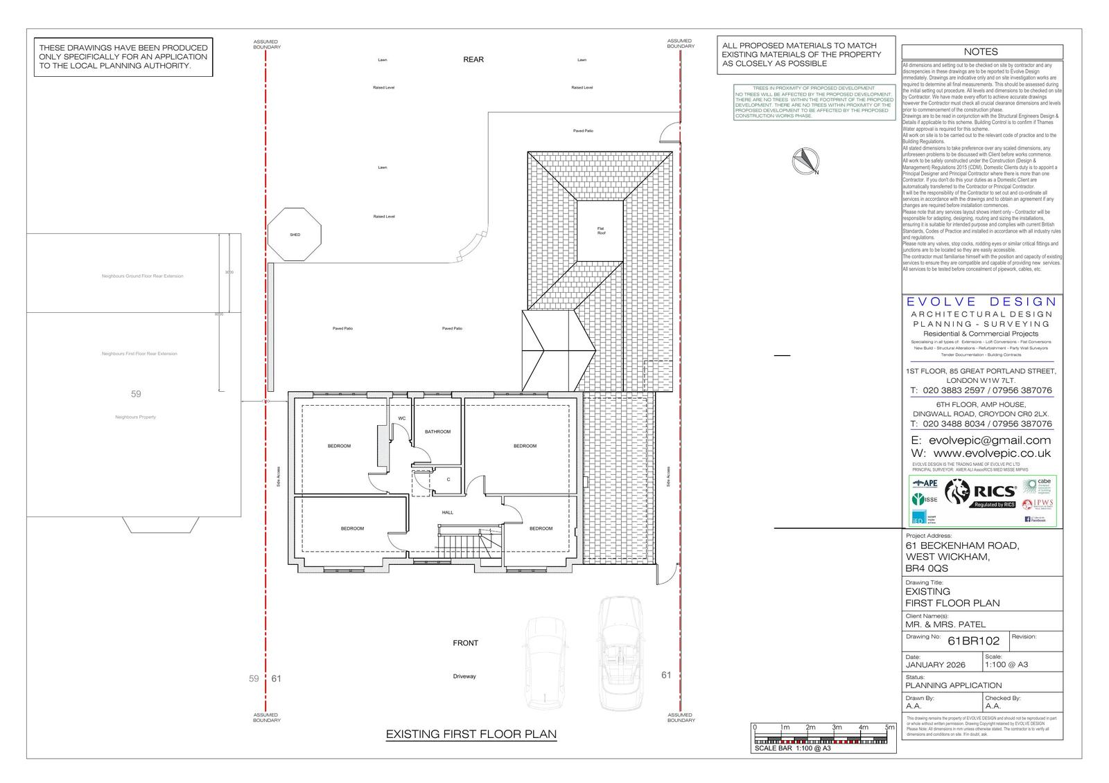
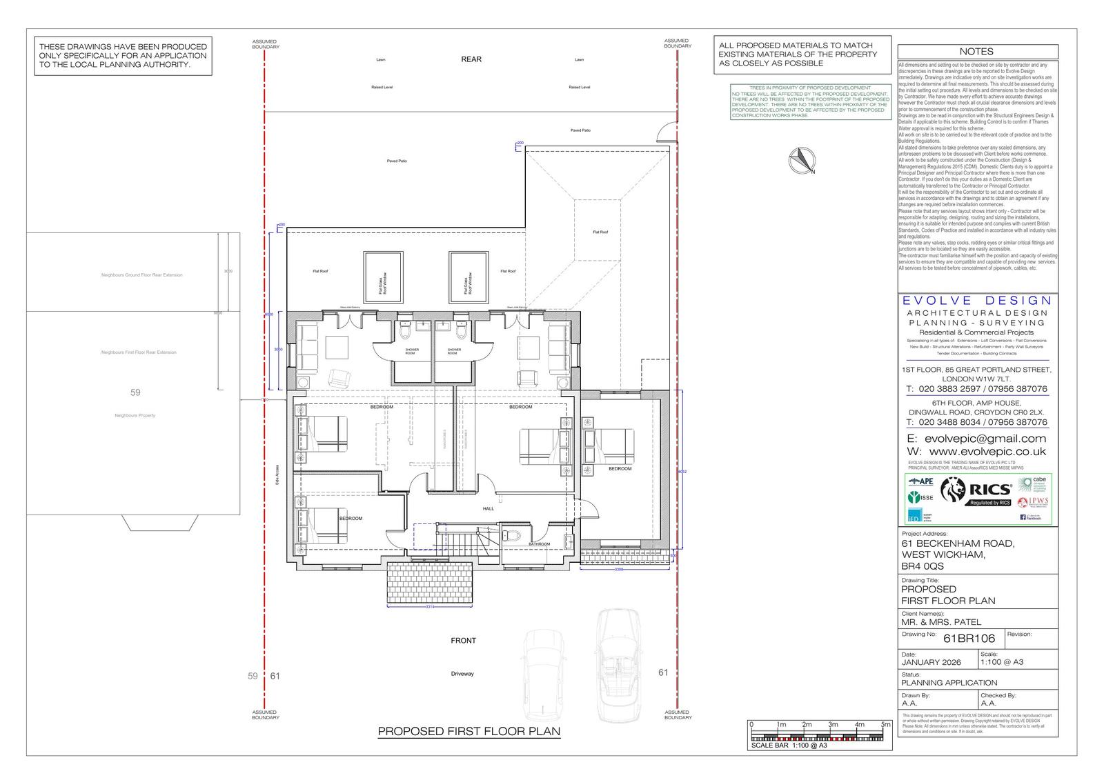
Reference 26/00441/HPA Received Date 04/2/2026 Application type Householder planning permission Site address 61 BECKENHAM ROAD, WEST WICKHAM, BR4 0QS Description Demolition of chimney, construction of part one/two storey rear extension, two storey side extension, single storey front porch extension, roof alterations and elevational alterations. Status Valid Decision

Documents

Uncategorised
Archived · Original link
Uncategorised
Archived · Original link
Uncategorised
Archived · Original link
Uncategorised
Archived · Original link
Uncategorised
Archived · Original link
Uncategorised
Archived · Original link
Uncategorised
Archived · Original link
Uncategorised
Archived · Original link
Uncategorised
Archived · Original link
Uncategorised
Archived · Original link
Uncategorised
Archived · Original link
Uncategorised
Archived · Original link
Uncategorised
Archived · Original link
Uncategorised
Archived · Original link
Uncategorised
Archived · Original link
Uncategorised
Archived · Original link
Uncategorised
Archived · Original link

Have your say

Your comment matters. Councils must consider every representation that raises material planning considerations.

Write a comment