← Bromley

Status

Pending House extension
Received
Not recorded
New homes
0

Full proposal

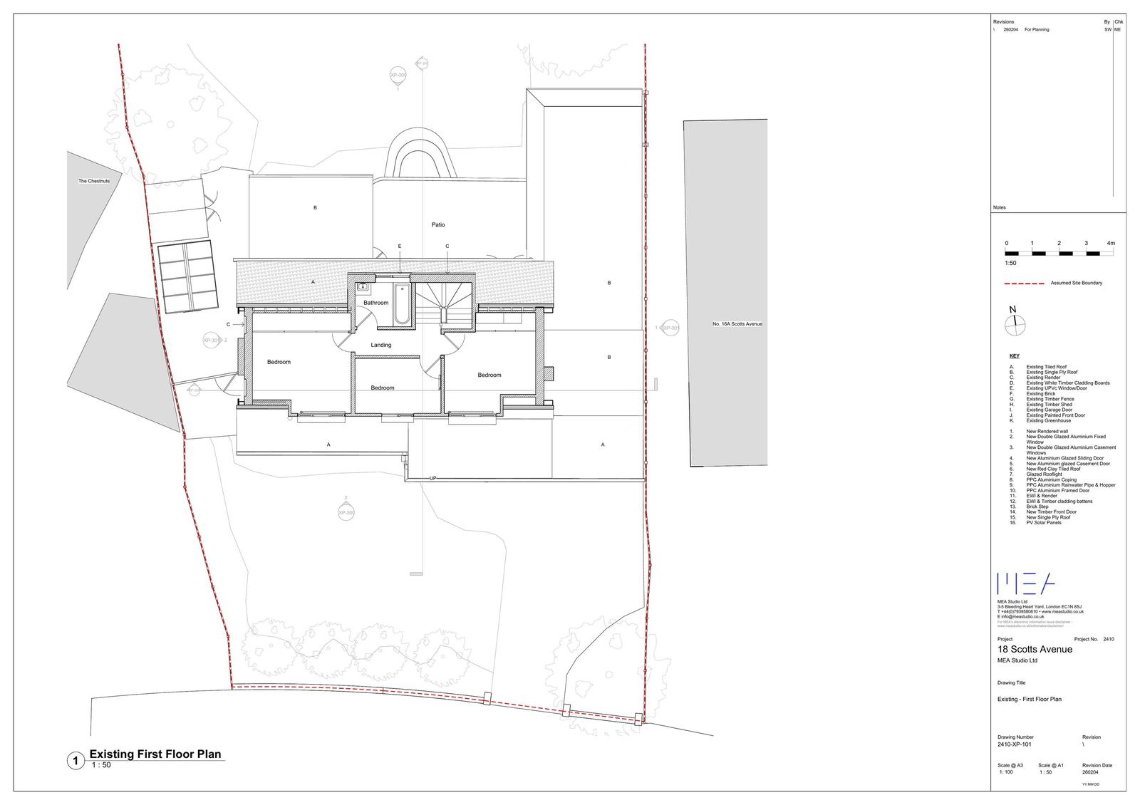
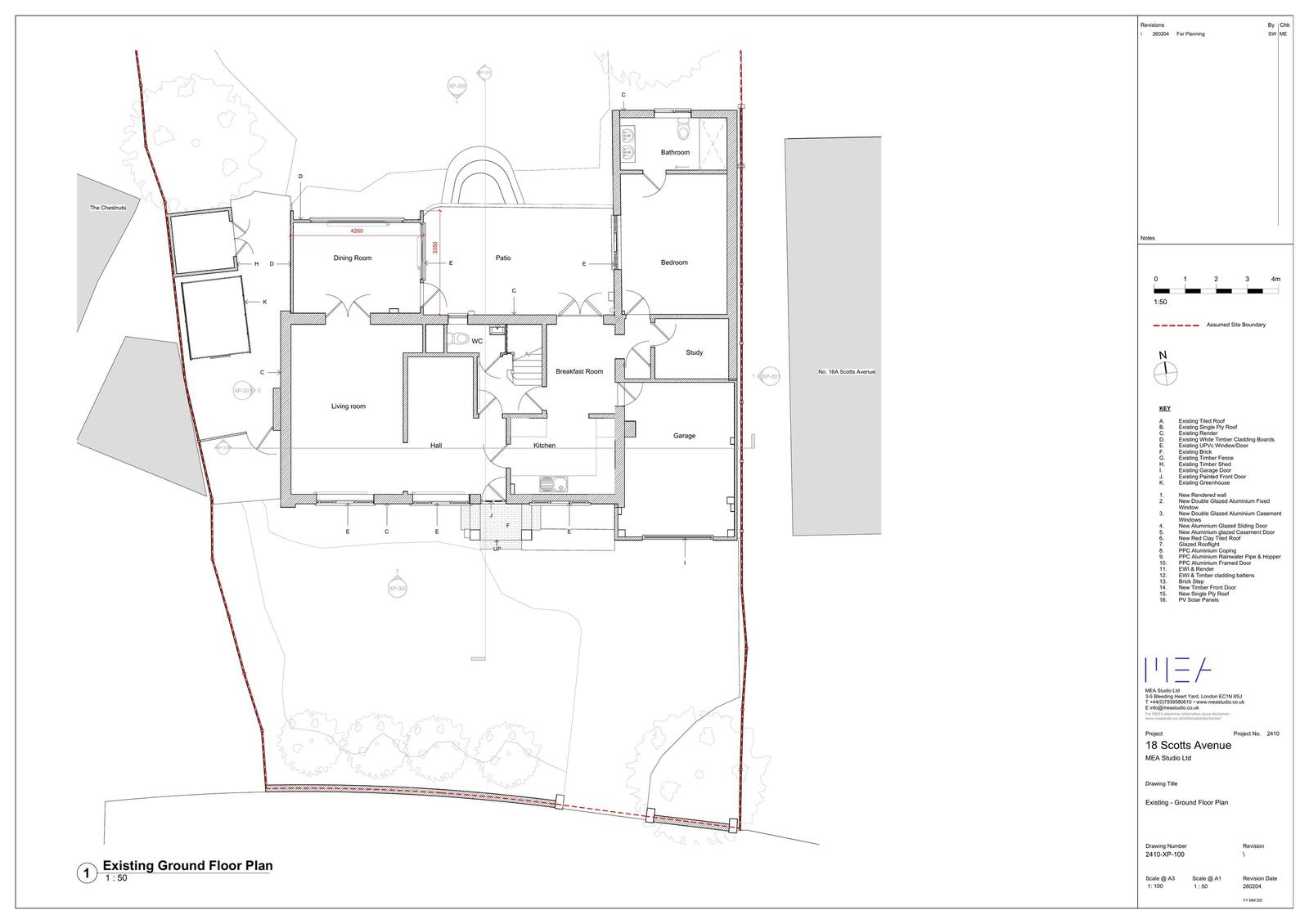
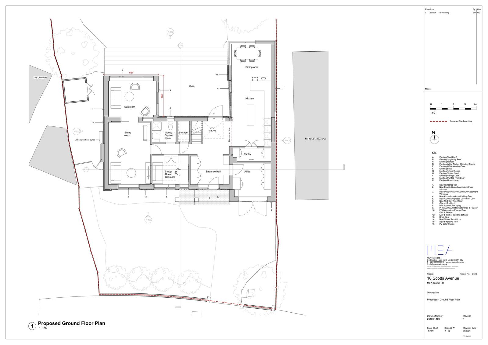
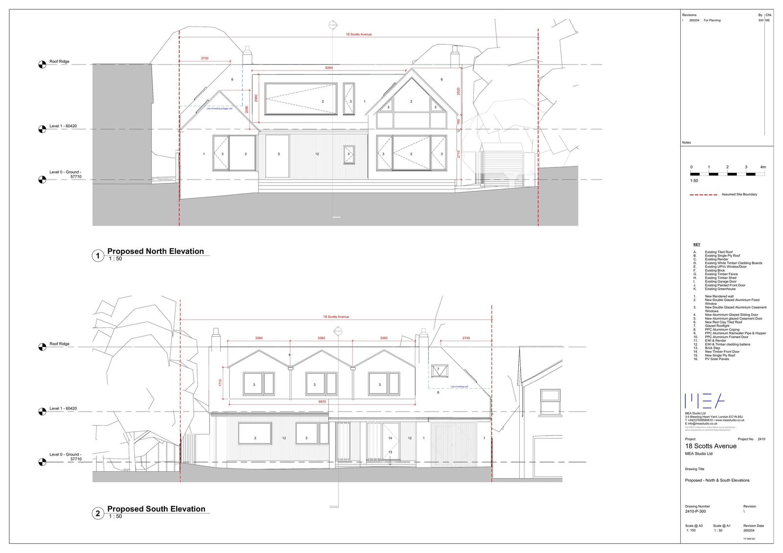
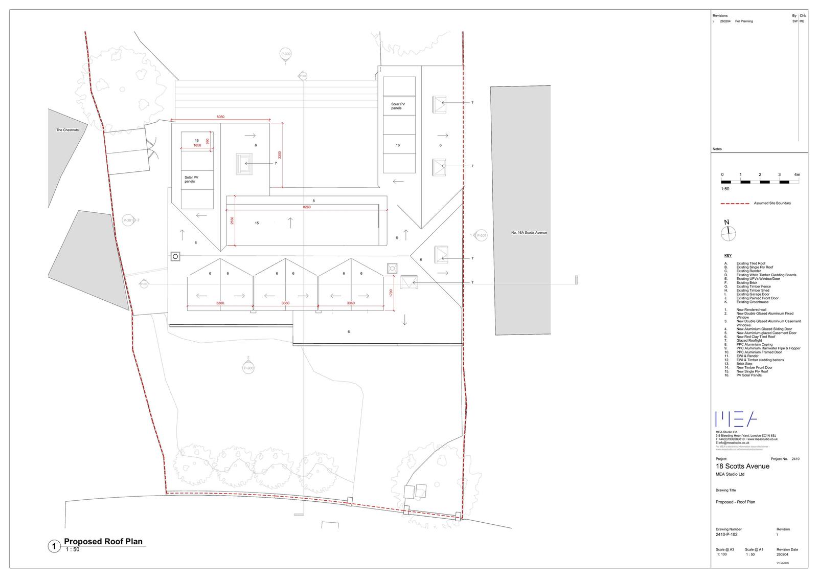
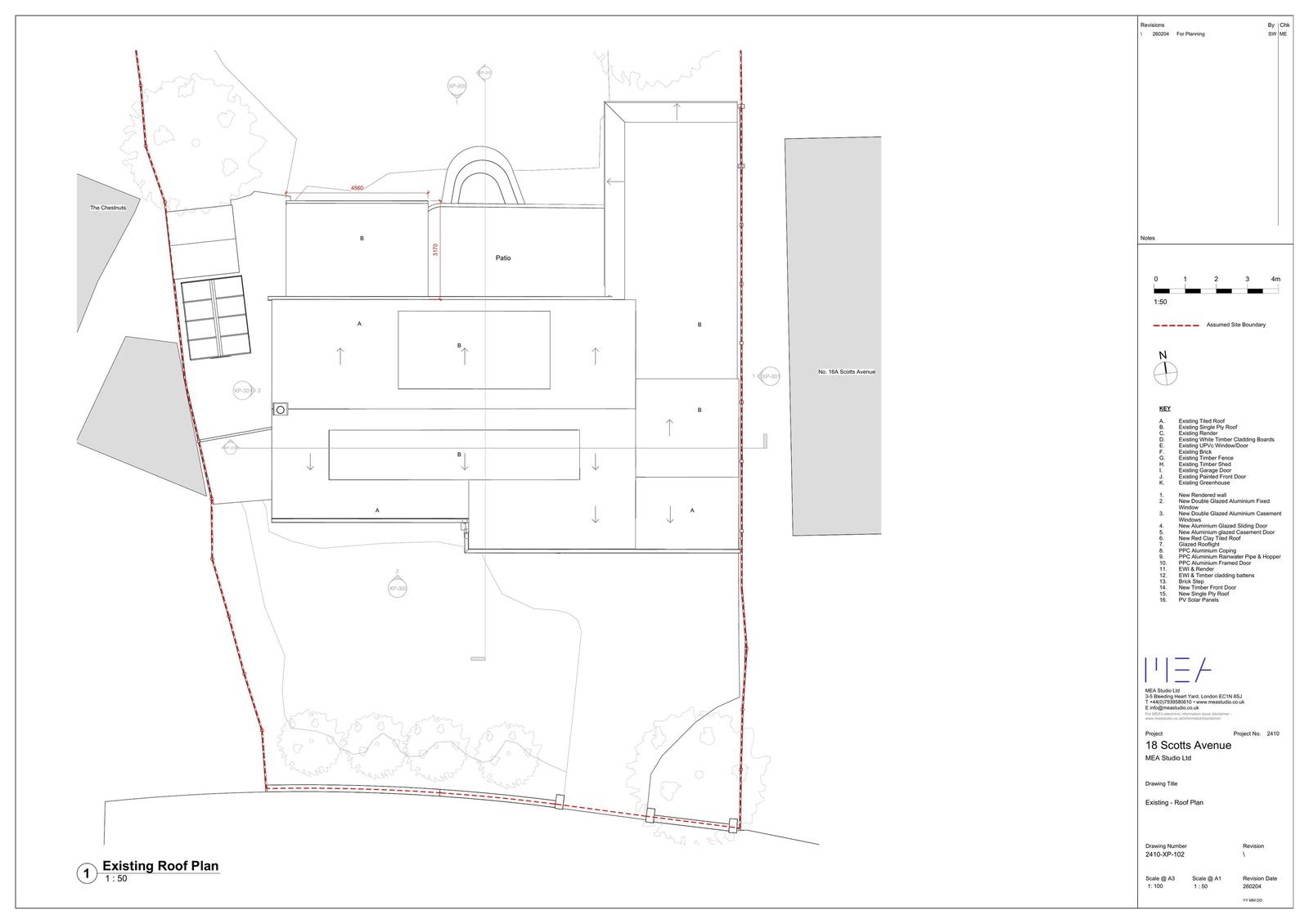
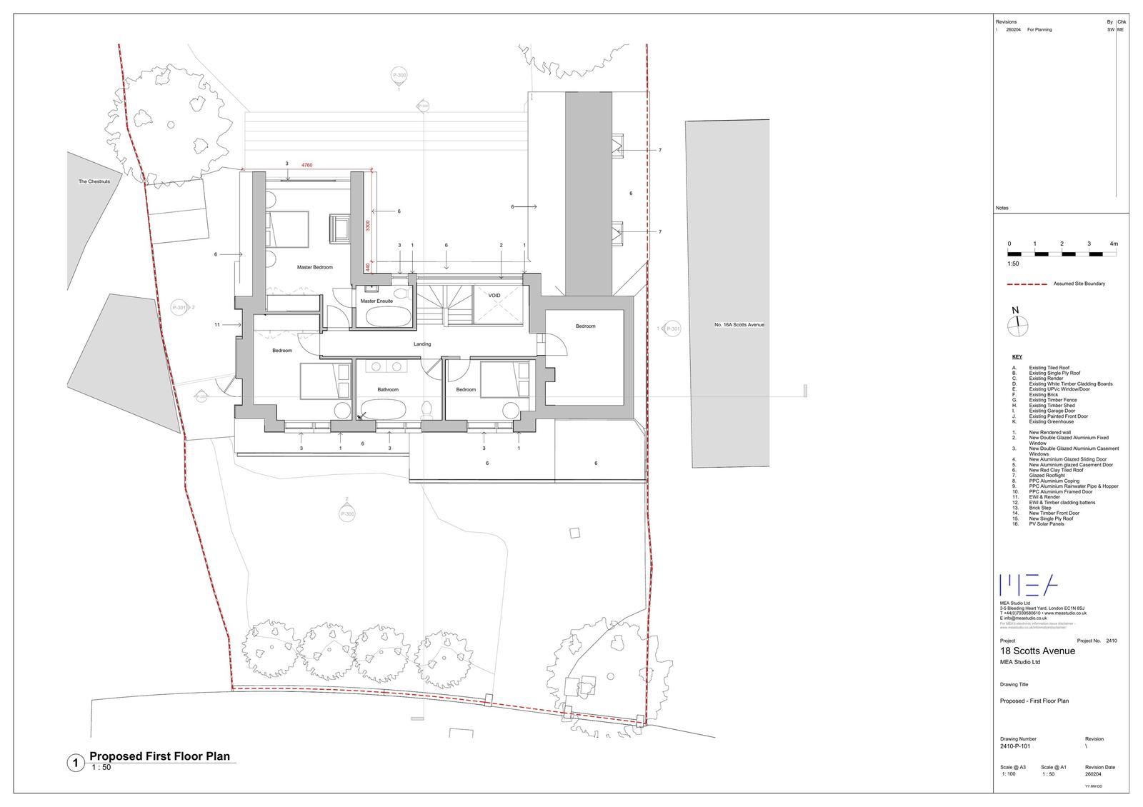
Reference 26/00448/HPA Received Date 05/2/2026 Application type Householder planning permission Site address 18 SCOTTS AVENUE, SHORTLANDS, BROMLEY, BR2 0LQ Description Demolition of rear extension. Garage rebuilt with pitched roof and conversion into habitable rooms. First floor side extension. Two storey rear extension with extended patio area and raised steps. Addition of heat pump to side of house. Roof enlargement to incorporate replacement of front and rear dormers. Relocation of front door with new brick step and elevational alterations. Status Valid Decision

Documents

Uncategorised
Archived · Original link
Uncategorised
Archived · Original link
Uncategorised
Archived · Original link
Uncategorised
Archived · Original link
Uncategorised
Archived · Original link
Uncategorised
Archived · Original link
Uncategorised
Archived · Original link
Uncategorised
Archived · Original link
Uncategorised
Archived · Original link
Uncategorised
Archived · Original link
Uncategorised
Archived · Original link
Uncategorised
Archived · Original link
Uncategorised
Archived · Original link
Uncategorised
Archived · Original link
Uncategorised
Archived · Original link
Uncategorised
Archived · Original link

Have your say

Your comment matters. Councils must consider every representation that raises material planning considerations.

Write a comment