← Bromley

Status

Pending House extension
Received
Not recorded
New homes
0

Full proposal

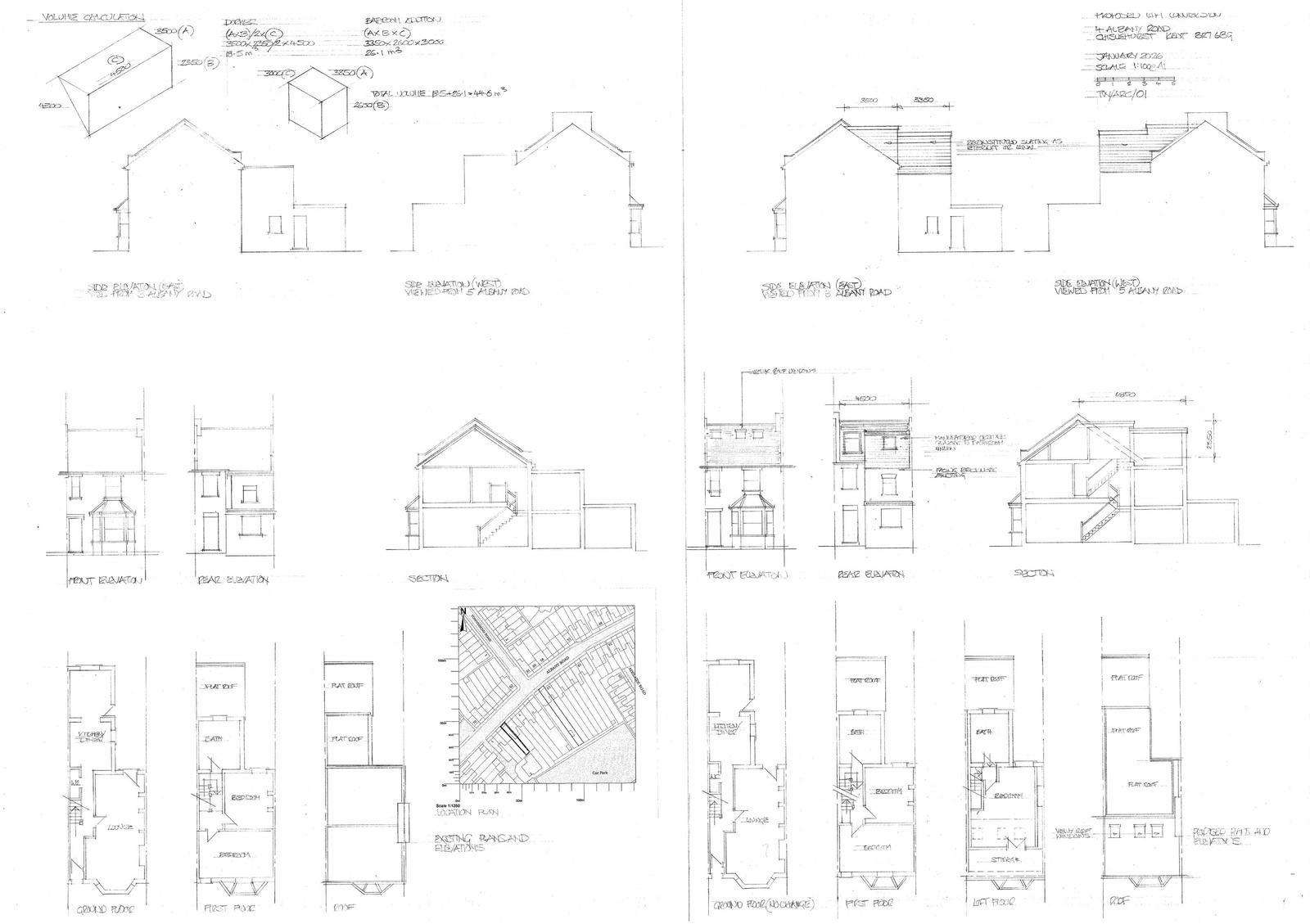
Reference 26/00451/HPA Received Date 05/2/2026 Application type Householder planning permission Site address 4 ALBANY ROAD, CHISLEHURST, BR7 6BG Description Loft conversion with L shaped rear dormer and three front roof lights Status Valid Decision

Documents

Uncategorised
Archived · Original link
Uncategorised
Archived · Original link
Uncategorised
Archived · Original link
Uncategorised
Archived · Original link

Have your say

Your comment matters. Councils must consider every representation that raises material planning considerations.

Write a comment