← Bromley

Status

Pending House extension
Received
Not recorded
New homes
0

Full proposal

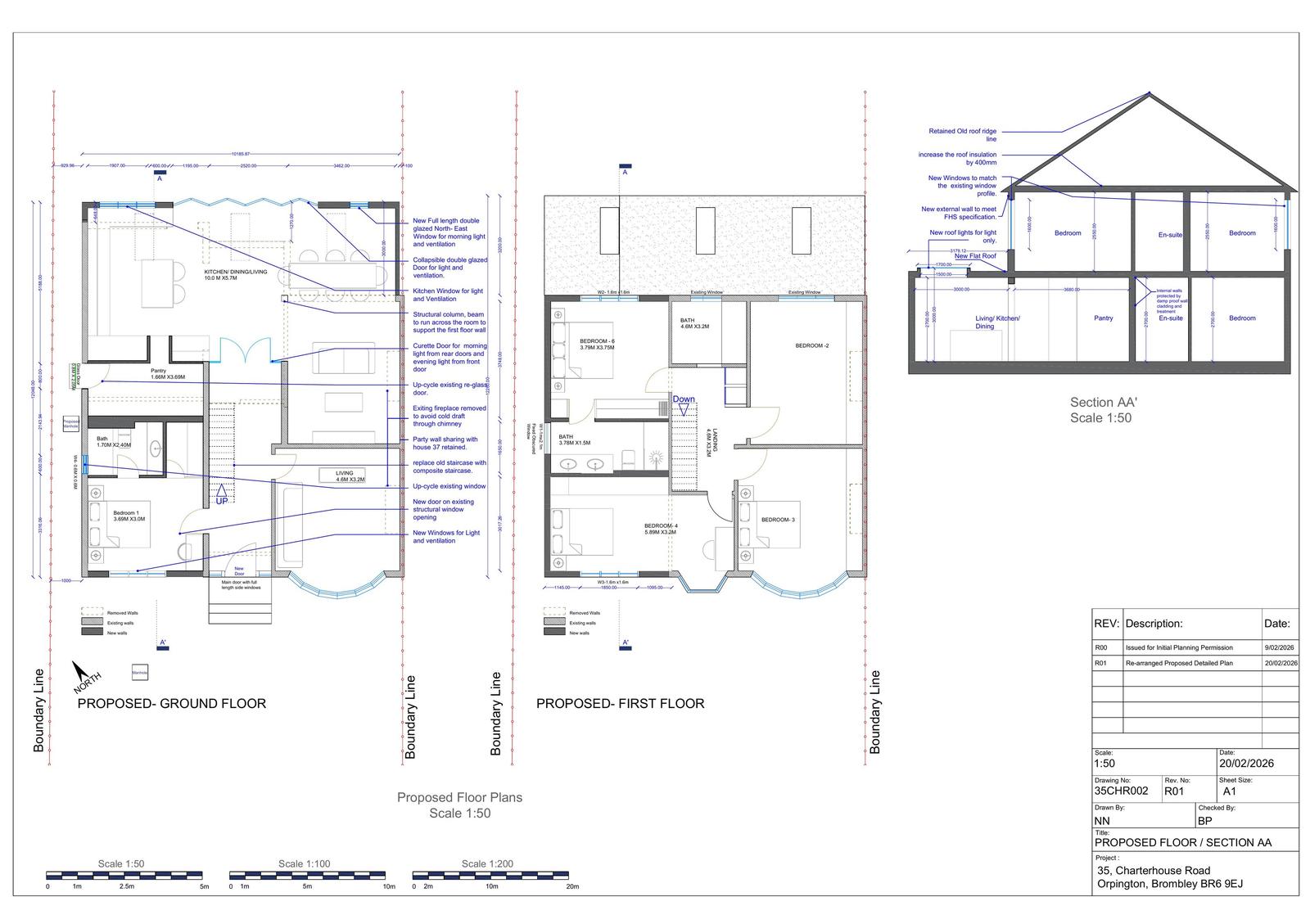
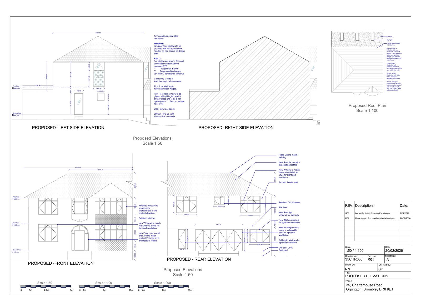
Reference 26/00491/HPA Received Date 09/2/2026 Application type Householder planning permission Site address 35 CHARTERHOUSE ROAD, ORPINGTON, BR6 9EJ Description Conversion of garage into a habitable room with elevational alterations. Single storey rear extension, first floor side extension and elevational alterations Status Valid Decision

Documents

Uncategorised
Archived · Original link
Uncategorised
Archived · Original link
Uncategorised
Archived · Original link
Uncategorised
Archived · Original link
Uncategorised
Archived · Original link
Uncategorised
Archived · Original link
Uncategorised
Archived · Original link

Have your say

Your comment matters. Councils must consider every representation that raises material planning considerations.

Write a comment