← Bromley

Status

Pending House extension
Received
Not recorded
New homes
0

Full proposal

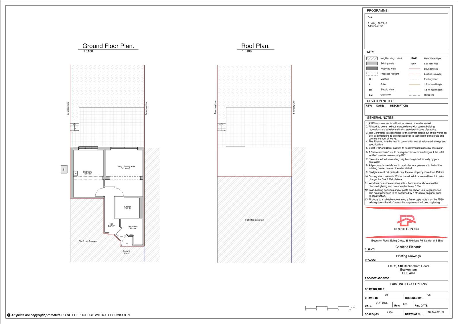
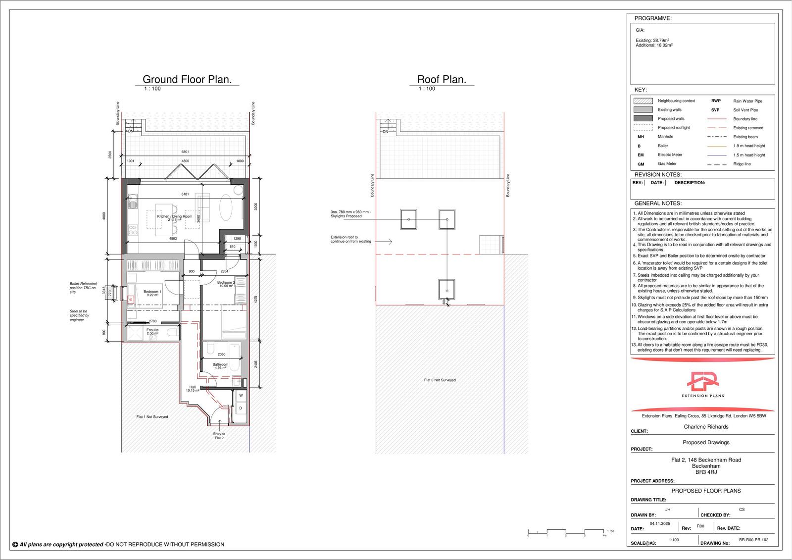
Reference 26/00586/FPA Received Date 13/2/2026 Application type Full planning permission Site address FLAT 2, 148 BECKENHAM ROAD, BECKENHAM, BR3 4RJ Description Single storey rear extension with patio and new steps to ground floor flat, and elevational alterations. Status Valid Decision

Documents

Uncategorised
Archived · Original link
Uncategorised
Archived · Original link
Uncategorised
Archived · Original link
Uncategorised
Archived · Original link
Uncategorised
Archived · Original link
Uncategorised
Archived · Original link
Uncategorised
Archived · Original link
Uncategorised
Archived · Original link
Uncategorised
Archived · Original link

Have your say

Your comment matters. Councils must consider every representation that raises material planning considerations.

Write a comment