← Bromley

Status

Pending House extension
Received
Not recorded
New homes
0

Full proposal

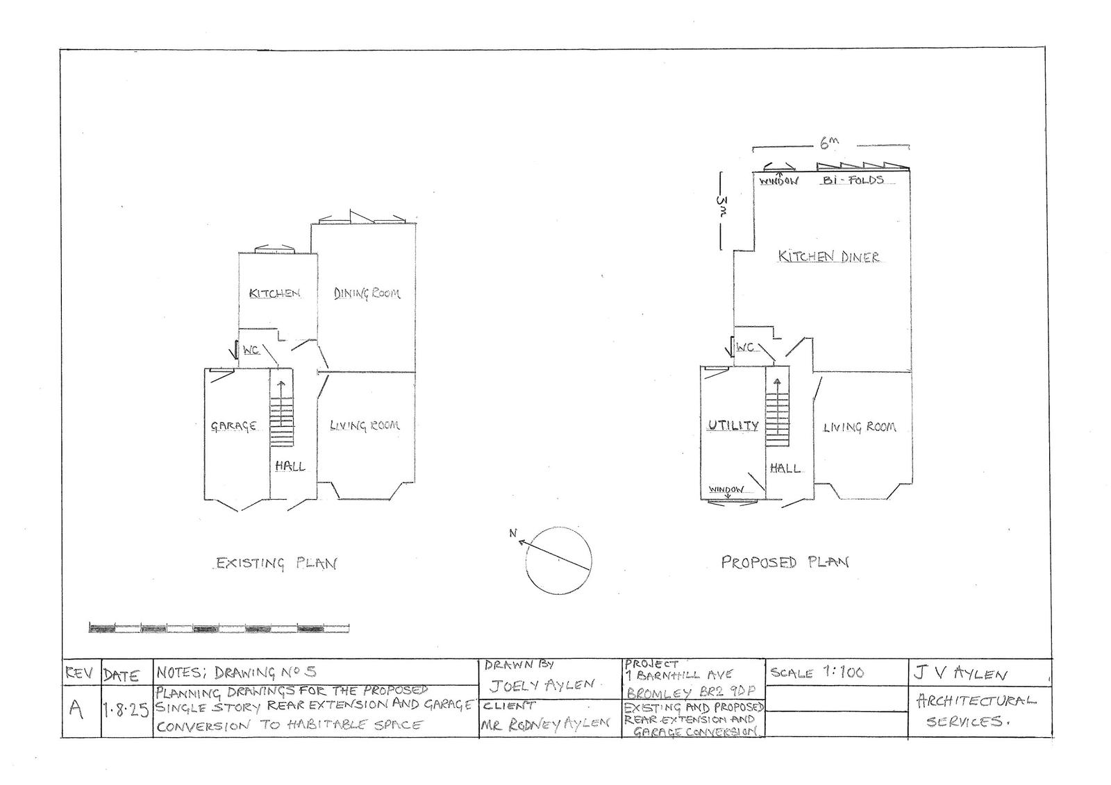
Reference 26/00618/HPA Received Date 17/2/2026 Application type Householder planning permission Site address 1 BARNHILL AVENUE, BROMLEY, BR2 9DP Description Garage conversion to habitable space, single storey rear extension and elevational alterations. Status Valid Decision

Documents

Uncategorised
Archived · Original link
Uncategorised
Archived · Original link
Uncategorised
Archived · Original link
Uncategorised
Archived · Original link
Uncategorised
Archived · Original link
Uncategorised
Archived · Original link
Uncategorised
Archived · Original link
Uncategorised
Archived · Original link

Have your say

Your comment matters. Councils must consider every representation that raises material planning considerations.

Write a comment