← Bromley

Status

Pending House extension
Received
Not recorded
New homes
0

Full proposal

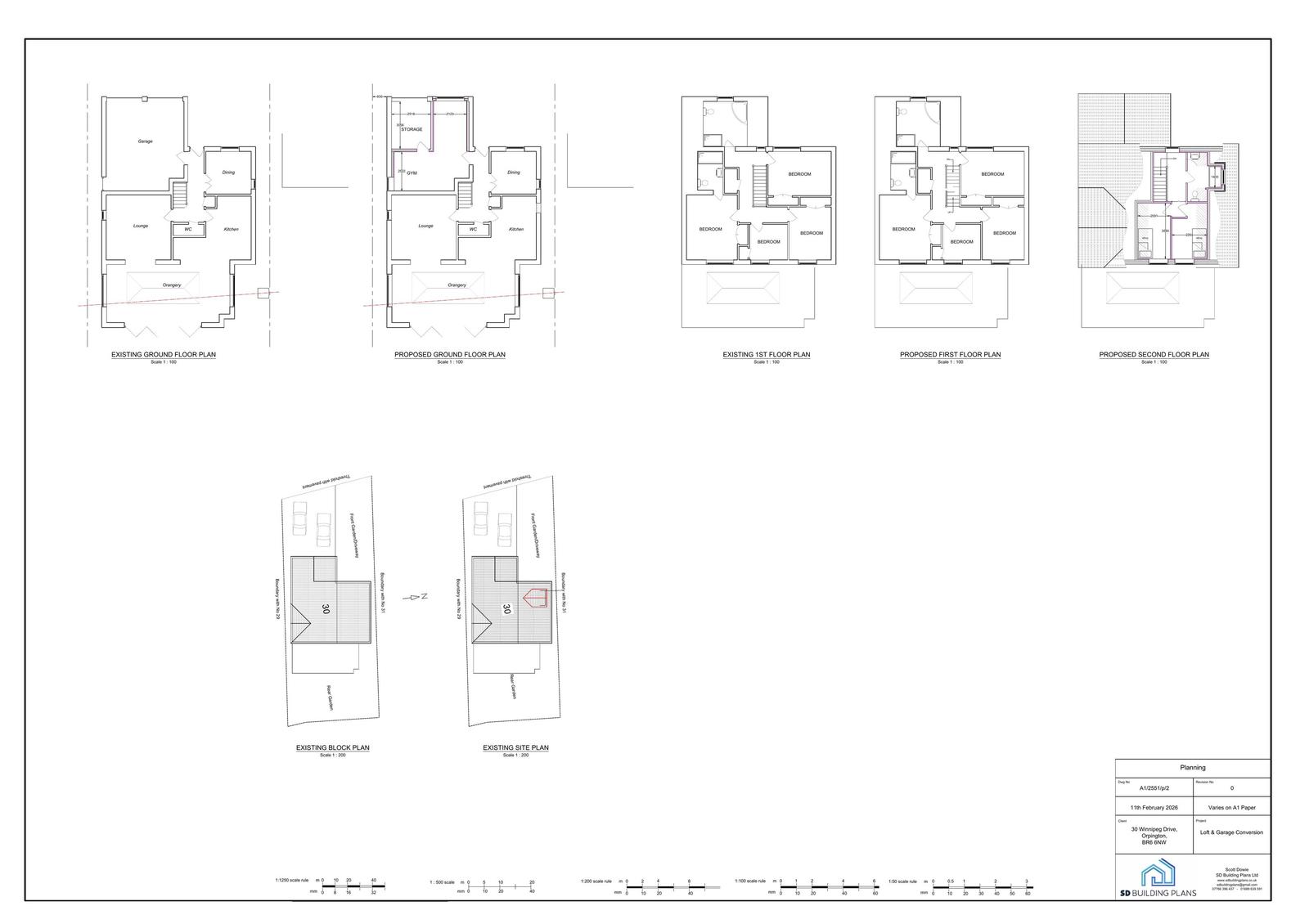
Reference 26/00636/HPA Received Date 13/2/2026 Application type Householder planning permission Site address 30 WINNIPEG DRIVE, ORPINGTON, BR6 6NW Description Partial garage conversion to habitable space, loft conversion with side dormer window and elevational alterations Status Valid Decision

Documents

Uncategorised
Archived · Original link
Uncategorised
Archived · Original link
Uncategorised
Archived · Original link

Have your say

Your comment matters. Councils must consider every representation that raises material planning considerations.

Write a comment