← Bromley

Status

Pending House extension
Received
Not recorded
New homes
0

Full proposal

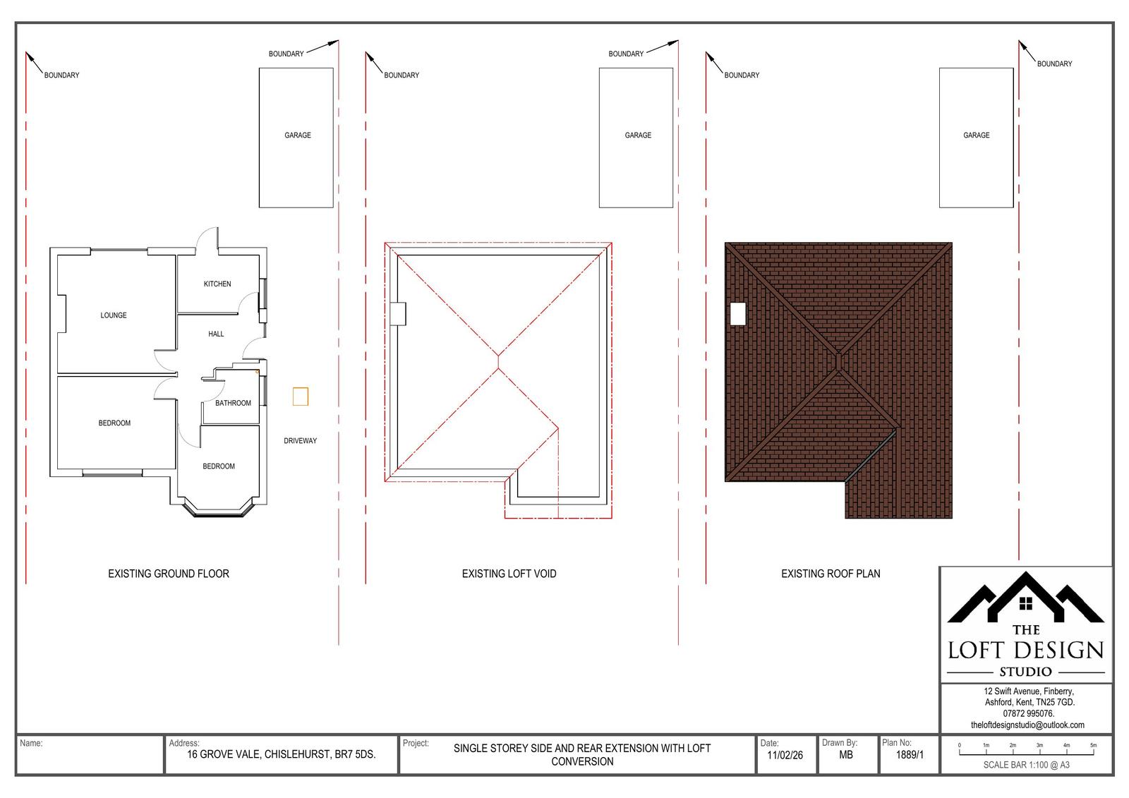
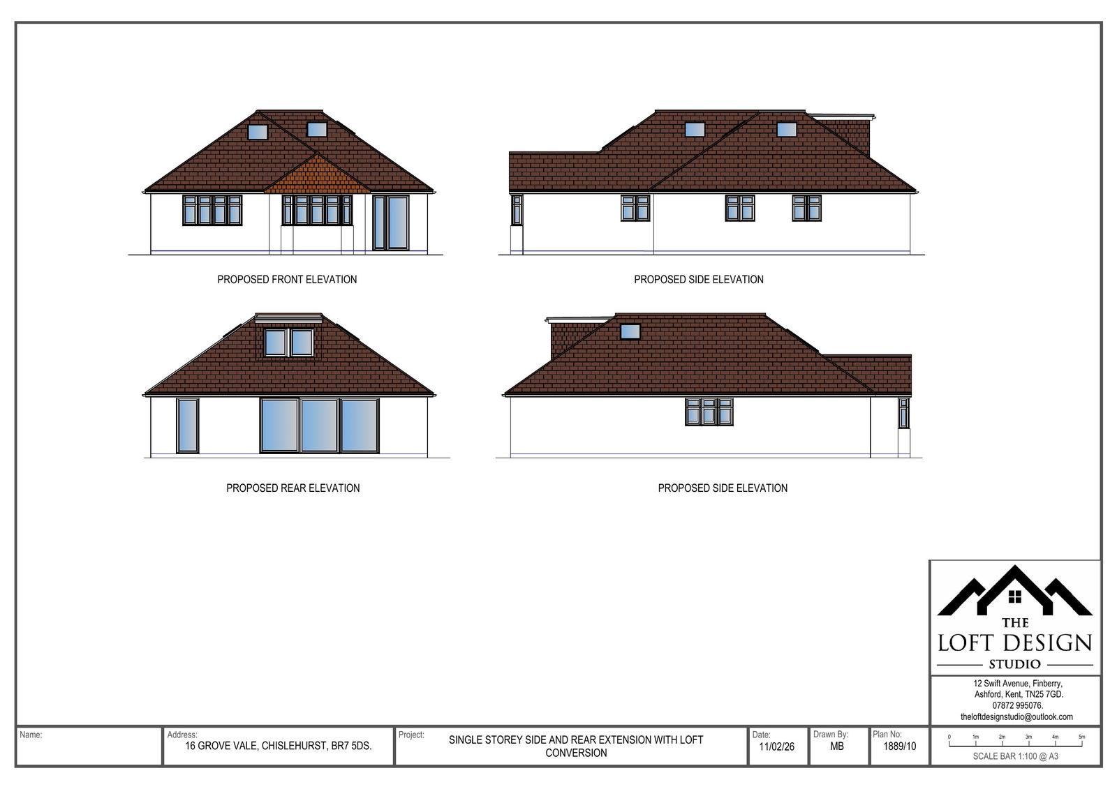
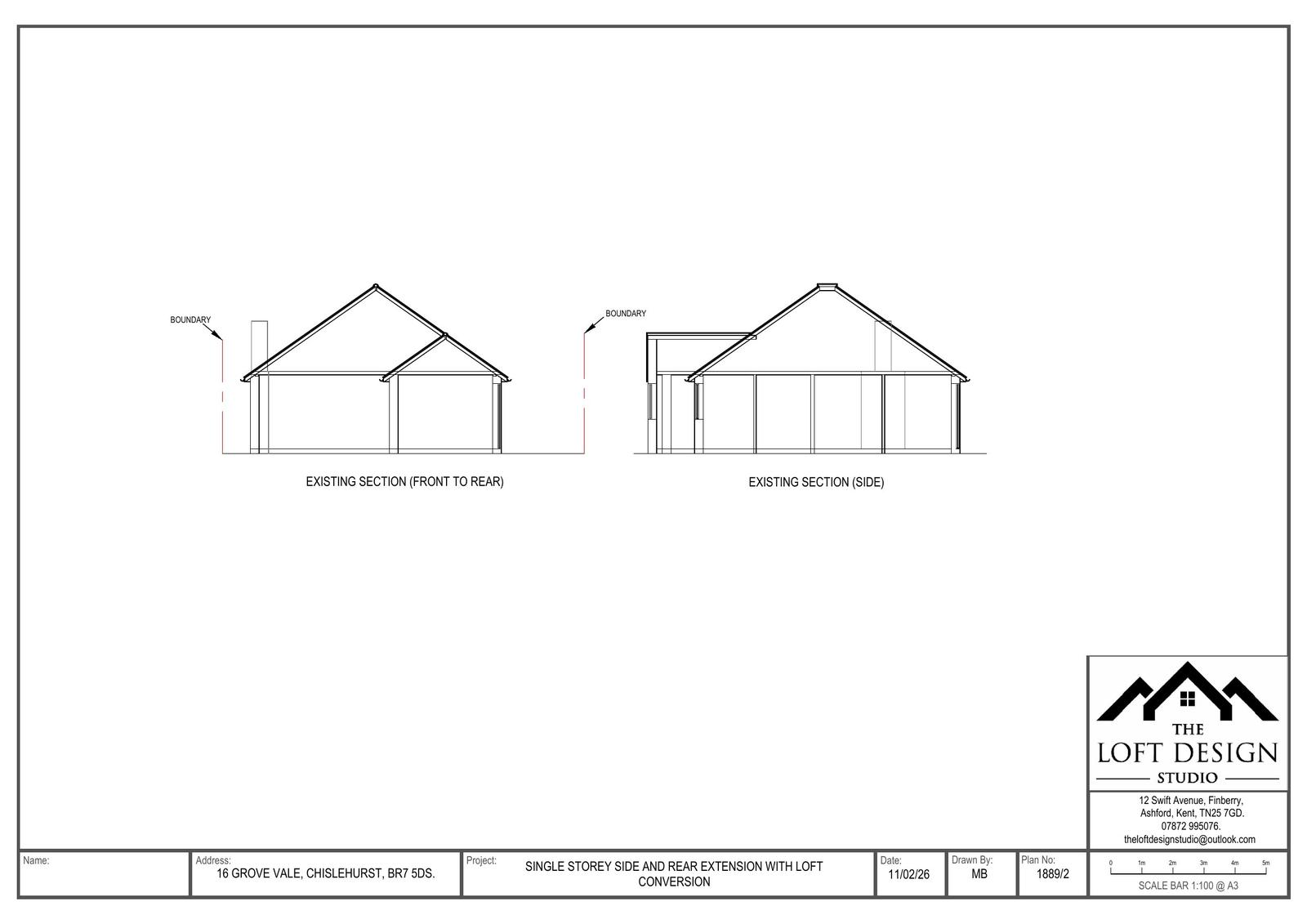
Reference 26/00646/HPA Received Date 18/2/2026 Application type Householder planning permission Site address 16 Grove Vale, Chislehurst, BR7 5DS Description Demolition of garage and removal of chimney. Single storey side and rear extensions, and elevational alterations. Loft conversion with rear dormer and roof lights. Status Valid Decision

Documents

Uncategorised
Archived · Original link
Uncategorised
Archived · Original link
Uncategorised
Archived · Original link
Uncategorised
Archived · Original link
Uncategorised
Archived · Original link
Uncategorised
Archived · Original link
Uncategorised
Archived · Original link
Uncategorised
Archived · Original link
Uncategorised
Archived · Original link
Uncategorised
Archived · Original link
Uncategorised
Archived · Original link
Uncategorised
Archived · Original link
Uncategorised
Archived · Original link
Uncategorised
Archived · Original link

Have your say

Your comment matters. Councils must consider every representation that raises material planning considerations.

Write a comment