← Bromley

Status

Pending House extension
Received
Not recorded
New homes
0

Full proposal

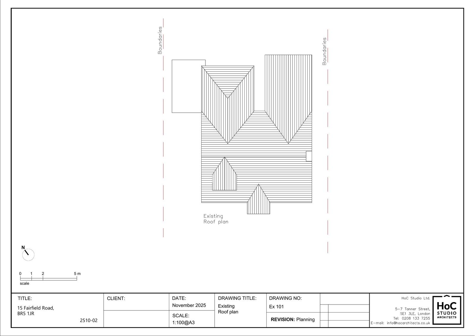
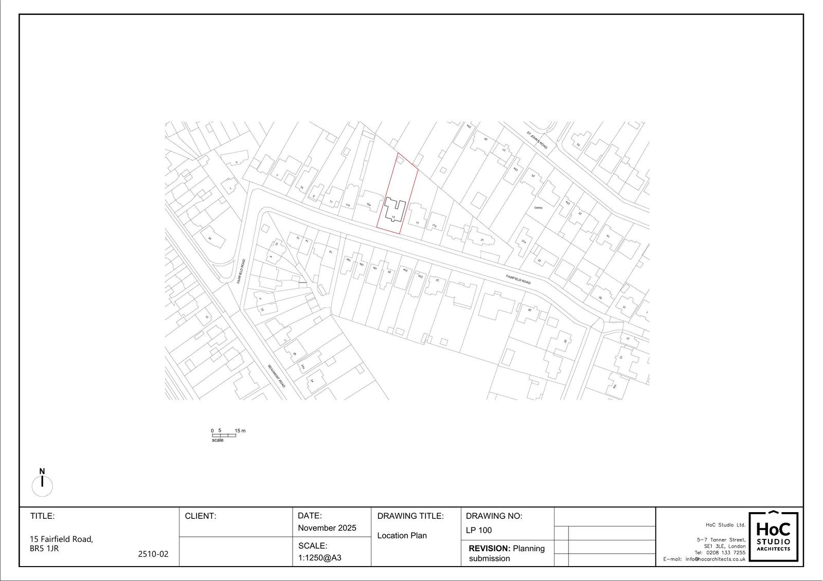
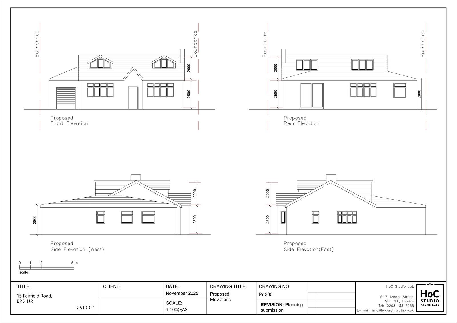
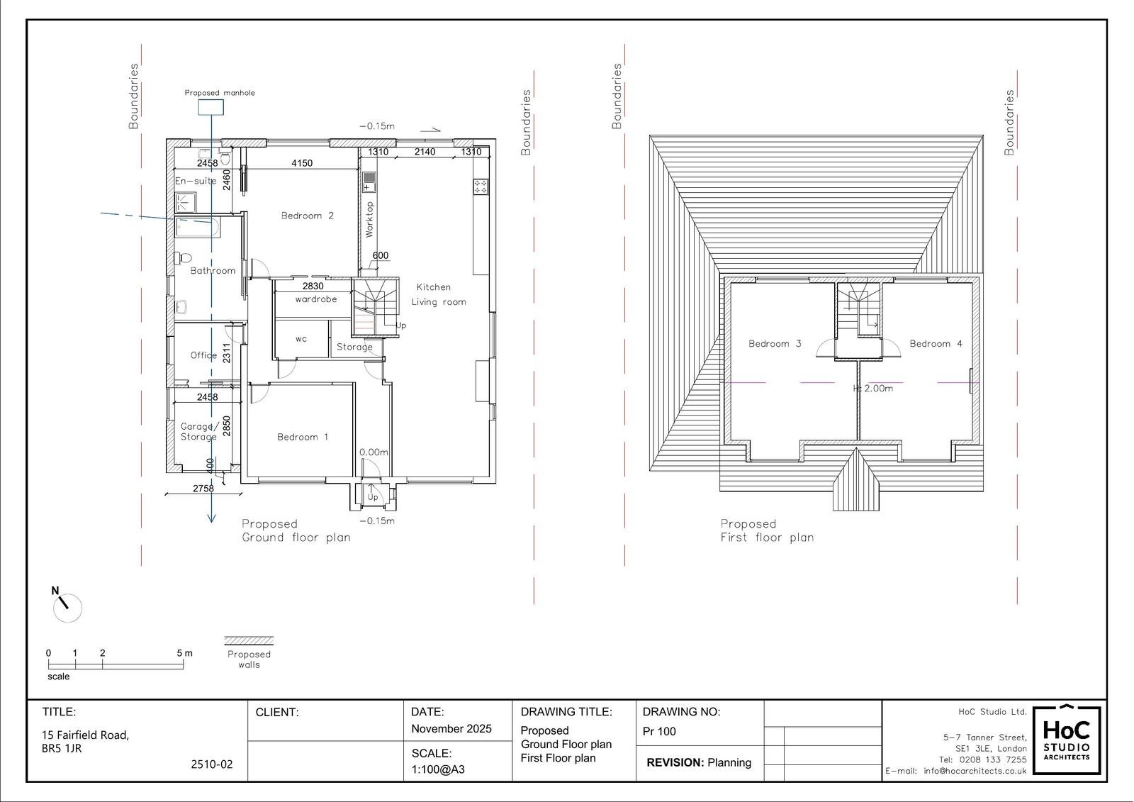
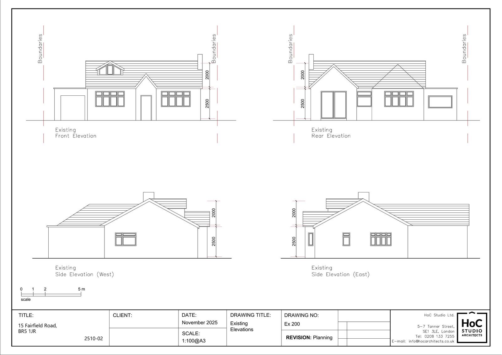
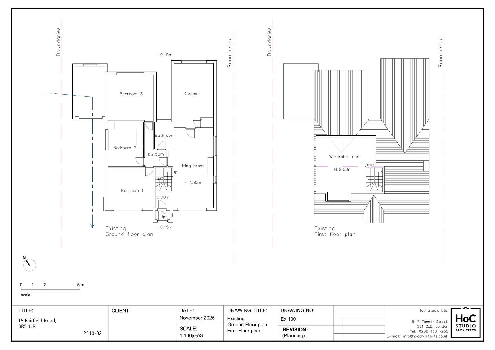
Reference 26/00651/HPA Received Date 19/2/2026 Application type Householder planning permission Site address 15 FAIRFIELD ROAD, PETTS WOOD, ORPINGTON, BR5 1JR Description Single storey side and rear extension, loft extension and roof alterations including rear and front dormers. Status Valid Decision

Documents

Uncategorised
Archived · Original link
Uncategorised
Archived · Original link
Uncategorised
Archived · Original link
Uncategorised
Archived · Original link
Uncategorised
Archived · Original link
Uncategorised
Archived · Original link
Uncategorised
Archived · Original link
Uncategorised
Archived · Original link
Uncategorised
Archived · Original link
Uncategorised
Archived · Original link

Have your say

Your comment matters. Councils must consider every representation that raises material planning considerations.

Write a comment